Продается дом в деревне Нежевка площадью 38 м² и участком 25 соток

ул. Центральная, д. Нежевка, Червенский район
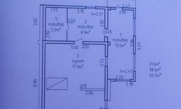
38 м2
Общая площадь
21.6 м2
Жилая
1956
Год постройки
Описание

Продается шикарный дом в деревне Нежевка, 50 км от МКАД.

Общая площадь 38,6 м2, жилая площадь 21,6 м2. В доме свежий ремонт, чисто и светло, мебель частично остается. 2 теплые комнаты, новая печка, неотапливаемые сенцы, кладовка и веранда, на веранде кухня с кухонным гарнитуром. Туалет на улице, строили новый в 2015 году. Также в 2014-2015 обновляли баньку. На участке есть колодец, постройки для дров, инвентаря, погреб.

Участок 25 соток, плодородная земля, можно сразу садить огород. Сама территория очень красивая, везде клумбы, высажены цветы, газонная трава, яблони и другие фруктовые деревья и кусты.

Есть гараж, вокруг построен надежный забор «на века». Дом и территория ухоженные, за домом следили и очень любили.

Рядом лес и река. Хорошие соседи.

Гарантия безопасности сделки и полное юридическое сопровождение!

Еще не продали или хотите обменять Вашу недвижимость, мы Вам поможем! Подайте онлайн заявку на нашем сайте или обратитесь к нам по нашему телефону, чтобы получить более подробную информацию.

Для получения более подробной информации звоните по телефону указанному в объявлении. В будние дни с 9.00 до 19.00; суббота - с 10.00 до 17.00, воскресенье - выходной. Просмотр объекта осуществляется по предварительной записи!

Частное унитарное предприятие «Дианэст», УНП 190124316, лицензия №02240/54 от 06.06.2005. Договор № 34/3 от 24.04.2025 г.

Характеристики
Общая площадь
38 м2
Жилая
21.6 м2
Участок (сотки)
25
Этажей
1
Год постройки
1956
Готовность
100%
Материал стен
Кирпичный
Водоснабжение
Колодец
Отопление
Печное
Расположение
Инфраструктура
Обновлено21.09.2025, 13:00
ID объявления4330
Номер договора34/3 от 24.04.2025
Всего просмотров381

Похожие объекты рядом

42 459 Br
1 567 Br/м2
27.1 м2
1 этаж
ул. Луговая, 2, д. Верхмень, Смолевичский район
48 443 Br
835 Br/м2
58 м2
д. Петровинка, Червенский район
28 211 Br
327 Br/м2
86.3 м2
1 этаж
ул. Центральная, д. Заболотье, Смолевичский район
56 707 Br
1 404 Br/м2
40.4 м2
1 этаж
ул. Гагарина, д. Плиса, Смолевичский район
56 137 Br
1 451 Br/м2
3 комн.
38.7 м2
1 этаж
ул. Центральная, аг. Любишино, Червенский район
31 346 Br
498 Br/м2
63 м2
1 этаж
д. Весёлая Горка, Пуховичский район
39 609 Br
836 Br/м2
47.4 м2
1 этаж
д. Копейное, Пуховичский район
27 071 Br
873 Br/м2
31 м2
1 этаж
ул. Железнодорожная, 1А, д. Новый Уборок, Пуховичский район
49 868 Br
2 078 Br/м2
24 м2
1 этаж
д. Белица, Минский район
47 018 Br
1 193 Br/м2
39.4 м2
1 этаж
ул. Песчаная, д. Ганевичи, Логойский район
33 910 Br
344 Br/м2
3 комн.
98.7 м2
2 этажа
СТ Подснежник, Пуховичский район
34 195 Br
510 Br/м2
3 комн.
67 м2
2 этажа
СТ Подснежник, Пуховичский район