Продается коммерческое помещение в Лиде на улице Шубина 11, площадью 230 м²

ул. Шубина, 11, Лида
230 м2
Общая площадь
Описание

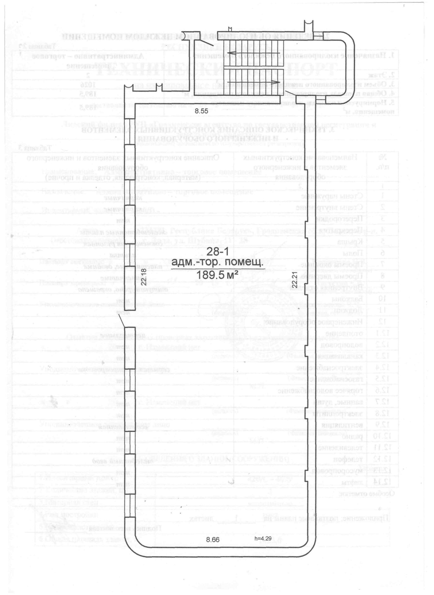
Продается торгово административное помещение ул. Шубина (автовокзал) 230 м2 , два этажа подойдет как для кафе так и для магазина одежды. Есть оборудование для бара, можно рассмотреть как под готовый бизнес.

Поможем продать вашу недвижимость для покупки данной, также помощь и сопровождение в преобретении в кредит, сотрудничаем со всеми банками республики Беларусь.Приобретение квартиры, дома или коммерческой недвижимости – это важный шаг, и мы знаем, насколько важно, чтобы сделка была безопасной, а процесс – понятным и удобным.

ООО “Эстейт Компани” – ваш надежный партнер в мире недвижимости. Мы предлагаем объекты в Слониме, Новогрудке, Лиде и других городах Беларуси.

- Гарантируем безопасность сделки-Полное юридическое сопровождение- Работаем по лицензии Министерства юстиции РБ №02240/394

Наша цель – не просто продать вам недвижимость, а помочь вам найти идеальный объект без рисков и скрытых нюансов.

Офисы: г. Лида, ул. Чапаева 18; г. Слоним, пер. Дружбы 1; г. Новогрудок, ул. Волчецкого27БСвяжитесь с нами сегодня и получите консультацию эксперта!

Характеристики
Категория объекта
Магазины, торговые помещения
Общая площадь
230 м2
Расположение
ул. Шубина, 11, Лида
Инфраструктура
ID объявления13599
Обновлено19.04.2026, 19:54
Номер договора456/2 от 05.08.2024
Всего просмотров145

Похожие объекты рядом

396 068 
1 223 2
323.8 м2
1 /1  этаж
600 930 
1 577 2
381 м2
площадь Ленина, Лида
682 875 
803 2
850 м2
ул. Шевченко, Лида
363 290 
5 303 2
68.5 м2
ул. Советская, Лида
300 465 
1 518 2
198 м2
ул. Фабричная, 12, Лида
819 450 
455 2
1800 м2
ул. Шевченко, 12А, Лида
819 450 
1 910 2
429 - 733 м2
1  этаж
ул. Рыбиновского, 26, Лида
480 744 
1 020 2
471.1 м2
1 /1  этаж
пер. 1-й Александра Невского, 1, Лида
283 257 
3 113 2
91 - 91.1 м2
1 /1  этаж
ул. 1-я Хасановская, 44, Лида
396 068 
1 980 2
200 м2
ул. Парковая, 45, Лида
819 450 
1 291 2
634.5 м2
д. Колесище, Лидский район
360 558 
142 2
2542.5 м2
1 /3  этаж
Лидский район