Прадаецца 3-пакаёвая кватэра ў Вілейцы на вуліцы Кастрычніцкая, 36

вул. Кастрычніцкая, 36, Вілейка
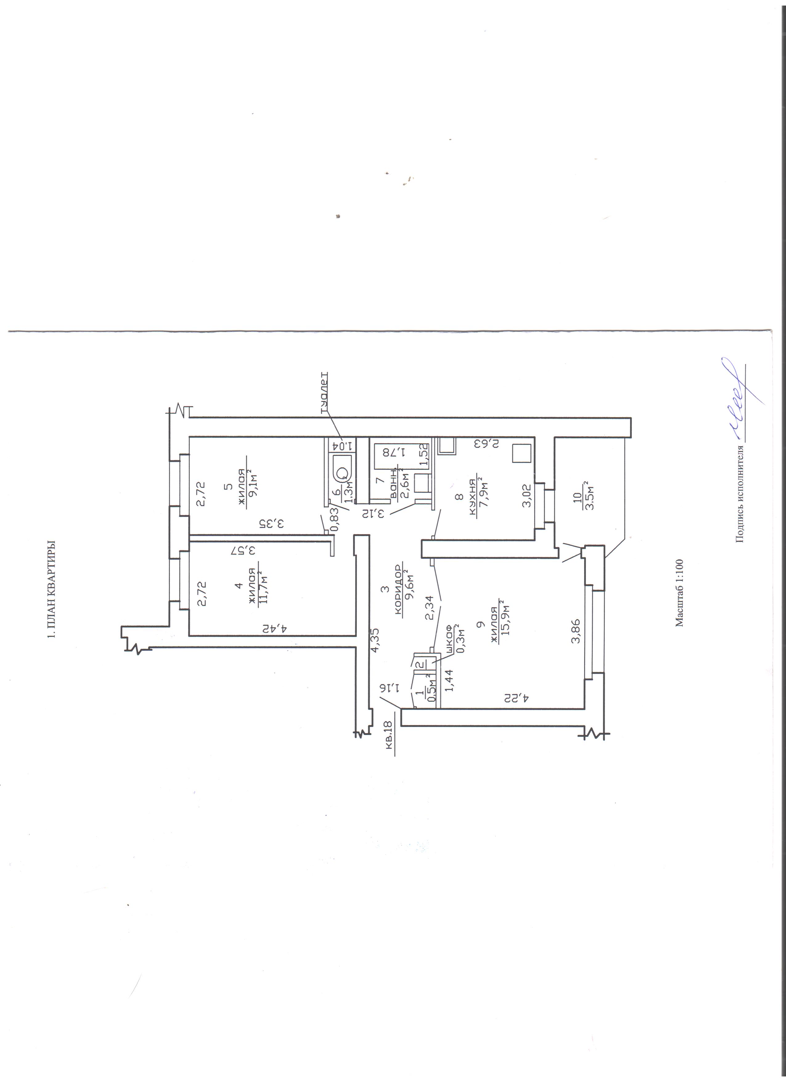
59.8 м2
Агульная плошча
36.7 м2
Жылая
7.9 м2
Кухня
3
Пакояў
1 з 5
Паверх
1989
Год пабудовы
Апісанне

Продается 3-х комнатная квартира в г. Вилейка. 

В квартире никто не прописан.

Прямая продажа собственником. 

Оформление в кадастровом агенстве. 

Уласцівасці
Пакояў
3
Агульная плошча
59.8 м2
Жылая
36.7 м2
Кухня
7.9 м2
Паверх
1 з 5
Год пабудовы
1989
Матэрыял сцен
Цагляны
Санвузел
Раздзельны
Балкон/лоджыя
1
Ацяпленне
Цэнтральнае
Адрас на мапе
вул. Кастрычніцкая, 36, Вілейка
Інфраструктура
ID объявления23178
Абноўлена17.04.2026, 16:48
Усяго праглядаў120

Падобныя аб'екты побач

99 500 
1 555 2
4 пак.
64 м2
5 /5  паверх
вул. Кастрычніцкая, 34, Вілейка
109 172 
1 669 2
4 пак.
65.4 м2
3 /5  паверх
вул. Кастрычніцкая, 34, Вілейка
95 253 
1 191 2
3 пак.
80 м2
1 /2  паверх
вул. 17 Верасня, Вілейка
119 816 
1 325 2
3 пак.
90.4 м2
1 /2  паверх
вул. Сацыялістычная, Вілейка
122 819 
1 898 2
4 пак.
64.7 м2
1 /5  паверх
вул. Гагарына, 15, Вілейка
72 326 
1 845 2
1 пак.
39.2 м2
4 /5  паверх
вул. Незалежнасці, 2к2, Вілейка
67 960 
1 798 2
1 пак.
37.8 м2
1 /5  паверх
вул. Незалежнасці, 8к1, Вілейка
92 796 
1 771 2
3 пак.
52.4 м2
1 /1  паверх
вул. Зарэчная, Маладзечна
65 230 
1 631 2
2 пак.
40 м2
1 /1  паверх
вул. Гогаля, Маладзечна
59 772 
1 115 2
2 пак.
53.6 м2
1 /1  паверх
Ліцейны завулак, Маладзечна
121 454 
2 358 2
2 пак.
51.5 м2
2 /3  паверх
вул. Афіцэрская, 2, Маладзечна
111 720 
3 014 2
1 пак.
37.07 м2
4 /5  паверх
вул. Ларына, 1, Маладзечна