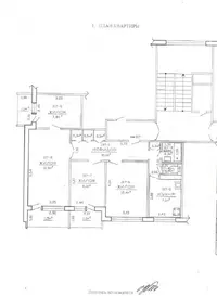
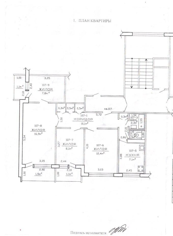
Продается 4-комнатная квартира в Слуцке на улице Молодёжная 4, площадью 67.1 м²

ул. Молодёжная, 4, Слуцк
67.1 м2
Общая площадь
45.1 м2
Жилая
7.1 м2
Кухня
4
Комнат
2.5 м
Высота потолков
2 из 5
Этаж
1978
Год постройки
Описание

Просторная 4-комнатная квартира с тремя лоджиями и удобной планировкой

❤️Если вы ищете просторное, светлое и функциональное жильё для семьи этот вариант – для вас.

-Квартира расположена на 2 этаже. 2 этаж — это не просто комфорт, а настоящая находка для тех, кто ценит удобство.

-Четыре комнаты, три из которых изолированные — идеальный вариант для семьи или тех, кто ценит личное пространство.

-Окна выходят на две стороны дома, что делает квартиру невероятно светлой и помогает эффективно её проветривать.

-Одна лоджия – это хорошо, но когла их три ,это просто находка .

Квартира требует косметического ремонта, что позволит вам обустроить квартиру полностью под себя.

-Панельный 5-этажный дом 1978 года постройки. Фасад утеплён, а это значит, что в жаркие дни здесь будет комфортно, а в холода не придётся переживать за отопление.

-Во дворе есть достаточно парковочных мест для вашего автомобиля.

-Вся инфраструктура в шаговой доступности: остановка городских автобусов, магазины, школа и 2 детских сада, стадион, ДК сахарного завода, боулинг, кафе.

❤️ Мы с радостью покажем Вам этот объект и сделаем Вас его счастливыми хозяевами!

Частное унитарное предприятие «Дианэст», УНП 190124316, лицензия №02240/54 от 06.06.2005. Договор №19/4 от 29.01.2026

Характеристики
Комнат
4
Общая площадь
67.1 м2
Жилая
45.1 м2
Кухня
7.1 м2
Этаж
2 из 5
Высота потолков
2.5 м
Год постройки
1978
Санузел
Раздельный
Балкон/лоджия
1
Расположение
ул. Молодёжная, 4, Слуцк
Инфраструктура
ID объявления19708
Обновлено27.04.2026, 12:33
Номер договора19/4 от 29.01.2026
Всего просмотров175

Похожие объекты рядом

126 753 
2 031 2
3 комн.
62.4 м2
9 /9  этаж
ул. Солигорская, 8, Слуцк
121 389 
2 141 2
4 комн.
56.7 м2
4 /5  этаж
ул. Виленская, 57, Слуцк
92 594 
2 469 2
1 комн.
37.5 м2
1 /5  этаж
пер. 2-й Максима Богдановича, 31, Слуцк
103 040 
2 036 2
2 комн.
50.6 м2
1 /5  этаж
ул. Ленинская, 4, Слуцк
78 762 
1 443 2
2 комн.
54.6 м2
1 /3  этаж
ул. Энергетиков, 5, Слуцк
94 571 
1 911 2
2 комн.
49.5 м2
5 /5  этаж
ул. Жукова, 15, Слуцк
112 920 
1 891 2
3 комн.
59.7 м2
6 /9  этаж
ул. Копыльская, 31, Слуцк
155 265 
2 504 2
4 комн.
62 м2
5 /5  этаж
ул. Кононовича, 8, Слуцк
140 868 
2 476 2
3 комн.
56.9 м2
2 /5  этаж
ул. Копыльская, 1, Слуцк
71 987 
2 384 2
1 комн.
30.2 м2
5 /5  этаж
ул. Копыльская, 1, Слуцк
84 408 
1 543 2
3 комн.
54.7 м2
1 /1  этаж
пер. 1-й Чапаева, Слуцк
110 097 
2 480 2
2 комн.
44.4 м2
5 /5  этаж
ул. Копыльская, 4, Слуцк