Просторная «евротрешка» с мебелью и техникой, в которой ещё никто не жил!
ул. Лобанка,88
Дом 2006 года постройки, в тихом, зеленом, уютном уголке спального района "СУХАРЕВО"
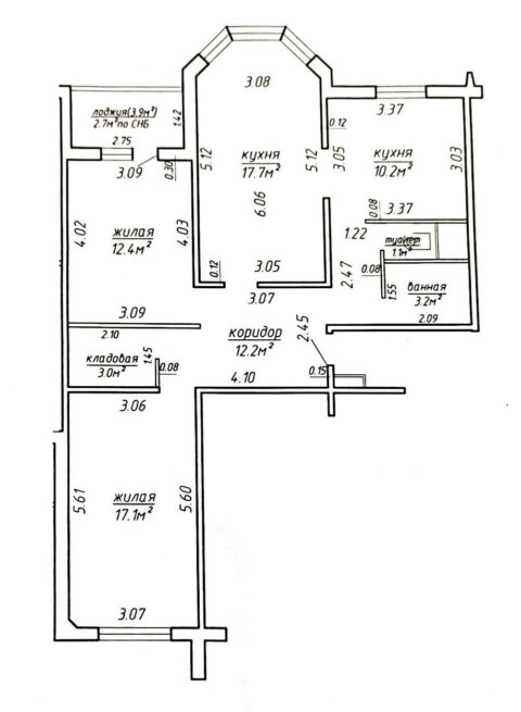
Площадь по СНБ 80,0 м2
Продуманная планировка (узаконена): две отдельные комнаты 17,7 м2 и 22,6 м2с выходом на балкон, гардеробная, просторная кухня – гостиная 13,5 м2 два санузла – 6 м2 с угловой ванной, умывальником и унитазом и 3,2 м2 с душем, умывальником, унитазом, стиральной машиной и бойлером. Окна на восток и запад. Квартира очень теплая и светлая.
Дизайнерский ремонт, все новое, сделано с любовью:
Отделка из премиальных материалов. Стеклопакеты Aluplast с пятикамерным профилем (все створки открываются), входная металлическая дверь, межкомнатные двери, плинтус из массива ольхи. На полу в комнатах, гардеробной паркет из бамбука, в прихожей, кухне, санузлах - керамогранит с подогревом. Потолки из гипсокартона и натяжные с точеным и контурным светом.Остаются вся мебель и техника: встроенный холодильник, посудомоечная машина -Electrolux, варочная панель, духовой шкаф, бойлер- Ariston, стиральная машина Candy. Смесители Grohe, Hansgrohe с термостатом, полотенцесушители Margaroli, вытяжка кондиционер, видеодомофон, сигнализация. Два шкафа-купе.Встроенная кухня, фасады из массива made in Italy. Уникальные детали в квартире - авторские фотообои, зеркальная стена в кухне, умная система теплого пола.
В тамбуре всего две квартиры, надежная металлическая дверь.
Преимуществом 9 этажа является отсутствие соседей сверху, а наличие технического этажа над квартирой обеспечивает дополнительную тепло-звукоизоляцию.
Дом обслуживает ТСЖ - чистота и порядок на всей территории.
Чистый двор с детской площадкой – безопасное место для игр. Достаточно парковочных мест.
Развитая инфраструктура – в пешей доступности детский сад № 9 и школа № 175 , удобно для семьи с детьми. Через дорогу – ТЦ "Maximus" : магазины, кафе, салоны и т.д..Рядом с домом парк "Дививелка" с прудом – прекрасное место для прогулок, отдыха и занятий активными видами спорта.
От дома прямой транспорт до метро "Каменная горка" (10 минут).
Звоните, показ в любое время!
Покупатель НЕ ПЛАТИТ за услуги агентства, но приобретет юридически проверенную недвижимость!
Работаем со всеми видами кредитов, материнским капиталом, субсидиями.
 
                                         
                 
                            
                         
                 
                 
                 
                 
                 
                 
                 
                 
                 
                 
                 
                 
                 
                 
                 
                 
                 
                 
                 
                 
                 
                 
                 
                 
                 
                 
                 
                 
                 
                 
                 
                 
     
                                             
                                             
                                             
                                             
                                             
                                             
                                             
                                             
                                             
                                             
                                             
                                             
                                             
                                             
                                             
                                             
                                             
                                             
                                             
                                             
                                             
                                             
                                             
                                             
                                             
                                             
                                             
                                             
                                             
                                             
                                             
                                             
                                             
                                             
                                             
                                             
                                             
                                             
                                             
                                             
                                             
                                             
                                             
                                             
                                             
                                             
                                             
                                             
                                             
                                             
                                             
                                             
                                             
                                             
                                             
                                             
                                             
                                             
                                             
                                             
                                             
                                             
                                             
                                             
                                             
                                             
                                             
                                             
                                             
                                             
                                             
                                             
                                             
                                             
                                             
                                             
                                             
                                             
                                             
                                             
                                             
                                             
                                             
                                             
                                             
                                             
                                             
                                             
                                             
                                             
                                             
                                             
                                             
                                             
                                             
                                             
                                             
                                             
                                             
                                             
                                             
                                             
                                             
                                             
                                             
                                             
                                             
                                            