Продается 2-комнатная квартира в Нарочи на улице Октябрьская 19, площадью 52.5 м²

ул. Октябрьская, 19, курортный п. Нарочь
52.5 м2
Общая площадь
29.6 м2
Жилая
8.8 м2
Кухня
2
Комнат
3 из 4
Этаж
1998
Год постройки
Описание

Продается двухкомнатная квартира в к.п.Нарочь!

Или рассмотрим обмен на однокомнатную квартиру в к.п. Нарочь.

❤️ Хотите жить в квартире с хорошим ремонтом в экологически чистом районе рядом с озером Нарочь? Тогда это идеальный вариант для вас!

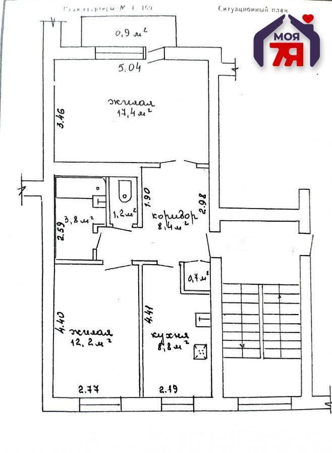
- Общая площадь квартиры по СНБ 53,4 кв.м., при этом площадь жилых комнат составляет 12,2 и 17,4 кв.м., площадь кухни -8,8 кв.м.

- Отличный ремонт в квартире сразу бросается в глаза. С ним Вы сможете заселиться уже в первый день после покупки.

- Стеклопакеты и входная металлическая дверь обеспечивают безопасность и тепло.

- Квартира не угловая на третьем этаже. На лестничной площадке всего 2 квартиры. Чистый ухоженный подъезд.

- Благоустроена придомовая территория, тихий двор.

- Приятным бонусом будет - подвальное помещение.

- Кирпичный дом 1998 года постройки.

- Парковка во дворе, поэтому Ваш автомобиль будет всегда под рукой.

- В шаговой доступности от дома Вы найдёте всё необходимое для современной и активной жизни: во дворе дома продуктовый магазин, в 100 метрах школа. В пределах курортного поселка есть почтовое отделение, аптека, несколько кафе и продуктовых магазинов. До автовокзала всего 15 минут пешком.

❤️ Работаем с субсидиями, семейным капиталом и льготным кредитованием.

❤️ Самым важным преимуществом, конечно, является расположение дома в 1 км от чистейшего озера Нарочь, где Вы сможете отдыхать хоть каждый день!

❤️ Данный вариант отлично подойдёт и для проживания, и для инвестирования. Такие квартиры пользуются спросом у арендаторов, а местоположение дома позволит быть мобильными и быстро добраться до любой точки курортного посёлка.

❤️ Мы с радостью покажем Вам этот объект и сделаем Вас его счастливыми хозяевами!

А также хотите:

- выгодно продать

- срочно выкупить

- найти лучшую квартиру

- заработать на инвестициях в недвижимость

- сделать дизайнерский ремонт

Тогда «Моя 7Я» решит это, как для своей семьи: с любовью, заботой и желаемым результатом!

Агентство недвижимости ООО «Центр международной недвижимости Моя 7Я»

УНП 193750826

Лицензия: № 02240/484 выдана МЮ РБ 18.05.2024 г.

Страховое свидетельство БР 0004913

Характеристики
Комнат
2
Общая площадь
52.5 м2
Жилая
29.6 м2
Кухня
8.8 м2
Этаж
3 из 4
Год постройки
1998
Санузел
Раздельный
Балкон/лоджия
1
Расположение
ул. Октябрьская, 19, курортный п. Нарочь
Инфраструктура

Похожие объекты рядом

176 783 Br
2 745 Br/м2
3 комн.
64.4 м2
1 /4  этаж
ул. Октябрьская, 16, курортный п. Нарочь
185 932 Br
2 994 Br/м2
2 комн.
62.1 м2
5 /5  этаж
ул. Октябрьская, 8, курортный п. Нарочь
191 835 Br
3 633 Br/м2
2 комн.
52.8 м2
1 /4  этаж
ул. Октябрьская, 5, курортный п. Нарочь
112 149 Br
2 312 Br/м2
2 комн.
48.5 м2
2 /5  этаж
ул. Юбилейная, 2, Мядель
197 737 Br
1 110 Br/м2
3 комн.
178.2 м2
1 /2  этаж
ул. Дружная, 2, Мядель
88 244 Br
1 339 Br/м2
3 комн.
65.9 м2
1 /2  этаж
ул. Первомайская, Сморгонь
106 247 Br
1 692 Br/м2
3 комн.
62.8 м2
5 /5  этаж
ул. Юбилейная, 55, Сморгонь
132 513 Br
2 130 Br/м2
3 комн.
62.2 м2
1 /5  этаж
ул. Юбилейная, 19, Сморгонь
134 284 Br
2 149 Br/м2
3 комн.
62.5 м2
3 /5  этаж
ул. Тракторная, 24, Сморгонь
97 098 Br
1 587 Br/м2
3 комн.
61.2 м2
5 /5  этаж
ул. Карла Маркса, 40, Островец
117 757 Br
2 247 Br/м2
3 комн.
52.4 м2
1 /1  этаж
ул. Заречная, Молодечно
144 319 Br
1 382 Br/м2
5+ комн.
104.4 м2
1 /1  этаж
пер. Советский, д. Носилово