Продается 3-комнатная квартира в Кривом Село на улице Первомайская площадью 56.3 м²

ул. Первомайская, аг. Кривое Село
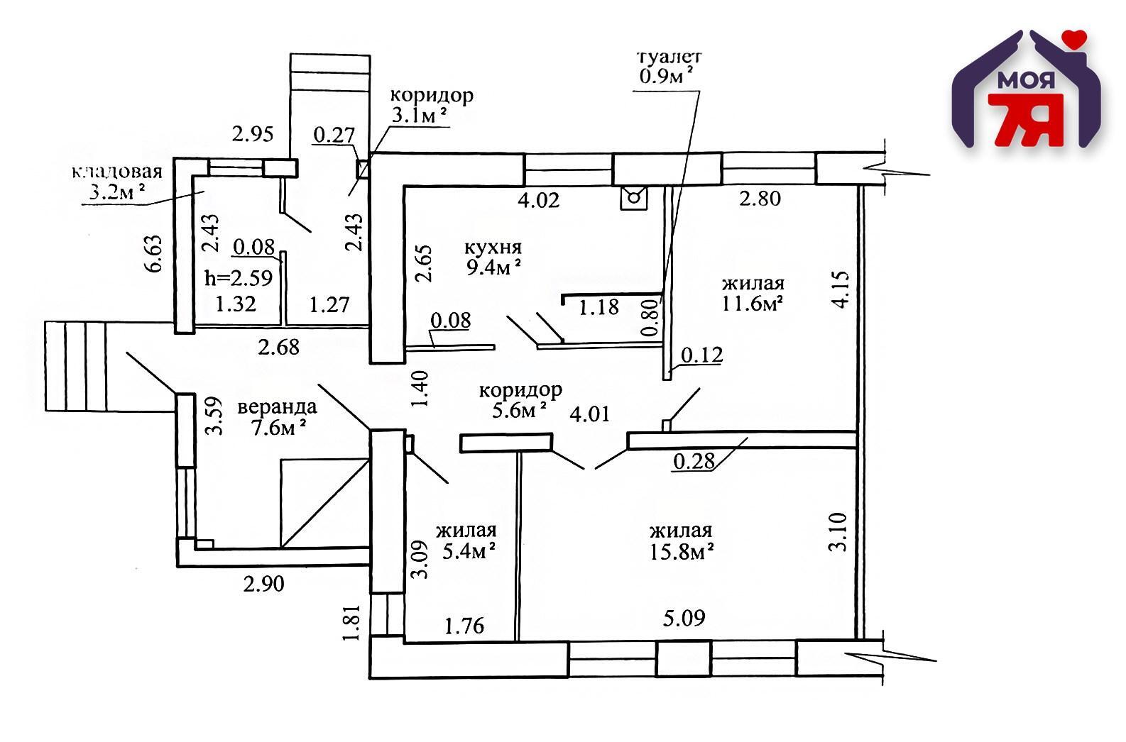
56.3 м2
Общая площадь
32.8 м2
Жилая
9.4 м2
Кухня
3
Комнат
1 из 1
Этаж
1974
Год постройки
Описание

Комфортных половина жилого дома в живописном месте возле Вилейского водохранилища

❤️Крепкий дом 1974 г.п. с небольшим участком - отличный вариант как для дачи так и для круглогодичного проживания.

- В агрогородке есть почта, дом культуры, фельдшерский пункт, магазины.

- Кирпичный дом со всеми центральными коммуникациями, шиферной крышей расположен на участке 7,8 соток.

- Общая площадь дома составляет 56,3 м2, жилая площадь - 32,8 м2, площадь кухни – 9,4 м2.

- Отопление газовый двухконтурный котёл, который греет и дом и воду.

- В дом подведена центральная вода; полы деревянные, местами линолеум ; окна деревянные и ПВХ.

- Канализация центральная, подведена на кухню и санузел, который находится в доме.

- Территория участка огорожена забором.

- К дому проведено оптоволокно, подключен интернет.

- На участке расположен прекрасный сад, который будут радовать вас своим урожаем. В Вашем распоряжении будет банька, хоз. постройки.

- Дом расположен в агрогородке Кривое Село. В 500 метрах от дома леc, где можно не только совершать прогулки, а так же собирать грибы и ягоды. В шаговой доступности есть продуктовый магазин, амбулатория, сельсовет.

- Остановка общественного транспорта расположена недалеко от дома.

- В 3,5 километрах находится Вилейское водохранилище. Прекрасное место для отдыха с семьей и друзьями. На Вилейском водохранилище расположено несколько кемпингов для отдыха, что сделает Ваш отдых намного комфортнее.

- В доме остаётся всё что есть на фотографиях.

❤️ Мы с радостью покажем Вам данный объект и сделаем Вас его счастливыми хозяевами!

А также хотите:

- выгодно продать

- срочно выкупить

- найти лучшую квартиру

- заработать на инвестициях в недвижимость

- сделать дизайнерский ремонт

Тогда «Моя 7Я» решит это, как для своей семьи: с любовью, заботой и желаемым результатом!

Агентство недвижимости ООО «Центр международной недвижимости Моя 7Я»

УНП 193750826

Лицензия: № 02240/484 выдана МЮ РБ 18.05.2024 г.

Страховое свидетельство БР 0004860

Характеристики
Комнат
3
Общая площадь
56.3 м2
Жилая
32.8 м2
Кухня
9.4 м2
Этаж
1 из 1
Год постройки
1974
Санузел
Совмещенный
Балкон/лоджия
Нет
Расположение
ул. Первомайская, аг. Кривое Село
Инфраструктура

Похожие объекты рядом

44 270 Br
868 Br/м2
3 комн.
51 м2
2 /2  этаж
ул. Стахановская, Вилейка
26 267 Br
452 Br/м2
3 комн.
58.1 м2
1 /2  этаж
ул. Партизанская, 19, аг. Куренец
35 416 Br
1 064 Br/м2
2 комн.
33.3 м2
1 /1  этаж
пер. Чайковского, 11, Вилейка
38 367 Br
538 Br/м2
3 комн.
71.3 м2
3 /5  этаж
ул. Комарова, 6, Вилейка
64 633 Br
2 154 Br/м2
1 комн.
30 м2
4 /5  этаж
ул. Гагарина, 12, Вилейка
63 453 Br
1 140 Br/м2
2 комн.
55.7 м2
3 /3  этаж
ул. Чайковского, 20, аг. Шиловичи
49 877 Br
1 313 Br/м2
2 комн.
38 м2
1 /1  этаж
ул. Заречная, 11, Молодечно
64 633 Br
1 206 Br/м2
2 комн.
53.6 м2
1 /1  этаж
пер. Литейный, Молодечно
66 404 Br
1 795 Br/м2
1 комн.
37 м2
1 /1  этаж
ул. Виленская, 16, Молодечно
54 599 Br
989 Br/м2
2 комн.
55.2 м2
1 /1  этаж
пер. 1-й Чкалова, Молодечно
64 338 Br
1 329 Br/м2
2 комн.
48.4 м2
2 /2  этаж
пер. Школьный, 7, аг. Засковичи
41 023 Br
839 Br/м2
3 комн.
48.9 м2
1 /1  этаж
ул. Новая, д. Вязовец