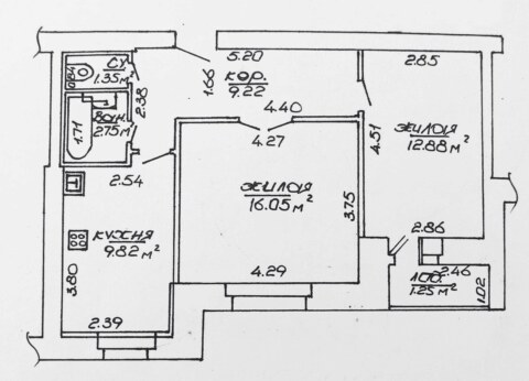
Продается 2-комнатная квартира в Гомеле на улице Советская 106, площадью 56.1 м²

ул. Советская, 106, Гомель
56.1 м2
Общая площадь
36.5 м2
Жилая
7.3 м2
Кухня
2
Комнат
2.5 м
Высота потолков
4 из 7
Этаж
1977
Год постройки
Описание

Продаётся просторная 2-х комнатная квартира в самом центре города по ул. Советская 106. Квартира расположена на 4-м этаже 7-ми этажного кирпичного дома. В доме установлен новый лифт. Все окна ПВХ. Квартира располагается на две стороны. Кухня и меньшая спальня с лоджией на Советскую, а большая комната 21 кв.м на тихий двор. В шаговой доступности д/сады, школы, университет, магазины, универмаг, остановки и много другое.

Квартира без ремонта

Характеристики
Комнат
2
Общая площадь
56.1 м2
Жилая
36.5 м2
Кухня
7.3 м2
Этаж
4 из 7
Высота потолков
2.5 м
Год постройки
1977
Санузел
Раздельный
Балкон/лоджия
1
Расположение
ул. Советская, 106, Гомель
Инфраструктура
Обновлено29.10.2025, 14:30
Номер договора№185/18 от 28.10.2025
Всего просмотров10

Похожие объекты рядом

103 418 Br
4 056 Br/м2
1 комн.
25.5 м2
1 /5  этаж
Солигорский район
138 000 Br
3 180 Br/м2
2 комн.
43.4 м2
4 /5  этаж
ул. Советская, 57, Гомель
192 062 Br
3 029 Br/м2
3 комн.
63.4 м2
7 /10  этаж
ул. Советская, 97, Гомель
199 449 Br
3 191 Br/м2
3 комн.
62.5 м2
10 /10  этаж
ул. Советская, 97, Гомель
130 000 Br
3 385 Br/м2
2 комн.
38.4 м2
3 /5  этаж
ул. Кожара, 32, Гомель
206 541 Br
3 078 Br/м2
3 комн.
67.1 м2
5 /9  этаж
ул. Советская, 97к3, Гомель
118 192 Br
2 547 Br/м2
2 комн.
46.4 м2
4 /5  этаж
ул. Малайчука, 11, Гомель
118 192 Br
2 359 Br/м2
2 комн.
50.1 м2
1 /5  этаж
ул. Юбилейная, 1, Гомель
147 740 Br
2 383 Br/м2
3 комн.
62 м2
4 /5  этаж
ул. Малайчука, 33, Гомель
118 192 Br
2 381 Br/м2
3 комн.
49.64 м2
2 /5  этаж
ул. Малайчука, 37, Гомель
150 695 Br
2 788 Br/м2
3 комн.
54.05 м2
1 /4  этаж
ул. Пушкина, 3, Гомель
168 424 Br
3 239 Br/м2
2 комн.
52 м2
3 /10  этаж
ул. Мазурова, 72, Гомель