Продается 3-комнатная квартира в Минске на улице Нововиленская 57, площадью 84.9 м²

ул. Нововиленская, 57, Минск
84.9 м2
Общая площадь
68.6 м2
Жилая
3
Комнат
5 из 9
Этаж
2023
Год постройки
Описание

Элегантная квартира с дизайнерским интерьером

❤️Элегантная трёхкомнатная квартира премиум-класса в одном из лучших районов Минска.

- Общая площадь - 84,9 кв.м., жилая - 68,6 кв.м.

- Просторная гостиная, объединённая с кухней, оформлена в современном стиле и наполнена естественным светом. Открытая планировка визуально расширяет пространство, обеспечивая свободное перемещение между зонами. В отделке использованы высококачественные материалы: натуральный паркет придаёт уют, а столешница и фартук на кухне, выполненные из керамогранита под мрамор, подчёркивают статус интерьера. Фасады выполнены из шпона и фрезерованного МДФ, установлена фурнитура премиального бренда Blum, а система хранения Kesseböhmer обеспечивает продуманную организацию пространства. Центральным элементом стала кухонная островная зона с алюминиевым фасадом в медном оттенке и обеденным столом из натурального мрамора. Бытовая техника представлена эксклюзивной серией Smeg: варочная панель, духовой шкаф с функцией микроволновки (лимитированная серия), кофемашина и стиральная машина. Вместительный холодильник Side-by-Side совмещает полноразмерные морозильную и холодильную камеры. В зоне гостиной установлен телевизор Samsung 65", в кухонной - Samsung 55". Паровой камин с управлением через смартфон добавляет уюта и современного удобства. Зона отдыха оформлена индивидуально изготовленным диваном с глубокой посадкой - он одновременно стильный и максимально комфортный. Дизайнерское освещение Maytoni (Германия) деликатно зонирует помещение: подвесные светильники над обеденной группой и скрытая подсветка подчеркивают изысканный характер интерьера.

- Спальня оформлена в спокойной палитре, располагающей к отдыху. Интерьер сочетает в себе уют и элегантность: мягкий рассеянный свет, качественные текстильные материалы и благородные акценты создают гармоничное пространство для расслабления. Напольное покрытие - бельгийский ковролин, добавляющий тепла и уюта. Установлена кровать 180×220 см с подъёмным механизмом. Встроенный шкаф органично вписан в интерьер и обеспечивает достаточное пространство для хранения.

- Гардеробная оформлена в выразительной палитре с винными акцентами и фурнитурой в тёплом золотистом оттенке. Пространство продумано до деталей: вместительные ящики, открытые полки, рейлы для одежды и столешница у окна из керамогранита создают комфортную зону для макияжа и аксессуаров.

- Универсальная комната с нейтральной отделкой подойдёт как для кабинета, так и для спальни. Светлые стены с декоративной разметкой, тёплый паркет и изящные настенные бра формируют утончённый и при этом универсальный фон. Жалюзи из натурального дерева и плотные шторы позволяют гибко регулировать уровень света и приватности. Пространство легко адаптируется под любые задачи, сохраняя при этом стиль и комфорт.

- Ванная комната выполнена в духе премиального спа. Здесь установлена сантехника высокого класса, а в отделке использованы керамогранитные поверхности под мрамор, стеклянные перегородки и хромированные элементы. Пространство тщательно организовано: вместительная тумба с раковиной обеспечивает места для хранения, большое зеркало с подсветкой визуально расширяет помещение, а электрический тёплый пол добавляет уюта. Напольное покрытие - итальянская крупноформатная плитка Marazzi, подчёркивающая общий характер интерьера.

- Коридор с первых шагов задаёт тон всей квартире. Он сочетает в себе эстетику и функциональность: встроенный шкаф для верхней одежды аккуратно интегрирован в интерьер. Высокие скрытые двери (2,3 м), премиальные отделочные материалы и элегантное освещение визуально объединяют прихожую с остальными зонами. Большое зеркало не только удобно в повседневн

Характеристики
Комнат
3
Общая площадь
84.9 м2
Жилая
68.6 м2
Этаж
5 из 9
Год постройки
2023
Санузел
Совмещенный
Балкон/лоджия
Нет
Расположение
ул. Нововиленская, 57, Минск
Инфраструктура

Похожие объекты рядом

541 495 Br
6 532 Br/м2
3 комн.
82.9 м2
1 /9  этаж
ул. Червякова, 55, Минск
629 305 Br
12 461 Br/м2
2 комн.
50.5 м2
7 /14  этаж
ул. Панфилова, 3, Минск
Молодежная ~950 метров
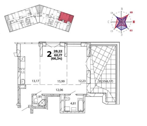
660 202 Br
9 952 Br/м2
2 комн.
66.34 м2
14 /15  этаж
ул. Кропоткина, 63, Минск
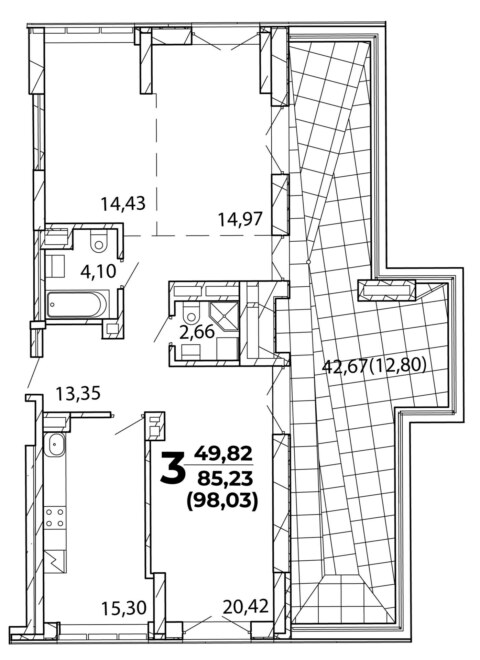
989 923 Br
10 098 Br/м2
3 комн.
98.03 м2
15 /15  этаж
ул. Кропоткина, 63, Минск
582 473 Br
4 515 Br/м2
4 комн.
129 м2
3 /17  этаж
Минск
1 006 595 Br
11 718 Br/м2
3 комн.
85.9 м2
4 /9  этаж
ул. Максима Богдановича, 52Г, Минск
Пл Якуба Коласа ~1100 метров
1 317 150 Br
6 028 Br/м2
5+ комн.
218.5 м2
3 /4  этаж
ул. Димитрова, 3, Минск
Немига ~506 метров
544 422 Br
7 668 Br/м2
2 комн.
71 м2
3 /8  этаж
ул. Мястровская, 1, Минск
687 845 Br
7 263 Br/м2
3 комн.
94.7 м2
3 /5  этаж
пр. Победителей, 121, Минск
614 670 Br
6 718 Br/м2
3 комн.
91.5 м2
14 /25  этаж
ул. Мястровская, 16, Минск
1 111 967 Br
5 956 Br/м2
5+ комн.
186.7 м2
9 /10  этаж
ул. Леонида Беды, 6, Минск
564 911 Br
6 654 Br/м2
3 комн.
84.9 м2
4 /4  этаж
ул. Романовская Слобода, 1, Минск
Немига ~587 метров