Продается 2-комнатная квартира в Лиде на улице Рыбиновского 14, площадью 60 м²

ул. Рыбиновского, 14, Лида
60 м2
Общая площадь
36.7 м2
Жилая
9.1 м2
Кухня
2
Комнат
7 из 9
Этаж
1998
Год постройки
Описание

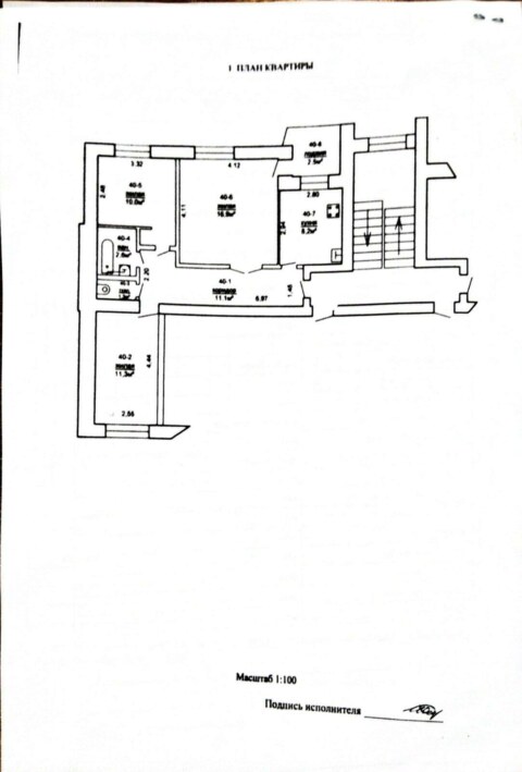
Продаётся 2к квартира в г. Лиде по ул. Рыбиновского,14

Квартира расположена на седьмом этаже девятиэтажного дома с хорошим видом из окна.

Год постройки дома 1998.

Общая площадь квартиры общая площадь 60.0 м2, жилая 36.7 м2, кухня 9.1 м2

Две комнаты изолированы: 16.9 м2, 19.8 м2. Без балкона. Раздельный санузел.

Высота потолков 2.50 м.

Две входные двери, на полу линолеум/плитка, на стенах обои.

Идеальное расположение дома: парковая зона, детские игровые площадки, школа, детские сады, торговые объекты, остановки общественного транспорта.

Окажем помощь в продаже Вашей недвижимости для покупки этой!

Юридическое сопровождение сделки гарантируем.

Работаем с привлечением кредита, семейного капитала, жилищного баланса.

Характеристики
Комнат
2
Общая площадь
60 м2
Жилая
36.7 м2
Кухня
9.1 м2
Этаж
7 из 9
Год постройки
1998
Санузел
Раздельный
Балкон/лоджия
Нет
Расположение
ул. Рыбиновского, 14, Лида
Инфраструктура

Похожие объекты рядом

134 105 Br
2 312 Br/м2
4 комн.
58 м2
3 /5  этаж
ул. Крупской, 165, Лида
77 483 Br
1 181 Br/м2
3 комн.
65.6 м2
1 /1  этаж
ул. Осликовского, 14А, Лида
107 880 Br
2 115 Br/м2
3 комн.
51 м2
5 /5  этаж
ул. Крупской, 164, Лида
95 363 Br
2 343 Br/м2
2 комн.
40.7 м2
2 /5  этаж
ул. Крупской, 164, Лида
149 005 Br
2 096 Br/м2
3 комн.
71.1 м2
5 /5  этаж
ул. Рыбиновского, 50, Лида
122 154 Br
1 989 Br/м2
3 комн.
61.4 м2
5 /5  этаж
ул. Тухачевского, 73, Лида
111 754 Br
1 918 Br/м2
3 комн.
62 м2
5 /5  этаж
ул. Тухачевского, 71, Лида
125 164 Br
2 523 Br/м2
2 комн.
49.6 м2
8 /9  этаж
ул. Рыбиновского, 64к1, Лида
151 985 Br
2 258 Br/м2
3 комн.
67.3 м2
4 /9  этаж
ул. Рыбиновского, 64к1, Лида
140 065 Br
2 230 Br/м2
3 комн.
62.8 м2
4 /5  этаж
ул. Тухачевского, 75, Лида
146 025 Br
2 398 Br/м2
3 комн.
60.9 м2
2 /5  этаж
ул. Тухачевского, 71к1, Лида
122 184 Br
2 040 Br/м2
3 комн.
59.9 м2
5 /5  этаж
ул. Рыбиновского, 66, Лида