Продается 3-комнатная квартира в Барановичах на улице Энтузиастов 34, площадью 67.7 м²

ул. Энтузиастов, 34, Барановичи
67.7 м2
Общая площадь
42.3 м2
Жилая
9.1 м2
Кухня
3
Комнат
3 из 5
Этаж
1984
Год постройки
Описание

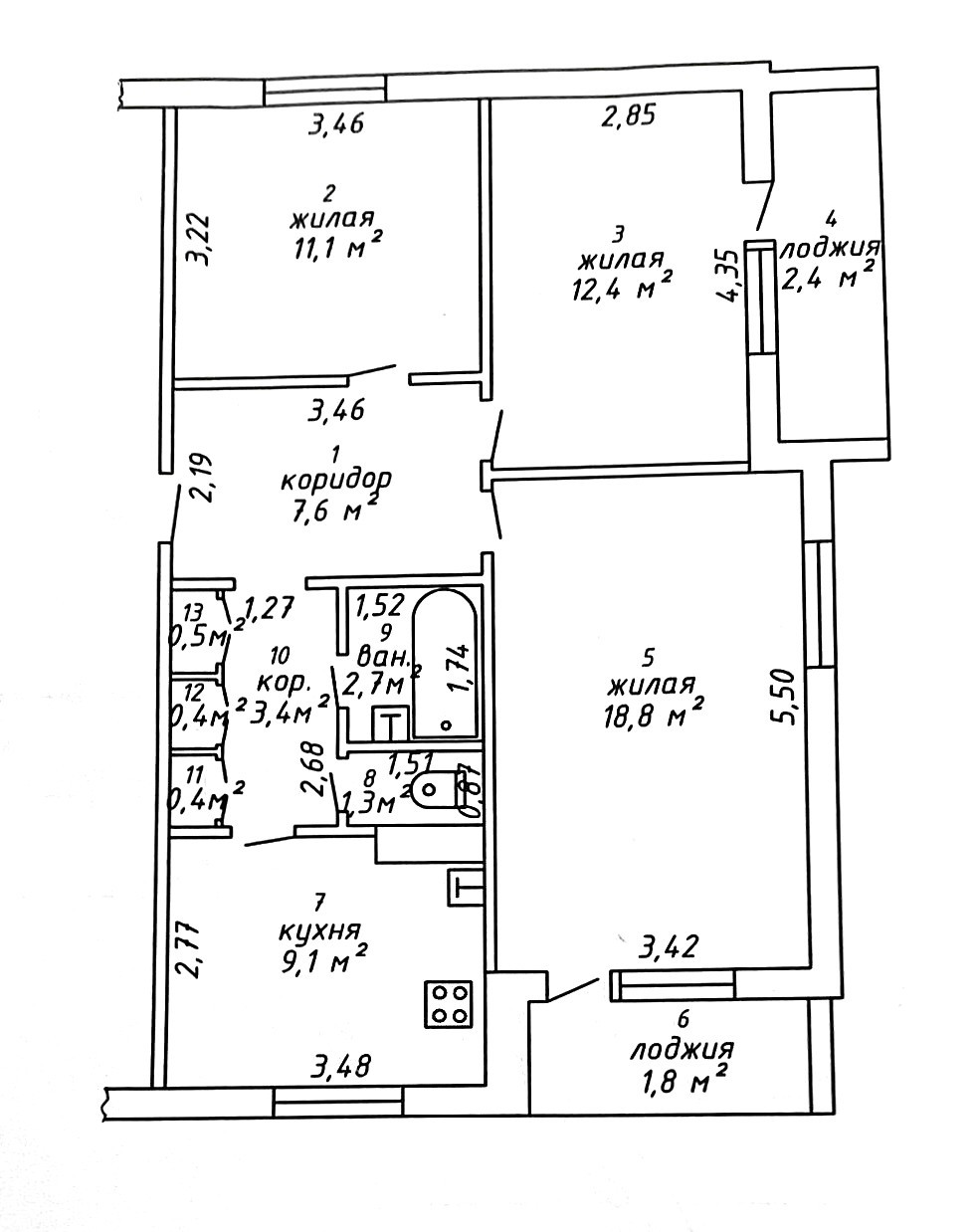
Продаётся 3-комнатная квартира по адресу: ул. Энтузиастов, д. 34.

Квартира находится на 3-ом этаже в 5-этажном панельном доме 1984 г. п.

Общая площадь по СНБ – 72 м², общая жилая - 67.7м², жилая – 42,3 м², кухня – 9.1 м².

* окна – стеклопакеты;

* 2 лоджии;

* раздельный санузел;

* полы – ламинат.

* вся мебель остается.

* аккуратный, чистый подъезд.

В 2014 г. был произведён капитальный ремонт фасада.

Район с развитой инфраструктурой и прекрасным транспортным сообщением. Рядом с домом расположен д/с № 3, №9, №14, №25; школы №17 и № 20.

В шаговой доступности все необходимое для комфортного проживания: магазины, рынок «Алексеевский», банк, поликлиники.

По интересующим вопросам звоните!

Характеристики
Комнат
3
Общая площадь
67.7 м2
Жилая
42.3 м2
Кухня
9.1 м2
Этаж
3 из 5
Год постройки
1984
Санузел
Раздельный
Балкон/лоджия
2
Расположение
ул. Энтузиастов, 34, Барановичи
Инфраструктура
Обновлено27.10.2025, 14:00
Номер договора№152/11 от 25.10.2025
Всего просмотров8

Похожие объекты рядом

110 264 Br
1 697 Br/м2
3 комн.
65 м2
1 /5  этаж
ул. Парковая, 3, Барановичи
89 403 Br
2 027 Br/м2
2 комн.
44.1 м2
2 /5  этаж
ул. Космонавтов, 3, Барановичи
84 933 Br
1 926 Br/м2
2 комн.
44.1 м2
3 /5  этаж
ул. Фабричная, 12, Барановичи
146 025 Br
1 950 Br/м2
3 комн.
74.9 м2
6 /9  этаж
ул. Текстильная, 8, Барановичи
131 124 Br
2 571 Br/м2
2 комн.
51 м2
9 /9  этаж
ул. Советская, 100, Барановичи
104 900 Br
2 577 Br/м2
2 комн.
40.7 м2
1 /4  этаж
ул. Царюка, 20, Барановичи
93 873 Br
1 904 Br/м2
3 комн.
49.3 м2
1 /5  этаж
ул. 50 лет ВЛКСМ, 32А, Барановичи
114 734 Br
1 765 Br/м2
3 комн.
65 м2
1 /1  этаж
ул. Царюка, 47, Барановичи
111 754 Br
1 727 Br/м2
4 комн.
64.72 м2
3 /9  этаж
ул. Наконечникова, 11, Барановичи
163 607 Br
2 037 Br/м2
4 комн.
80.3 м2
7 /9  этаж
ул. Наконечникова, 17/4, Барановичи
169 866 Br
2 147 Br/м2
4 комн.
79.1 м2
5 /9  этаж
ул. Наконечникова, 17/6, Барановичи
140 959 Br
2 373 Br/м2
2 комн.
59.4 м2
1 /9  этаж
ул. Лейтенанта Куконенко, 6, Барановичи