Продается 1-комнатная квартира в Минске площадью 42.8 м²

Минск
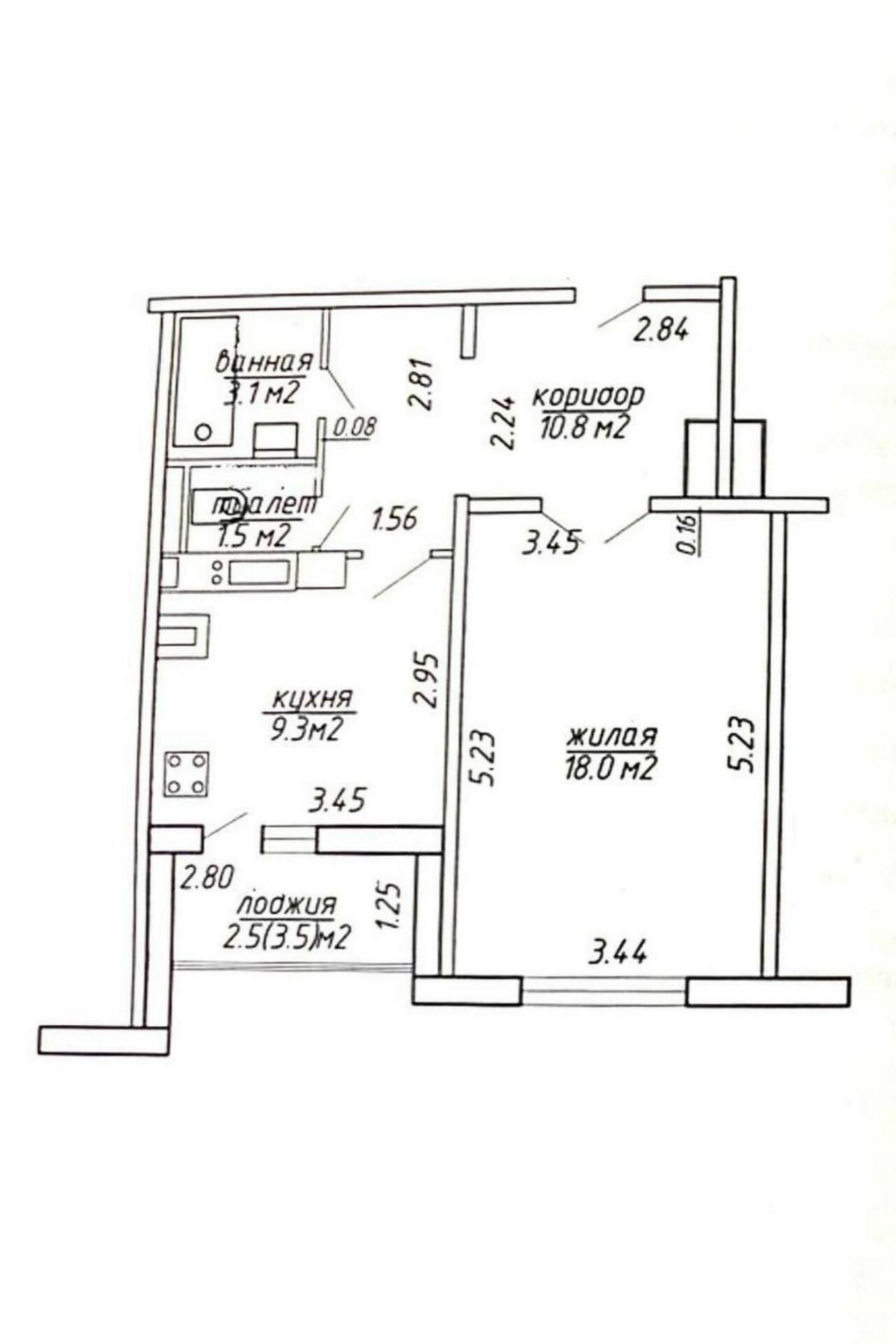
42.8 м2
Общая площадь
18 м2
Жилая
9.3 м2
Кухня
1
Комнат
2.5 м
Высота потолков
12 из 19
Этаж
2012
Год постройки
Описание

Продается просторная 1 комнатная квартира с мебелью и техникой.

Рядом: Евроопт, Гиппо в шаговой доступности, банно-оздоровительный комплекс «Сухаревский», ТЦ Максимус.

Рядом детский сад, школа, гимназия, много парковок.

Хорошее транспортное сообщение, до Каменной Горки 10 мин на транспорте, удобный выезд на МКАД.

Характеристики
Комнат
1
Общая площадь
42.8 м2
Жилая
18 м2
Кухня
9.3 м2
Этаж
12 из 19
Высота потолков
2.5 м
Год постройки
2012
Санузел
Раздельный
Балкон/лоджия
1
Расположение
Минск
Инфраструктура
Обновлено27.10.2025, 12:30
Номер договора№139/1 от 10.09.2025
Всего просмотров11

Похожие объекты рядом

277 745 Br
5 905 Br/м2
2 комн.
48.9 м2
4 /9  этаж
ул. Пимена Панченко, 14, Минск
293 540 Br
4 461 Br/м2
3 комн.
65.8 м2
4 /9  этаж
ул. Пимена Панченко, 40, Минск
223 508 Br
5 836 Br/м2
1 комн.
38.3 м2
4 /5  этаж
ул. Лобанка, 85, Минск
255 991 Br
5 059 Br/м2
2 комн.
50.6 м2
7 /14  этаж
ул. Лобанка, 71, Минск
351 354 Br
4 563 Br/м2
3 комн.
77 м2
2 /9  этаж
ул. Янковского, 4, Минск
348 672 Br
3 757 Br/м2
4 комн.
92.8 м2
1 /9  этаж
ул. Скрипникова, 27, Минск
223 209 Br
5 525 Br/м2
1 комн.
40.4 м2
2 /9  этаж
ул. Чайлытко, 11, Минск
298 010 Br
4 885 Br/м2
2 комн.
61 м2
6 /9  этаж
ул. Скрипникова, 25, Минск
339 135 Br
8 901 Br/м2
2 комн.
38.1 м2
18 /22  этаж
ул. Маршала Лосика, 57, Минск
267 911 Br
5 875 Br/м2
1 комн.
45.6 м2
2 /22  этаж
ул. Маршала Лосика, 57, Минск
253 010 Br
5 598 Br/м2
1 комн.
45.2 м2
15 /19  этаж
ул. Академика Карского, 4, Минск
321 553 Br
4 947 Br/м2
3 комн.
65 м2
9 /12  этаж
ул. Янковского, 37, Минск