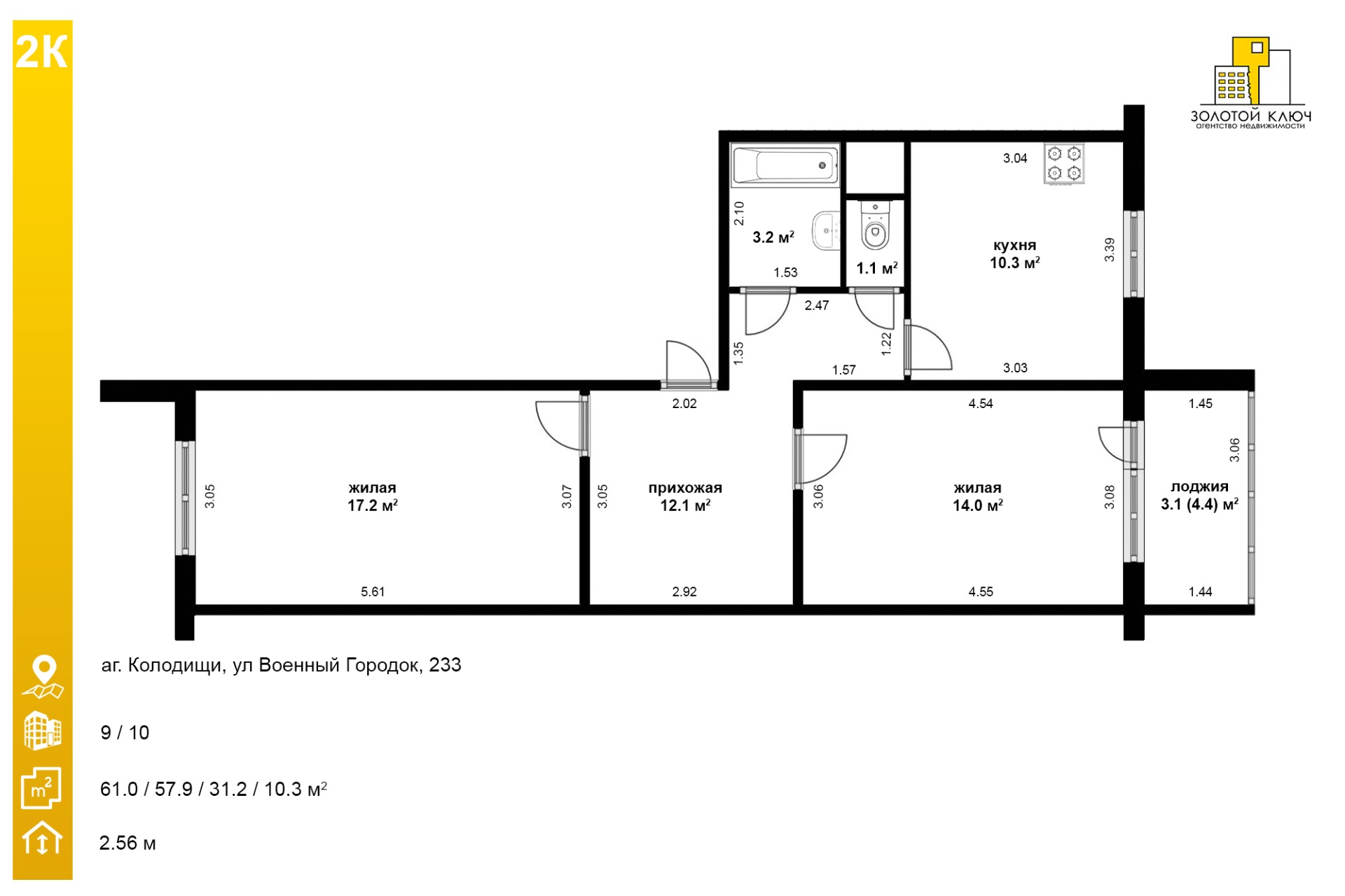
Продается 2-комнатная квартира в Колодищах на улице Военный Городок 233, площадью 61 м²

ул. Военный Городок, 233, аг. Колодищи, Минский район
61 м2
Общая площадь
31.2 м2
Жилая
10.3 м2
Кухня
2
Комнат
2.56 м
Высота потолков
9 из 10
Этаж
2018
Год постройки
Описание

Продадим красивую стильную квартиру в аг. Колодищи.

Жилой комплекс окружен лесным массивом при этом  находится в 10 минутах от ст. м. Уручье. Остановка транспорта в 5 минутах от дома. В пешей доступности и магазины. До центра Минска - 25 минут по проспекту Независимости. Удобный выезд на  М-2, МКАД и МКАД-2.

Современный дом 2018 года постройки со своей придомовой территорией, большой детской площадкой достаточным количеством парковочных мест за шлагбаумом.

Для любителей спорта есть турник и брусья На придомовой территории оборудована калитка через которую можно сразу попасть в сосновый лес в котором есть грибы и ягоды. Оборудованы территории отдыха с мангалом.

Тамбурная система на площадке. В закрытых просторных тамбурах  по 2 квартиры. Современный грузовой лифт. На этажной площадке оборудована зона хранения.

Площадь квартиры в рекламе указана по СНБ и составляет 61 м.кв.

Оптимальная по метражу кухня – 10,3 м.кв., комнаты: 17, 2 м.кв. и 14, 0 м.кв..

Высота потолка – 2.56.

Квартира в идеальном состоянии. Удачная планировка и грамотно спланированное пространство позволили сохранить просторные комнаты, вместительную гардеробную. Планировка «на 2 стороны». Завораживающий вид из окон за счет высокого этажа и окружения соснового леса. Артезианская вода, чистый воздух.   

Практически вся мебель в квартире встроенная и многофункциональная. Все выполнено по индивидуальному заказу. В стоимость квартиры входит мебель и техника за редким исключением.

Квартира полностью готова для проживания и ждет новых хозяев!
Звоните! Ждем вас на просмотр!

Показы организовываем по предварительному согласованию даты и времени показа.

Продаем в связи с расширением.

Встречный вариант – подобран.

Характеристики
Комнат
2
Общая площадь
61 м2
Жилая
31.2 м2
Кухня
10.3 м2
Этаж
9 из 10
Высота потолков
2.56 м
Год постройки
2018
Материал стен
Панельный
Санузел
Раздельный
Балкон/лоджия
1
Дополнительно
Мебель
Бытовая техника
Детская площадка
Расположение
ул. Военный Городок, 233, аг. Колодищи, Минский район
Инфраструктура
Планировка объекта
Посмотреть
Обновлено11.12.2025, 18:34
Номер договора115/1 от 24.10.2025
Всего просмотров182

Похожие объекты рядом

430 873 Br
2 026 Br/м2
5+ комн.
212.7 м2
1 /3  этаж
ул. Дмитриевская, аг. Колодищи, Минский район
287 249 Br
6 383 Br/м2
1 комн.
45 м2
15 /19  этаж
ул. Курсанта Гвишиани, 11, Минск
257 943 Br
5 719 Br/м2
1 комн.
45.1 м2
10 /19  этаж
ул. Героев 120-й Дивизии, 4, Минск
Уручье ~1015 метров
475 846 Br
5 420 Br/м2
3 комн.
87.8 м2
1 /5  этаж
ул. Стариновская, 31, Минск
Уручье ~610 метров
475 846 Br
5 270 Br/м2
3 комн.
90.3 м2
3 /12  этаж
пр. Независимости, 185, Минск
Уручье ~390 метров
414 915 Br
5 926 Br/м2
2 комн.
73.4 м2
10 /14  этаж
пр. Независимости, 185, Минск
Уручье ~327 метров
362 688 Br
6 179 Br/м2
2 комн.
58.7 м2
9 /14  этаж
пр. Независимости, 183, Минск
Уручье ~224 метра
324 678 Br
5 137 Br/м2
3 комн.
63.2 м2
2 /9  этаж
ул. Никифорова, 7, Минск
Уручье ~597 метров
189 468 Br
5 639 Br/м2
1 комн.
33.6 м2
3 /9  этаж
ул. Никифорова, 11, Минск
Уручье ~532 метра
255 332 Br
6 109 Br/м2
1 комн.
41.8 м2
1 /11  этаж
ул. Подгорная, 19А/2, д. Копище, Минский район
326 419 Br
3 796 Br/м2
3 комн.
86 м2
2 /5  этаж
ул. 40 лет Победы, 28, д. Боровляны, Минский район
246 337 Br
4 840 Br/м2
2 комн.
50.9 м2
1 /9  этаж
ул. Троицкая, 18, аг. Лесной, Минский район