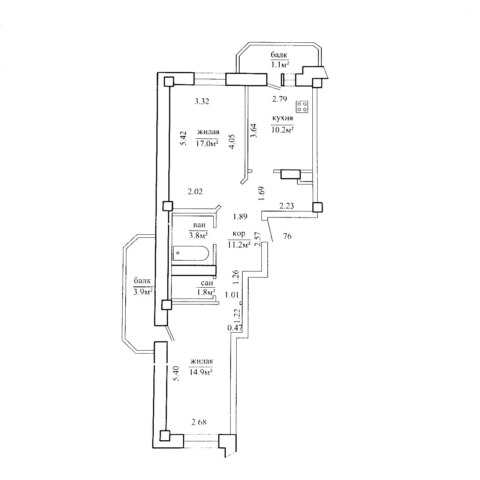
Продается 3-комнатная квартира в Могилёве на улице Урицкого 9, площадью 62.61 м²

ул. Урицкого, 9, Могилёв
62.61 м2
Общая площадь
40.73 м2
Жилая
8.29 м2
Кухня
3
Комнат
5 из 9
Этаж
Описание

В продаже 3-комнатная квартира ПОД РЕМОНТ по адресу ул. Урицкого, 9. Расположена на 5-м этаже 9-и этажного панельного дома, 1982 г/п. Общая площадь 62.61/ жилая 40.73/ кухня 8.29. Квартира под ремонт, 2-е изолированные комнаты, 1 - проходная, с/у раздельный, имеются 2 балкона - застеклены деревянной рамой. Частично в квартире остаётся мебель. Дом находится в близи от центра города, в 5 минутах ходьбы остановка общественного транспорта, автовокзал.

Рядом с домом имеются продовольственные магазины, детские сады, стоянка автомобилей под подъездом. Приглашаю на просмотр и отвечу на все интересующие Вас вопросы.

Договор 103/16 от 04.08.2025 г.

ОДО «Юриэлт», УНП 101214439,

Лицензия Министерства юстиции РБ

N°02240/8 от 17.02.2005 года (бессрочная) на право осуществления деятельности по оказанию юридических услуг - риэлтерских услуг.

Характеристики
Комнат
3
Общая площадь
62.61 м2
Жилая
40.73 м2
Кухня
8.29 м2
Этаж
5 из 9
Санузел
Раздельный
Балкон/лоджия
2
Расположение
ул. Урицкого, 9, Могилёв
Инфраструктура
Обновлено27.10.2025, 11:00
Номер договора№103/16 от 04.08.2025
Всего просмотров8

Похожие объекты рядом

126 000 Br
2 461 Br/м2
2 комн.
51.2 м2
5 /5  этаж
ул. Курако, 15, Могилёв
122 184 Br
4 184 Br/м2
1 комн.
29.2 м2
5 /5  этаж
бульвар Ленина, 3, Могилёв
105 794 Br
2 320 Br/м2
2 комн.
45.6 м2
2 /5  этаж
Днепровский бульвар, 56, Могилёв
138 742 Br
3 118 Br/м2
2 комн.
44.49 м2
2 /5  этаж
ул. Крупской, 55, Могилёв
223 508 Br
3 520 Br/м2
3 комн.
63.5 м2
8 /9  этаж
ул. Лазаренко, 40А, Могилёв
110 264 Br
2 461 Br/м2
2 комн.
44.8 м2
5 /5  этаж
ул. Лазаренко, 44, Могилёв
183 276 Br
2 390 Br/м2
2 комн.
76.7 м2
2 /5  этаж
ул. Менжинского, 6, Могилёв
104 304 Br
2 440 Br/м2
2 комн.
42.74 м2
2 /5  этаж
ул. Романова, 6, Могилёв
223 508 Br
3 795 Br/м2
2 комн.
58.9 м2
9 /10  этаж
ул. Турова, 12Б, Могилёв
205 627 Br
2 670 Br/м2
3 комн.
77 м2
4 /8  этаж
ул. Жемчужная, 15, Могилёв
84 933 Br
2 970 Br/м2
1 комн.
28.6 м2
3 /9  этаж
ул. Строителей, 13, Могилёв
101 323 Br
2 274 Br/м2
2 комн.
44.57 м2
4 /4  этаж
ул. Строителей, 20, Могилёв