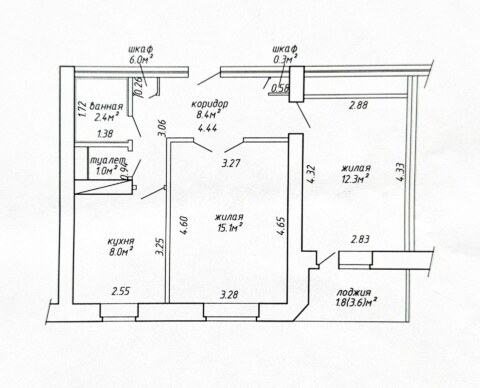
Продается 3-комнатная квартира в Минске на улице Физкультурная 14, площадью 77.3 м²

ул. Физкультурная, 14, Минск
Аэродромная ~1027 метров
77.3 м2
Общая площадь
44.9 м2
Жилая
11 м2
Кухня
3
Комнат
2 из 9
Этаж
2003
Год постройки
Описание

Просторная 3-комнатная квартира

❤️ Просторная трёхкомнатная квартира в благоустроенном районе - заезжай и живи!

- Просторная квартира общей площадью 77,3 кв.м. (указана по СНБ) с продуманной планировкой подарит удобство каждому члену семьи. Жилая зона 44,9 кв.м. и кухня 11 кв.м. позволяют организовать пространство для отдыха, работы и уютных семейных вечеров.- В квартире выполнен хороший ремонт. - Санузел раздельный, облицован плиткой и оборудован душевой кабиной и ванной – практичное и современное решение для комфорта.- Напольные покрытия – ламинат и кафель, создающие ощущение уюта и надёжности.- Хорошая просторная кухня станет местом притяжения для всей семьи. Здесь удобно готовить и приятно проводить время вместе.- Натяжные потолки добавляют лёгкости пространству, а окна ПВХ на две стороны дома делают квартиру светлой и уютной в любое время суток.- Две застеклённые лоджии, обшитые вагонкой, легко превратить в кабинет, зону отдыха или место для хранения – практично и функционально.- Квартира расположена на удобном 2 этаже 9-этажного дома 2003 года постройки. Чистый подъезд и спокойные соседи создают приятную атмосферу.- Район порадует развитой инфраструктурой: рядом торговые центры «Корона-Сити» и «Авиа Молл», магазины, школы, детские сады и медицинские учреждения. Для прогулок всего в 15 минутах – живописный Лошицкий парк и набережная Свислочи, где можно наслаждаться тишиной и природой.- Транспортное сообщение отличное: пешком 10 минут до метро «Аэродромная», удобный выезд на МКАД, а дорога до ж/д вокзала займёт всего 5–7 минут.

❤️ Ищете выгодную недвижимость или хотите продать свою? Мы решим это для Вас с заботой и профессионализмом:

- Купить квартиру или дом в Минске и области- Продать недвижимость по выгодной цене- Оформить ипотеку, семейный капитал или кредит на покупку недвижимости- Помочь с инвестициями в недвижимость- Подобрать дизайнерский ремонт или перепланировку- Выбрать лучший банк для выгодного кредита и лизинга

* Напишите нам в удобный мессенджер - Viber, Telegram или WhatsApp, и мы ответим на все вопросы!

❤️ «Моя 7Я» решит это, как для своей семьи: с любовью, заботой и желаемым результатом!

Агентство недвижимости ООО «Центр международной недвижимости Моя 7Я» | УНП 193750826 | Лицензия: № 02240/484 выдана МЮ РБ 18.05.2024 г. | Страховое свидетельство БР 0004913

Характеристики
Метро
Аэродромная
Комнат
3
Общая площадь
77.3 м2
Жилая
44.9 м2
Кухня
11 м2
Этаж
2 из 9
Год постройки
2003
Санузел
Раздельный
Балкон/лоджия
1
Расположение
ул. Физкультурная, 14, Минск
Инфраструктура

Похожие объекты рядом

333 536 Br
4 905 Br/м2
3 комн.
68 м2
7 /9  этаж
ул. Физкультурная, Минск
Аэродромная ~1182 метра
192 081 Br
6 087 Br/м2
1 комн.
31.8 м2
5 /5  этаж
ул. Козыревская, 23, Минск
265 042 Br
5 533 Br/м2
2 комн.
47.9 м2
9 /12  этаж
ул. Маяковского, 154, Минск
198 037 Br
6 169 Br/м2
2 комн.
32.1 м2
17 /25  этаж
Минск
Аэродромная ~611 метров
309 712 Br
4 947 Br/м2
3 комн.
62.6 м2
14 /19  этаж
Минск
Аэродромная ~867 метров
244 196 Br
5 653 Br/м2
2 комн.
43.2 м2
7 /19  этаж
Минск
Аэродромная ~862 метра
327 580 Br
5 163 Br/м2
4 комн.
63.45 м2
8 /21  этаж
Минск
Аэродромная ~646 метров
349 915 Br
5 262 Br/м2
3 комн.
66.5 м2
16 /19  этаж
Минск
Аэродромная ~920 метров
241 218 Br
8 014 Br/м2
2 комн.
30.1 м2
15 /19  этаж
Минск
Аэродромная ~921 метр
187 614 Br
6 254 Br/м2
1 комн.
30 м2
2 /19  этаж
Минск
Аэродромная ~923 метра
336 216 Br
7 747 Br/м2
2 комн.
43.4 м2
12 /19  этаж
Минск
Аэродромная ~930 метров
198 037 Br
7 124 Br/м2
1 комн.
27.8 м2
3 /14  этаж
Минск
Аэродромная ~378 метров