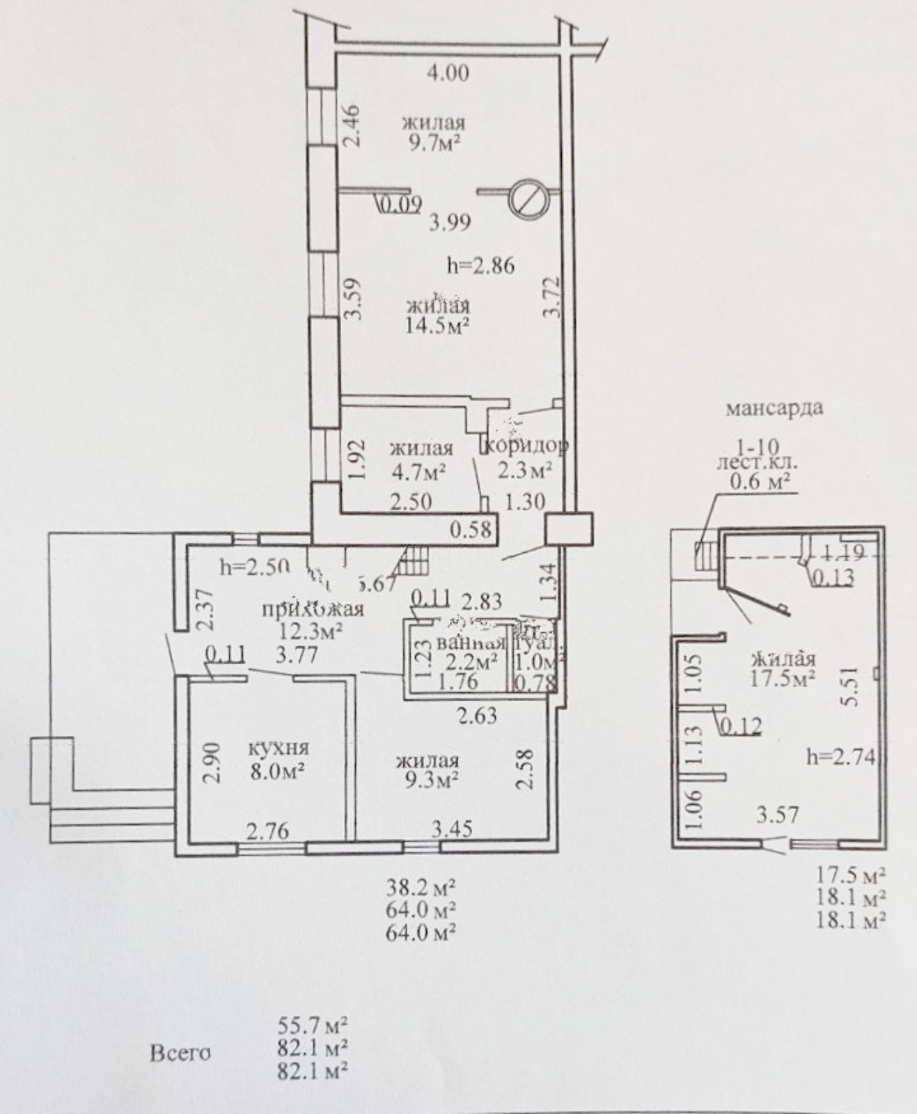
Продается 5-комнатная квартира в Витебске на улице Гагарина 176, площадью 82.1 м²

ул. Гагарина, 176, Витебск
82.1 м2
Общая площадь
55.7 м2
Жилая
8 м2
Кухня
5+
Комнат
1 из 1
Этаж
1954
Год постройки
Описание

В продаже 5 -комнатная квартира в 2-ух уровнях ( отапливаемая мансарда) - 82,1 м.кв. с участком земли в собственности 0,0281 га в кирпичном блокированном жилом доме по улице Гагарина. Все необходимые удобства : ЦЕНТРАЛЬНЫЕ / вода, свет, газ, канализация. Санузел раздельный, газовое отопление ( новый 2-контурный котёл). Есть подвал. Свежий воздух и комфорт/ огород, сад. Возможность организовать собственный уголок природы. Удобное месторасположение / рядом остановки, магазины и др. Есть вопросы- звоните! По просмотру заранее - Vb, WhatsApp, Telegram, Татьяна.

Договор № 195/19 от 15.09.2025

ОДО «Юриэлт», УНП 101214439

Лицензия Министерства юстиции Республики Беларусь № 02240/8 от 17.02.2005 (бессрочная) на право осуществления деятельности по оказанию юридических услуг -риэлтерских услуг.

Характеристики
Комнат
5+
Общая площадь
82.1 м2
Жилая
55.7 м2
Кухня
8 м2
Этаж
1 из 1
Год постройки
1954
Санузел
Раздельный
Расположение
ул. Гагарина, 176, Витебск
Инфраструктура
Обновлено17.10.2025, 12:00
Номер договора№195/19 от 15.09.2025
Всего просмотров716

Похожие объекты рядом

72 941 Br
2 353 Br/м2
1 комн.
31 м2
1 /5  этаж
ул. Гагарина, 168А, Витебск
110 752 Br
1 775 Br/м2
3 комн.
62.4 м2
7 /9  этаж
ул. Гагарина, 158, Витебск
74 430 Br
2 456 Br/м2
1 комн.
30.3 м2
1 /4  этаж
ул. Гагарина, 101, Витебск
84 850 Br
2 755 Br/м2
1 комн.
30.8 м2
3 /5  этаж
ул. Лазо, 3к2, Витебск
104 202 Br
2 911 Br/м2
1 комн.
35.8 м2
8 /12  этаж
пр. Генерала Людникова, 16к1, Витебск
105 691 Br
2 343 Br/м2
2 комн.
45.1 м2
3 /5  этаж
ул. Правды, 49, Витебск
125 042 Br
2 922 Br/м2
2 комн.
42.8 м2
3 /4  этаж
ул. Богдана Хмельницкого, 9А, Витебск
119 088 Br
2 146 Br/м2
3 комн.
55.5 м2
5 /5  этаж
пр. Московский, 22, Витебск
132 485 Br
2 288 Br/м2
4 комн.
57.9 м2
4 /5  этаж
ул. Чкалова, 9к9, Витебск
128 020 Br
2 207 Br/м2
3 комн.
58 м2
5 /5  этаж
пр. Победы, 3к3, Витебск
93 782 Br
3 025 Br/м2
1 комн.
31 м2
4 /5  этаж
ул. Герцена, 25, Витебск
80 384 Br
1 055 Br/м2
3 комн.
76.2 м2
4 /4  этаж
ул. Садовая, 9, Витебск