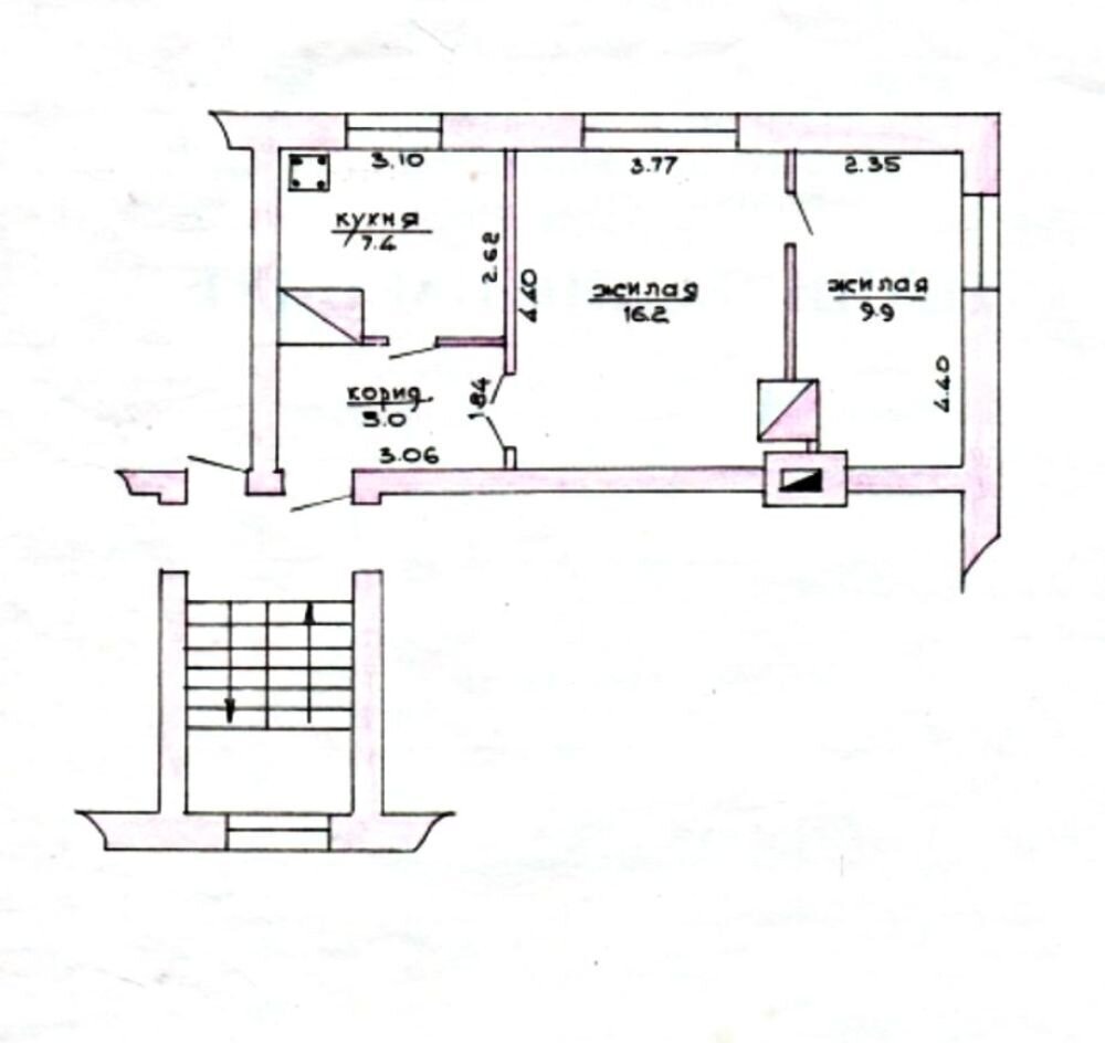
Продается 2-комнатная квартира в Лиде на улице Свердлова 175, площадью 38.5 м²

ул. Свердлова, 175, Лида
38.5 м2
Общая площадь
26.1 м2
Жилая
7.4 м2
Кухня
2
Комнат
2 из 2
Этаж
1966
Год постройки
Описание

Продаётся 2-к кв. в двухэтажном кирпичном доме по ул. Свердлова. В доме заменена скатная кровля и отремонтирован подъезд. В квартиру подведено водоснабжение, есть возможность обустройства канализации и санузла. В квартире печное отопление соответственно есть хоз постройки

Характеристики
Комнат
2
Общая площадь
38.5 м2
Жилая
26.1 м2
Кухня
7.4 м2
Этаж
2 из 2
Год постройки
1966
Санузел
Раздельный
Балкон/лоджия
Нет
Расположение
ул. Свердлова, 175, Лида
Инфраструктура

Похожие объекты рядом

28 340 Br
1 065 Br/м2
2 комн.
26.6 м2
2 /2  этаж
ул. Мира, 4, п. Первомайский
46 240 Br
777 Br/м2
3 комн.
59.5 м2
1 /2  этаж
ул. 17 Сентября, 21, д. Бастуны
31 324 Br
943 Br/м2
2 комн.
33.2 м2
2 /2  этаж
пер. В.И. Ленина, г.п. Радунь
35 202 Br
652 Br/м2
3 комн.
54 м2
5 /5  этаж
ул. Гагарина, 10, Берёзовка
42 657 Br
560 Br/м2
4 комн.
76.2 м2
1 /2  этаж
ул. 40 лет Победы, аг. Геранёны
44 748 Br
589 Br/м2
4 комн.
76 м2
2 /2  этаж
ул. Комсомольская, аг. Ходоровцы
41 466 Br
973 Br/м2
2 комн.
42.6 м2
1 /5  этаж
2, д. Гезгалы
38 782 Br
630 Br/м2
3 комн.
61.6 м2
5 /5  этаж
ул. Гродненская, 70, г.п. Острино
23 567 Br
410 Br/м2
2 комн.
57.5 м2
1 /1  этаж
ул. Комсомольская, 81, Слоним
50 118 Br
1 214 Br/м2
2 комн.
41.3 м2
5 /5  этаж
ул. Комсомольская, 3, Слоним
43 256 Br
1 442 Br/м2
1 комн.
30 м2
4 /5  этаж
ул. Хлюпина, 4, Слоним
44 748 Br
1 512 Br/м2
1 комн.
29.6 м2
2 /5  этаж
ул. Красноармейская, 22, Слоним