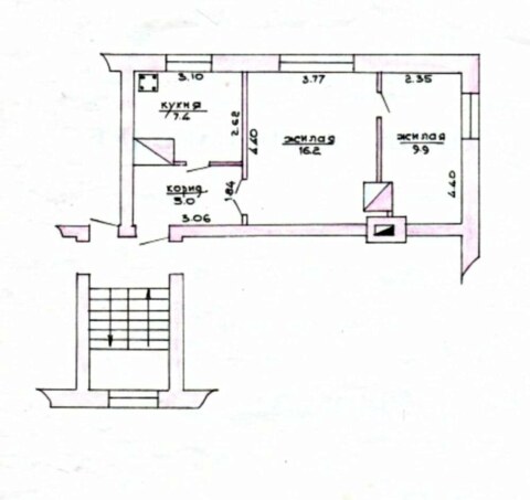
Продается 3-комнатная квартира в Острине на улице Гродненская 70, площадью 61.6 м²

ул. Гродненская, 70, г.п. Острино
61.6 м2
Общая площадь
36.6 м2
Жилая
8 м2
Кухня
3
Комнат
5 из 5
Этаж
1992
Год постройки
Описание

В продаже светлая и теплая трехкомнатная квартира на 5-м этаже в г.п. Острино Щучинского района в 50 км от Гродно, 20 км от Щучина . Квартира площадью 61,6 кв.м и кухней 8,1 м .кв. с косметическим ремонтом в комнатах и коридоре. В квартире установлена металлическая дверь. В с/у ремонта нет. Выход на лоджию через зал . Есть просторный организованный подвал .

Характеристики
Комнат
3
Общая площадь
61.6 м2
Жилая
36.6 м2
Кухня
8 м2
Этаж
5 из 5
Год постройки
1992
Санузел
Раздельный
Балкон/лоджия
1
Расположение
ул. Гродненская, 70, г.п. Острино
Инфраструктура

Похожие объекты рядом

44 748 Br
589 Br/м2
4 комн.
76 м2
2 /2  этаж
ул. Комсомольская, аг. Ходоровцы
31 324 Br
943 Br/м2
2 комн.
33.2 м2
2 /2  этаж
пер. В.И. Ленина, г.п. Радунь
35 798 Br
930 Br/м2
2 комн.
38.5 м2
2 /2  этаж
ул. Свердлова, 175, Лида
41 466 Br
973 Br/м2
2 комн.
42.6 м2
1 /5  этаж
2, д. Гезгалы
28 340 Br
1 065 Br/м2
2 комн.
26.6 м2
2 /2  этаж
ул. Мира, 4, п. Первомайский
46 240 Br
777 Br/м2
3 комн.
59.5 м2
1 /2  этаж
ул. 17 Сентября, 21, д. Бастуны
55 189 Br
1 419 Br/м2
1 комн.
38.9 м2
5 /5  этаж
ул. Ленина, 27Б, Берёзовка
35 202 Br
652 Br/м2
3 комн.
54 м2
5 /5  этаж
ул. Гагарина, 10, Берёзовка
25 000 Br
402 Br/м2
3 комн.
62.2 м2
1 /2  этаж
ул. Космонавтов, аг. Озерница
42 657 Br
560 Br/м2
4 комн.
76.2 м2
1 /2  этаж
ул. 40 лет Победы, аг. Геранёны
23 567 Br
410 Br/м2
2 комн.
57.5 м2
1 /1  этаж
ул. Комсомольская, 81, Слоним
50 118 Br
1 214 Br/м2
2 комн.
41.3 м2
5 /5  этаж
ул. Комсомольская, 3, Слоним