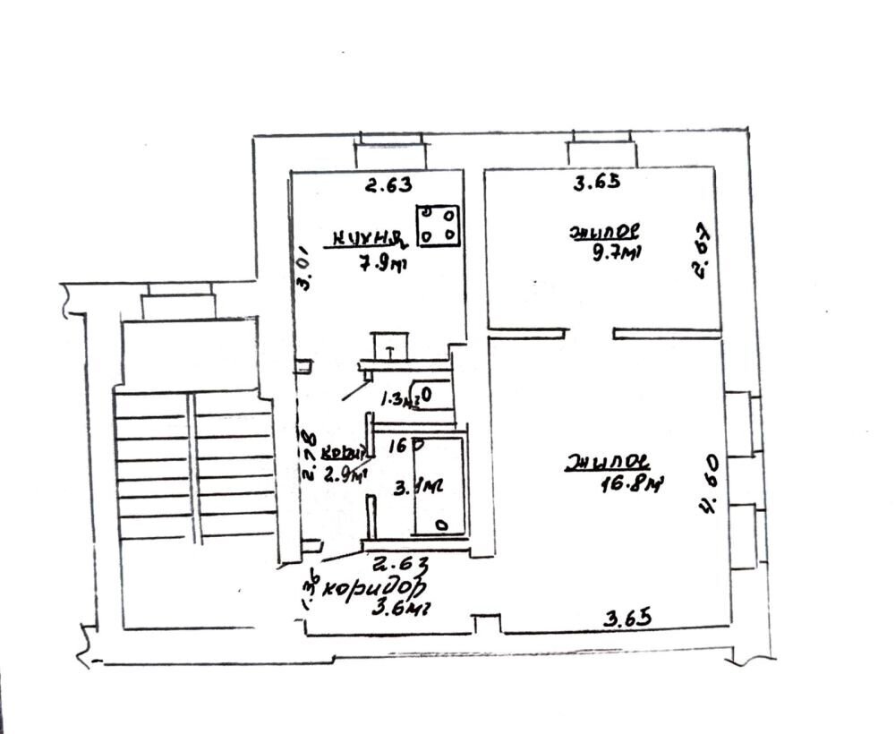
Продается 2-комнатная квартира в Молодечно на улице Лебедевская 16, площадью 45.2 м²

ул. Лебедевская, 16, Молодечно
45.2 м2
Общая площадь
26.5 м2
Жилая
7.9 м2
Кухня
2
Комнат
2 из 2
Этаж
1958
Год постройки
Описание

Двухкомнатная квартира по адресу г. Молодечно, ул. Лебедевская, 16. Квартира расположена на втором этаже, двухэтажного, кирпичного дома. Дом после капитального ремонта, расположен во дворах, в тихом районе города. Общая площадь квартиры составляет 45,2 м.кв., жилая 26,5 м.кв, кухня 7,9 м.кв., высота потолка 2,80 м., санузел разделтный, в подъезде установлена дверь с кодовым замком. Рядом детский сад и средняя школа, магазины, ТАЦ Спутник, поликлиника, городской парк, центр города с его инфраструктурой. Эта квартира станет отличным выбором и стартом для молодой семьи

Характеристики
Комнат
2
Общая площадь
45.2 м2
Жилая
26.5 м2
Кухня
7.9 м2
Этаж
2 из 2
Год постройки
1958
Санузел
Раздельный
Балкон/лоджия
Нет
Расположение
ул. Лебедевская, 16, Молодечно
Инфраструктура

Похожие объекты рядом

80 248 Br
3 028 Br/м2
1 комн.
26.5 м2
1 /2  этаж
ул. Маркова, 8, Молодечно
154 828 Br
2 267 Br/м2
3 комн.
68.3 м2
4 /4  этаж
ул. Якуба Ясинского, 27, Молодечно
128 278 Br
2 876 Br/м2
2 комн.
44.6 м2
4 /4  этаж
ул. Богдана Хмельницкого, 7, Молодечно
139 912 Br
2 548 Br/м2
3 комн.
54.9 м2
5 /5  этаж
ул. Богдана Хмельницкого, 22А, Молодечно
122 013 Br
2 871 Br/м2
2 комн.
42.5 м2
1 /5  этаж
ул. Богдана Хмельницкого, 3, Молодечно
67 122 Br
1 814 Br/м2
1 комн.
37 м2
1 /1  этаж
ул. Виленская, 16, Молодечно
95 164 Br
3 130 Br/м2
1 комн.
30.4 м2
1 /5  этаж
ул. Богдана Хмельницкого, 6Г, Молодечно
105 904 Br
3 017 Br/м2
1 комн.
35.1 м2
5 /9  этаж
ул. Франтишка Скорины, 16, Молодечно
102 920 Br
4 678 Br/м2
1 комн.
22 м2
3 /5  этаж
ул. Франтишка Скорины, 2, Молодечно
76 072 Br
3 555 Br/м2
1 комн.
21.4 м2
5 /5  этаж
ул. Франтишка Скорины, 2, Молодечно
145 878 Br
1 397 Br/м2
5+ комн.
104.4 м2
1 /1  этаж
пер. Советский, д. Носилово
111 870 Br
2 960 Br/м2
1 комн.
37.8 м2
4 /5  этаж
ул. Мира, 22, Молодечно