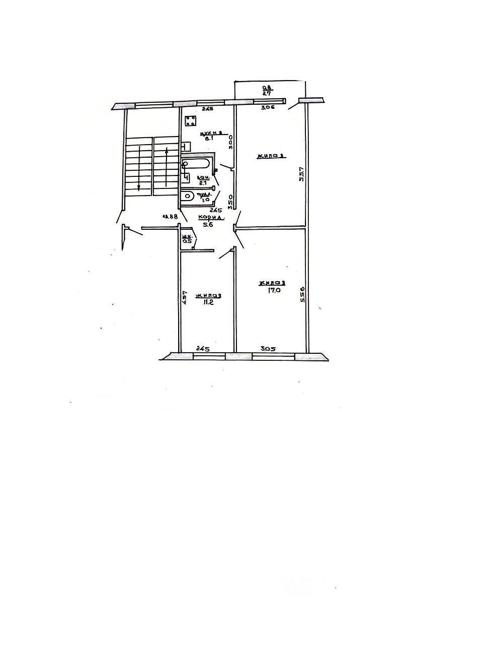
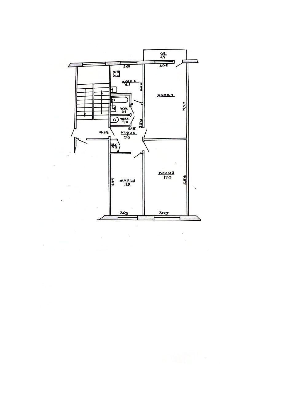
Продается 3-комнатная квартира в Лиде на улице Южный Городок площадью 60.5 м²

ул. Южный Городок, Лида
60.5 м2
Общая площадь
45.2 м2
Жилая
6.1 м2
Кухня
3
Комнат
5 из 5
Этаж
1971
Год постройки
Описание

Продается 3к квартира по ул.Южный городок. Квартира расположена на пятом этаже пятиэтажного дома. Общая площадь жилых помещений 60,5 м2. Жилая площадь 45,2 м2. Площадь кухни 6,1 м2. Напольное покрытие в комнатах-ламинат, кухня и коридор - линолеум, санузел- плитка. Установлены окна ПВХ, застеклен балкон. Имеется подвал, что очень удобно для хранения сезонных вещей и не только. Тихое, спокойное месторасположение позволяет отдалиться от городской суеты. Остановка ощественного транспорта, школа, сад, магазины все это находится в шаговой доступности от дома. Квартира продается полностью с мебелью.

Приобретение квартиры, дома или коммерческой недвижимости – это важный шаг, и мы знаем, насколько важно, чтобы сделка была безопасной, а процесс – понятным и удобным.

ООО “Эстейт Компани” – ваш надежный партнер в мире недвижимости. Мы предлагаем объекты в Слониме, Новогрудке, Лиде и других городах Беларуси.

- Гарантируем безопасность сделки-Полное юридическое сопровождение- Работаем по лицензии Министерства юстиции РБ №02240/394

Наша цель – не просто продать вам недвижимость, а помочь вам найти идеальный объект без рисков и скрытых нюансов.

Офисы: г. Лида, ул. Чапаева 18; г. Слоним, пер. Дружбы 1; г. Новогрудок, ул. Волчецкого27БСвяжитесь с нами сегодня и получите консультацию эксперта

Характеристики
Комнат
3
Общая площадь
60.5 м2
Жилая
45.2 м2
Кухня
6.1 м2
Этаж
5 из 5
Год постройки
1971
Балкон/лоджия
1
Расположение
ул. Южный Городок, Лида
Инфраструктура
Обновлено19.01.2026, 20:00
ID объявления1929
Номер договора164/2 от 26.08.2024
Всего просмотров232

Похожие объекты рядом

116 883 Br
1 932 Br/м2
3 комн.
60.5 м2
5 /5  этаж
ул. Южный Городок, 15, Лида
85 524 Br
1 827 Br/м2
2 комн.
46.8 м2
5 /5  этаж
ул. Южный Городок, 25, Лида
85 521 Br
1 475 Br/м2
3 комн.
58 м2
5 /5  этаж
ул. Южный Городок, 14, Лида
88 375 Br
1 414 Br/м2
3 комн.
62.5 м2
5 /5  этаж
ул. Южный Городок, 19, Лида
109 756 Br
3 634 Br/м2
1 комн.
30.2 м2
3 /5  этаж
ул. Южный Городок, 19, Лида
108 330 Br
1 731 Br/м2
3 комн.
62.6 м2
4 /5  этаж
ул. Южный Городок, 18, Лида
140 000 Br
2 460 Br/м2
2 комн.
56.9 м2
11 /12  этаж
ул. Лётная, 8, Лида
171 048 Br
2 804 Br/м2
2 комн.
61 м2
3 /5  этаж
Лида
122 584 Br
2 154 Br/м2
2 комн.
56.9 м2
12 /12  этаж
ул. Заречная, 39, Лида
165 346 Br
2 104 Br/м2
3 комн.
78.6 м2
6 /12  этаж
ул. Заречная, 39, Лида
114 032 Br
2 176 Br/м2
2 комн.
52.4 м2
1 /5  этаж
бульвар Князя Гедимина, 6, Лида
99 778 Br
1 163 Br/м2
4 комн.
85.8 м2
2 /2  этаж
ул. Юбилейная, 8, аг. Ёдки, Лидский район