Продается 3-комнатная квартира в Лиде на улице 7 Ноября 8к1, площадью 73 м²

ул. 7 Ноября, 8к1, Лида
73 м2
Общая площадь
43.1 м2
Жилая
8.7 м2
Кухня
3
Комнат
1 из 9
Этаж
1977
Год постройки
Описание

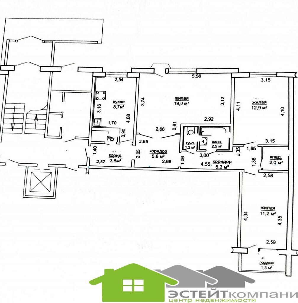
Продаётся 3-к. квартира на ул. 7 Ноября 8 корп. 1.

Общая площадь: 73,0 м. кв.

Жилая площадь: 43,1 м. кв.

Кухня: 8,7 м. кв.

Квартира расположена на 1 этаже 9 этажного дома. Продажа квартиры возможна с дальнейшим выводом в нежилой фонд для использования в коммерческих целях.

Преимущества квартиры:

3 изолированные комнаты6 19,0 м. кв., 12,9 м. кв., 11,2 м. кв. большая и светлая кухня большая застеклённая лоджия и балкон для цветов идеальное место как для проживания, так и для использования в коммерческих целях окна выходят во двор(жилая и лоджия) окна выходят на центральную улицу(кухня и две жилые комнаты) имеются две кладовые и 1 кладовая на площадке. Чистый подъезд. Хорошие соседи. Центр города. В шаговой доступности все основные значимые объекты города: магазины, кафе, парк, поликлиника, банк, почта, торгово-сервисный центр и др. Покупатель не оплачивает за услуги агентства. Поможем продать вашу недвижимость для покупки данной, также помощь и сопровождение в преобретении в кредит, сотрудничаем со всеми банками республики Беларусь.Приобретение квартиры, дома или коммерческой недвижимости – это важный шаг, и мы знаем, насколько важно, чтобы сделка была безопасной, а процесс – понятным и удобным. ООО “Эстейт Компани” – ваш надежный партнер в мире недвижимости. Мы предлагаем объекты в Слониме, Новогрудке, Лиде и других городах Беларуси. - Гарантируем безопасность сделки -Полное юридическое сопровождение - Работаем по лицензии Министерства юстиции РБ №02240/394 Наша цель – не просто продать вам недвижимость, а помочь вам найти идеальный объект без рисков и скрытых нюансов. Офисы: г. Лида, ул. Чапаева 18; г. Слоним, пер. Дружбы 1; г. Новогрудок, ул. Волчецкого27Б. Свяжитесь с нами сегодня и получите консультацию эксперта! Договор на оказание риэлторских услуг № 269/2 от 12.10.2023г.

Характеристики
Комнат
3
Общая площадь
73 м2
Жилая
43.1 м2
Кухня
8.7 м2
Этаж
1 из 9
Год постройки
1977
Санузел
Раздельный
Балкон/лоджия
1
Расположение
ул. 7 Ноября, 8к1, Лида
Инфраструктура
Обновлено27.05.2025, 17:02
ID объявления1928
Номер договора269/2 от 12.10.2023
Всего просмотров298

Похожие объекты рядом

128 286 Br
2 113 Br/м2
3 комн.
60.7 м2
4 /5  этаж
ул. Суворова, 7, Лида
151 092 Br
2 087 Br/м2
3 комн.
72.4 м2
2 /5  этаж
ул. Гагарина, 13к1, Лида
235 000 Br
3 024 Br/м2
3 комн.
77.7 м2
1 /3  этаж
ул. Замковая, Лида
203 832 Br
2 438 Br/м2
4 комн.
83.6 м2
3 /3  этаж
ул. Советская, 36, Лида
156 794 Br
1 960 Br/м2
4 комн.
80 м2
7 /9  этаж
ул. Фрунзе, 10к1, Лида
168 197 Br
2 129 Br/м2
4 комн.
79 м2
4 /5  этаж
ул. Александра Невского, 20, Лида
128 286 Br
2 212 Br/м2
4 комн.
58 м2
3 /5  этаж
ул. Крупской, 165, Лида
133 988 Br
1 866 Br/м2
3 комн.
71.8 м2
6 /9  этаж
ул. Варшавская, 40, Лида
151 092 Br
2 099 Br/м2
3 комн.
72 м2
5 /9  этаж
ул. Варшавская, 44, Лида
146 246 Br
1 856 Br/м2
4 комн.
78.8 м2
1 /9  этаж
ул. Машерова, 7к2, Лида
164 776 Br
2 474 Br/м2
3 комн.
66.6 м2
5 /5  этаж
ул. Рыбиновского, 28, Лида
124 010 Br
1 978 Br/м2
3 комн.
62.7 м2
1 /5  этаж
ул. Машерова, 13, Лида