Продается 3-комнатная квартира в Мяделе на улице Дружная 2, площадью 178.2 м²

ул. Дружная, 2, Мядель
178.2 м2
Общая площадь
64.6 м2
Жилая
18.1 м2
Кухня
3
Комнат
2.7 м
Высота потолков
1 из 2
Этаж
2010
Год постройки
Описание

Прекрасное место для жизни, дом расположен в г. Мядель

Большое количество лесов и озер в ближайшей доступности, это и оз. Нарочь

оз. Мястро, оз. Рудакова, оз. Баторина , где в свободное время можно отдохнуть от городской суеты и подышать свежим воздухом. А также порыбачить, съездить за грибами, ягодами.

Дом расположен на угловом участке в 12,7 соток, огороженном по периметру добротным забором из металлопрофиля. Под домом обустроен просторный гараж с подвалом. Также на участке размещены навес и хоз. постройка размером 6x8м, которую при желании можно переоборудовать под баню.

Дом представляет из себя деревянный сруб с пристройкой из блоков, утепленный мин. ватой и обшитый сайдингом. Кровля - металлочерепица. Второй этаж выполнен в виде мансарды, которую можно оборудовать под жилой этаж.

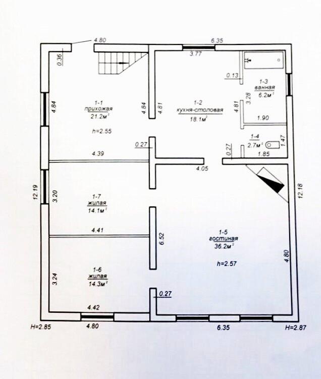
Внутри дома пространство разделено на прихожую, вместительную гостиную с камином, проходную кухню, 2 спальни и раздельный сан. узел.

Выполнена хорошая отделка, на полу ламинат, плитка. Потолки- натяжные, в гостиной выполнен из дерева. Продаётся со всей мебелью (кухня встроенная, мебель в спальнях и гостиной) и техникой (встроенные духовой шкаф, варочная панель, вытяжка, посудомойка).

Отопление и подогрев воды обеспечивается за счёт двухконтурного газового котла, водоснабжение центральное, канализация местная.

Школа, детский сад расположены в пару остановок от дома, ходит городской автобус.

Отличный вариант для жизни в прекрасном месте.

Частное унитарное предприятие «Дианэст», УНП 190124316, лицензия №02240/54 от 06.06.2005. Договор № 53/4 от 20.02.2025

Характеристики
Комнат
3
Общая площадь
178.2 м2
Жилая
64.6 м2
Кухня
18.1 м2
Этаж
1 из 2
Высота потолков
2.7 м
Год постройки
2010
Санузел
Раздельный
Балкон/лоджия
Нет
Расположение
ул. Дружная, 2, Мядель
Инфраструктура
Обновлено27.10.2025, 16:30
Номер договора53/4 от 20.02.2025
Всего просмотров423

Похожие объекты рядом

111 496 Br
2 299 Br/м2
2 комн.
48.5 м2
2 /5  этаж
ул. Юбилейная, 2, Мядель
190 717 Br
3 612 Br/м2
2 комн.
52.8 м2
1 /4  этаж
ул. Октябрьская, 5, к.п. Нарочь, Мядельский район
175 753 Br
2 729 Br/м2
3 комн.
64.4 м2
1 /4  этаж
ул. Октябрьская, 16, к.п. Нарочь, Мядельский район
218 590 Br
3 520 Br/м2
2 комн.
62.1 м2
5 /5  этаж
ул. Октябрьская, 8, к.п. Нарочь, Мядельский район
137 903 Br
2 627 Br/м2
2 комн.
52.5 м2
3 /4  этаж
ул. Октябрьская, 19, к.п. Нарочь, Мядельский район
234 699 Br
1 255 Br/м2
5+ комн.
187 м2
1 /2  этаж
ул. Молодёжная, 45, аг. Нарочь, Мядельский район
132 035 Br
2 041 Br/м2
4 комн.
64.7 м2
1 /5  этаж
ул. Гагарина, 15, Вилейка
131 741 Br
1 457 Br/м2
3 комн.
90.4 м2
1 /2  этаж
ул. Социалистическая, Вилейка
99 759 Br
1 589 Br/м2
3 комн.
62.8 м2
5 /5  этаж
ул. Юбилейная, 55, Сморгонь
198 052 Br
2 488 Br/м2
4 комн.
79.6 м2
3 /5  этаж
ул. Ленина, 38А, Сморгонь
100 640 Br
1 597 Br/м2
3 комн.
63 м2
4 /5  этаж
ул. Советская, 8, Сморгонь
133 502 Br
2 136 Br/м2
3 комн.
62.5 м2
3 /5  этаж
ул. Тракторная, 24, Сморгонь