Продается земельный участок в Ручице на улице Центральная

ул. Центральная, д. Ручица, Вилейский район
Описание

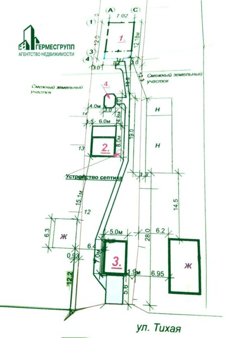
Продается 2 участка в живописном месте Вилейского района. Возможно приобретение 3-го участка. Цена указана за один участок!

За участком протекает небольшая река, можно оборудовать пляж, пирс, зону отдыха.

Свет нужно поводить от столба рядом. Имеется скважина на 3 участка, общая, но ею не пользовались лет 10. Газа в деревне нет.

Также с другой стороны имеется еще один пустой участок, принадлежащий другому владельцу. Все 3 участка огорожены одним забором.

В самой деревне имеется церковь. В деревню приезжает автолавка. Из Вилейки ездит автобус, но расписание нужно уточнять. До г. Вилейка 15 км.

Гарантия безопасности сделки и полное юридическое сопровождение!

Еще не продали или хотите обменять Вашу недвижимость, мы Вам поможем! Подайте онлайн заявку на нашем сайте или обратитесь к нам по нашему телефону, чтобы получить более подробную информацию.

Для получения более подробной информации звоните по телефону указанному в объявлении. В будние дни с 9.00 до 19.00; суббота - с 10.00 до 17.00, воскресенье - выходной. Просмотр объекта осуществляется по предварительной записи!

Частное унитарное предприятие «Дианэст», УНП 190124316, лицензия №02240/54 от 06.06.2005. Договор №23/3 от 17.04.2025

Характеристики
Участок (сотки)
36
Водоснабжение
Скважина
Расположение
ул. Центральная, д. Ручица, Вилейский район
Инфраструктура
ID объявления4055
Обновлено05.03.2026, 15:15
Номер договора23/3 от 17.04.2025
Всего просмотров473

Похожие объекты рядом

29 261 
ул. Дружная, с.т. Магистраль
24 872 
ул. Тихая, д. Кукловщина, Молодечненский район
21 946 
ул. Центральная, д. Груздово, Молодечненский район
20 483 
СТ Теплотехник, Минский район
43 892 
ул. Центральная, д. Лысовичи, Минский район
38 039 
ул. 11-я Линия, с.т. Спецстроевец
43 599 
д. Завишинская Рудня, Логойский район
49 744 
ул. Вишнёвая, СТ Лесное-90, Логойский район
40 965 
ул. Центральная, 11, д. Семково, Логойский район
51 792 
ул. Центральная, д. Головки, Минский район
35 113 
садовые участки Связист-92
58 522 
ул. Советская, 22, г.п. Вороново, Вороновский район