Продается двухуровневый коттедж в городе Могилёве площадью 195 м² и участком 8 соток
В самом центре города Могилева по пер.1-й Кузнецкий продаётся шикарный двухэтажный дом с цокольным этажем.
Дом с гаражом 2014 года постройки, расположен на участке 8 соток.
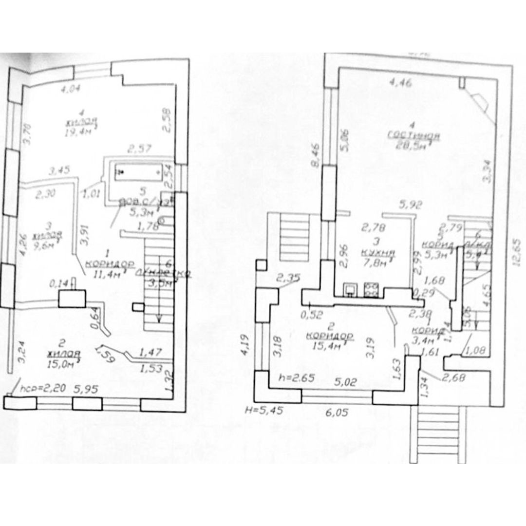
Общая площадь 195 м2, жилая 111 м2, гараж 31м2.
На цокольном этаже расположена: сауна отапливаемая дровами, душ, сан.узел.
На первом этаже расположены: комната для гостей, кухня со столовой, камин и санузел.
На втором этаже расположены 3 комнаты со встроенной мебелью, ванная и сан.узел.
Дом отапливается двухконтурным газовым котлом, водопровод и канализация - центральные, материал крыши- цементно-песчаная черепица.
На участке расположена беседка, зона барбекю.
Дом полностью продается с мебелью и техникой.
Более подробную информацию можно узнать по номеру телефона.Показ по предварительной договорённости в удобное для вас время.
Договор 136/16 от 15.08.2024
ОДО «Юриэлт», УНП 101214439,Лицензия Министерства юстиции РБ №02240/8 от 17.02.2005 года (бессрочная) на право осуществления деятельности по оказанию юридических услуг - риэлтерских услуг.
 
                                         
                 
                            
                         
                 
                 
                 
                 
                 
                 
                 
                 
                 
                 
                 
                 
                 
                 
                 
                 
                 
                 
                 
     
                                             
                                             
                                             
                                             
                                             
                                             
                                             
                                             
                                             
                                             
                                             
                                             
                                             
                                             
                                             
                                             
                                             
                                             
                                             
                                             
                                             
                                             
                                             
                                             
                                             
                                             
                                             
                                             
                                             
                                             
                                             
                                             
                                             
                                             
                                             
                                             
                                             
                                             
                                             
                                             
                                             
                                             
                                             
                                             
                                             
                                             
                                             
                                             
                                             
                                             
                                             
                                             
                                             
                                             
                                             
                                             
                                             
                                             
                                             
                                             
                                             
                                             
                                             
                                             
                                             
                                             
                                             
                                             
                                             
                                             
                                             
                                             
                                             
                                             
                                             
                                             
                                             
                                             
                                             
                                             
                                             
                                             
                                             
                                             
                                             
                                             
                                             
                                             
                                             
                                             
                                             
                                             
                                             
                                             
                                             
                                             
                                             
                                             
                                             
                                             
                                             
                                             
                                             
                                             
                                             
                                            