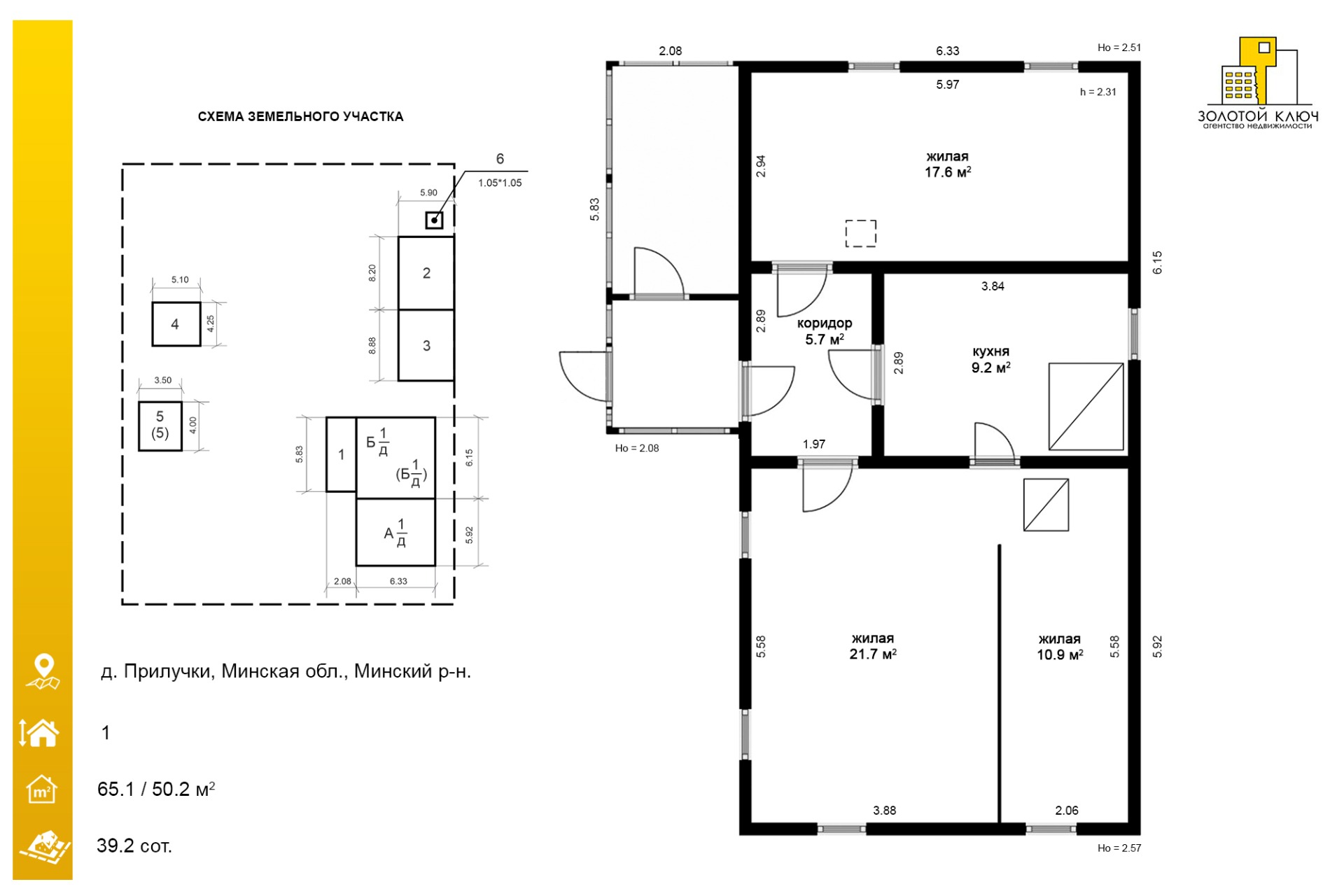
Продается дом в деревне Прилучки площадью 65.1 м² и участком 39.2 сотки

65.1 м2
Общая площадь
50.2 м2
Жилая
2
Комнат
1982
Год постройки
Описание

Это не просто покупка дома. Это приобретение холста для вашего будущего шедевра!

Мы продаем дом с огромной историей и еще более огромным потенциалом в прекрасной деревне рядом с Минском.

Главная выгода:

· Дом стоит, но признан аварийным/под снос. Это ваша возможность получить готовую инфраструктуру (коммуникации, дорога, соседи) и огромный участок в лучшем месте по цене ниже рыночной!

Что вы получаете "здесь и сейчас":

· Лучшая локация: Рядом лес, река и озеро. Идиллические виды и экология.
· Большой участок: Места хватит для постройки просторного коттеджа, бани, гостевого домика и сада.
· Коммуникации: Участок уже обустроен (свет, вода, газ/или возможность подключения — уточните). Вы экономите время и деньги на подводе.
· Добрые соседи: Спокойная и безопасная атмосфера.

Ваше будущее на этом месте:
Представьте себе современный коттедж с панорамными окнами, выходящими в лес. Или уютную родовую усадьбу, построенную по вашему вкусу. Старый дом — это ваш «строительный легитим» и отправная точка для воплощения любой мечты.

Идеально для:

· Инвесторов, желающих построить дом для последующей продажи.
· Семей, которые хотят построить родовое гнездо «с нуля», но в уже обжитом и красивом месте.
· Практичных людей, видящих выгоду в покупке перспективного участка с подъездом и коммуникациями.

Не переплачивайте за «чужой» ремонт! Создайте именно свой дом в лучшем месте!
Цена за участок с подрядом — звоните, обсудим!

Характеристики
Комнат
2
Общая площадь
65.1 м2
Жилая
50.2 м2
Участок (сотки)
39.2
Этажей
1
Год постройки
1982
Готовность
100%
Материал стен
Деревянный
Водоснабжение
Центральное
Отопление
Печное
Газ
Рядом
Инфраструктура
Планировка объекта
Посмотреть
Обновлено25.01.2026, 16:39
ID объявления15124
Номер договора113/1 от 24.10.2025
Всего просмотров228

Похожие объекты рядом

120 091 Br
1 570 Br/м2
76.5 м2
2 этажа
ул. Садовая, д. Белица, Минский район
122 664 Br
817 Br/м2
4 комн.
150.1 м2
2 этажа
СТ Сузорье, Дзержинский район
142 679 Br
2 175 Br/м2
65.6 м2
1 этаж
ул. Центральная, д. Юнцевщина, Дзержинский район
223 025 Br
847 Br/м2
3 комн.
263.3 м2
2 этажа
ул. Центральная, д. Плебанцы, Минский район
168 699 Br
5 586 Br/м2
30.2 м2
1 этаж
ул. Либаво-Роменская, 9, Минск
Ковальская Слобода ~968 метров
228 458 Br
5 784 Br/м2
1 комн.
39.5 м2
1 этаж
ул. Либаво-Роменская, 5, Минск
Ковальская Слобода ~947 метров
125 809 Br
2 165 Br/м2
58.1 м2
1 этаж
ул. Пролетарская, аг. Заболотье, Дзержинский район
185 855 Br
845 Br/м2
4 комн.
220 м2
2 этажа
с.т. Птичь
228 458 Br
1 120 Br/м2
204 м2
3 этажа
ул. Садовая, д. Селище, Минский район
142 965 Br
1 824 Br/м2
3 комн.
78.4 м2
1 этаж
д. Ляховщина, Минский район
189 572 Br
1 835 Br/м2
3 комн.
103.3 м2
ул. Бачило, 50В, аг. Михановичи, Минский район
199 865 Br
2 216 Br/м2
90.2 м2
2 этажа
ул. Кленовая, 1, д. Сороковщина, Узденский район