Продается трехуровневый коттедж в деревне Гарутишки площадью 205 м² и участком 31 сотка

ул. Пашкевича, д. Гарутишки
205 м2
Общая площадь
125.8 м2
Жилая
13.8 м2
Кухня
1994
Год постройки
Описание

Дом мечты на 31 сотке земли - тишина, комфорт, природа!

❤️ Уютный дом с просторным участком для комфортной жизни и отдыха!

- Общая площадь 205 кв.м., из которых 125,8 кв.м. предназначены для удобного размещения семьи. Кухня - 13,8 кв.м., идеально подходит для дружных семейных ужинов и встреч с друзьями. Дом щитовой, облицован кирпичом, а пристройки выполнены из блока, оштукатурены и окрашены. Три уровня: подсобные помещения, два жилых этажа. В 2014 году выполнен капитальный ремонт, и теперь дом полностью готов к заселению - мебель остаётся новым владельцам. Уют и комфорт обеспечивают тёплые полы (плитка) на втором этаже и ламинат на третьем. - В доме центральное водоснабжение со станцией обезжелезивания, обеспечивающей чистую и безопасную воду. Гибкая система отопления - электрокотёл и твердотопливный котёл, а также подведённый газ - позволяет выбрать оптимальный вариант обогрева, сочетая комфорт и экономичность. - Участок 31 сотка - ухоженная территория с множеством возможностей. Ровная, благоустроенная земля, где создано всё для отдыха и ведения личного подсобного хозяйства: баня, беседка, детская площадка, погреб, сарай. На участке плодовые деревья, кустарники и 50 кустов голубики, а также выделено место под огород. Простор и зелень вокруг создают атмосферу уединённости и гармонии с природой. - Дом находится всего в 37 км от Минска, что делает его удобным для ежедневных поездок в столицу. До ближайшей станции метро «Каменная горка» можно добраться на маршрутке, которая ходит ежечасно. Всего 10 км до Дзержинска, где доступна развитая инфраструктура города.

❤️ Узнать больше об объекте - звоните!❤️ Мы с радостью покажем Вам данный объект и сделаем Вас его счастливыми хозяевами!А также хотите:- выгодно продать- срочно выкупить- найти лучшую квартиру- заработать на инвестициях в недвижимость- сделать дизайнерский ремонтТогда «Моя 7Я» решит это, как для своей семьи: с любовью, заботой и желаемым результатом!

Агентство недвижимости ООО «Центр международной недвижимости Моя 7Я»УНП 193750826Лицензия: № 02240/484 выдана МЮ РБ 18.05.2024 г.Страховое свидетельство БР 0004860

Характеристики
Общая площадь
205 м2
Жилая
125.8 м2
Кухня
13.8 м2
Участок (сотки)
31
Этажей
3
Год постройки
1994
Готовность
100%
Материал стен
Блочный
Водоснабжение
Центральное
Отопление
Электрическое
Расположение
ул. Пашкевича, д. Гарутишки
Инфраструктура

Похожие объекты рядом

192 062 Br
3 340 Br/м2
1 комн.
57.5 м2
2 этажа
ул. Центральная, 14, д. Шпильки
169 606 Br
2 007 Br/м2
84.5 м2
2 этажа
ул. Центральная, аг. Боровое
192 062 Br
873 Br/м2
4 комн.
220 м2
2 этажа
12, с.т. Птичь
220 724 Br
2 505 Br/м2
88.1 м2
2 этажа
д. Гаище
324 733 Br
2 069 Br/м2
156.95 м2
1 этаж
ул. Пионерская, 15, д. Городище
360 486 Br
1 868 Br/м2
193 м2
3 этажа
Н-23936
301 390 Br
997 Br/м2
302.3 м2
2 этажа
ул. Садовая, аг. Томковичи
147 445 Br
2 248 Br/м2
65.6 м2
1 этаж
ул. Центральная, д. Юнцевщина
375 260 Br
3 540 Br/м2
106 м2
2 этажа
ул. Солнечная, 32, аг. Хатежино
174 333 Br
2 678 Br/м2
2 комн.
65.1 м2
1 этаж
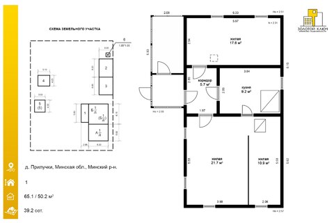
д. Прилучки
183 198 Br
1 507 Br/м2
121.6 м2
2 этажа
ул. Центральная, д. Лихачёвщина
280 411 Br
2 582 Br/м2
108.6 м2
2 этажа
пер. Северный, аг. Раков