Продается двухуровневый коттедж в городе Могилёве площадью 140.2 м² и участком 7.24 сотки

пер. 4-й Карабановский, Могилёв
140.2 м2
Общая площадь
69.2 м2
Жилая
Описание

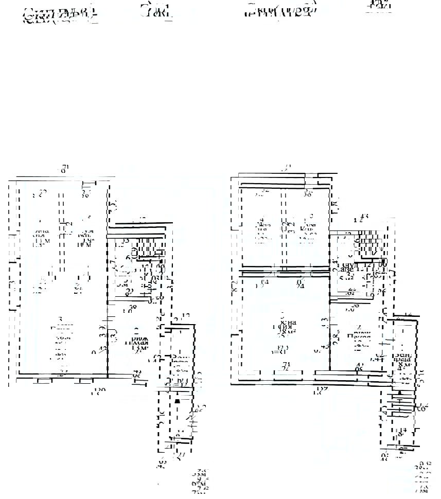
Жилой дом в Могилёве по переулку Карабановскому 4-му

Дом построен из газоселикатных блоков и введен в эксплуатацию в 2024 году. Наружная площадь (площадь застройки) составляет 106 м2/ общая площадь здания 140,2 м2/ общая площадь жилых помещений 69,2 м2/ жилая площадь 39,8 м2, есть подвал и мансарда. Крыша из оцинкованного листа.

Участок 0.0724 га, на участке есть еще сарай, все коммуникации: городская канализация, центральный водопровод, электричество, газ введен в дом, но обрезан, стоит двухконтурный газовый котел - не подключен, на 2-й этаж выведена канализация и вода.

Стоимость дома указана с учетом торга реальному покупателю. Просмотр по предварительной договоренности.

Договор N 60/16 от 26.04.2025 г.

ОДО «Юриэлт», УНП 101214439,

Лицензия Министерства юстиции РБ

N°02240/8 от 17.02.2005 года (бессрочная) на право осуществления деятельности по оказанию юридических услуг - риэлтерских услуг.

Характеристики
Общая площадь
140.2 м2
Жилая
69.2 м2
Участок (сотки)
7.24
Этажей
2
Материал стен
Блочный
Водоснабжение
Центральное
Расположение
пер. 4-й Карабановский, Могилёв
Инфраструктура
Обновлено29.10.2025, 11:00
Номер договора№60/16 от 26.04.2025
Всего просмотров10

Похожие объекты рядом

124 102 Br
1 983 Br/м2
3 комн.
62.61 м2
1 этаж
ул. Гвардейская, 53, Могилёв
209 791 Br
1 311 Br/м2
160 м2
2 этажа
ул. Софиевская, 9, Могилёв
103 418 Br
2 024 Br/м2
2 комн.
51.1 м2
1 этаж
ул. Северная, 23, д. Тишовка
236 384 Br
1 778 Br/м2
5+ комн.
133 м2
2 этажа
ул. Салтановская, 5, Могилёв
112 282 Br
975 Br/м2
3 комн.
115.2 м2
2 этажа
СТ Днепр 3
124 102 Br
1 256 Br/м2
3 комн.
98.8 м2
1 этаж
ул. Ломоносова, Крупки
162 514 Br
1 461 Br/м2
4 комн.
111.2 м2
2 этажа
ул. Садовая, д. Девино
100 463 Br
1 741 Br/м2
57.7 м2
1 этаж
д. Запутки
112 282 Br
1 062 Br/м2
4 комн.
105.7 м2
1 этаж
ул. Алексея Леонова, Рогачёв
132 966 Br
1 583 Br/м2
3 комн.
84 м2
2 этажа
пер. Веры Хоружей, Бобруйск
197 972 Br
1 283 Br/м2
5+ комн.
154.3 м2
ул. Ковалёва, Жлобин
153 650 Br
2 609 Br/м2
4 комн.
58.9 м2
2 этажа
ул. Космонавтов, 17, Жлобин