Продается дом в агрогородке Лука площадью 76.7 м² и участком 25 соток

76.7 м2
Общая площадь
23.5 м2
Жилая
24 м2
Кухня
2025
Год постройки
Описание

Продается жилой дом в аг. Лука со всеми удобствами и новым ремонтом.

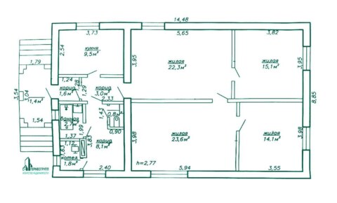
В 2025 году была проведена полная реконструкция дома. Проведена новая электрика, новая система отопления, скважина, автономная канализация. Фундамент- бетон; стены - брус, обшитые сайдингом ; крыша - шифер, окна ПВХ. Общая площадь дома- 76,7 м2.

В доме расположены: входной тамбур, коридор, спальная комнаты с личной гардеробной, жилая комната, кухня - гостиная 24 м2 с выходом на террасу, душевая - с/узел, помещение под сауну, топочная - постирочная. В доме сделана красивая отделка: полы, потолки, стены - все в светлых тонах. Очень хорошая планировка.Остается вся встроенная мебель и бытовая техника. Участок 25 соток (право аренды) , ровный, огорожен металлопрофелем. Есть гараж, сарай.

Дом полностью готов для комфортного проживания.

Покупатель НЕ ПЛАТИТ за услуги агентства, но приобретет юридически проверенную недвижимость!

Работаем со всеми видами кредитов, материнским капиталом, субсидиями.

Характеристики
Общая площадь
76.7 м2
Жилая
23.5 м2
Кухня
24 м2
Участок (сотки)
25
Этажей
1
Год постройки
2025
Готовность
100%
Материал стен
Деревянный
Водоснабжение
Скважина
Отопление
Газовое
Расположение
Инфраструктура
Обновлено28.01.2026, 11:17
ID объявления14927
Номер договора96/3 от 24.10.2025
Всего просмотров149

Похожие объекты рядом

56 900 Br
1 062 Br/м2
53.6 м2
ул. Октябрьская, аг. Линово, Пружанский район
154 402 Br
1 404 Br/м2
110 м2
1 этаж
ул. Строителей, д. Быстрица, Кобринский район
128 669 Br
1 135 Br/м2
113.4 м2
ул. Бирюзовая, д. Быстрица, Кобринский район
75 771 Br
666 Br/м2
5+ комн.
113.7 м2
2 этажа
Пружаны
120 091 Br
879 Br/м2
136.6 м2
ул. Добролюбова, Кобрин
142 965 Br
1 223 Br/м2
116.9 м2
2 этажа
ул. Добролюбова, Кобрин
71 483 Br
1 430 Br/м2
50 м2
ул. Ленина, Кобрин
114 372 Br
1 400 Br/м2
81.7 м2
ул. Полесская, Кобрин
114 372 Br
1 597 Br/м2
71.6 м2
1 этаж
ул. Горького, Кобрин
105 794 Br
1 596 Br/м2
66.3 м2
1 этаж
ул. Комсомольская, Кобрин
71 483 Br
697 Br/м2
102.6 м2
2 этажа
ул. Молодёжная, д. Дубины, Кобринский район
90 068 Br
1 249 Br/м2
72.1 м2
ул. Лесная, Кобрин