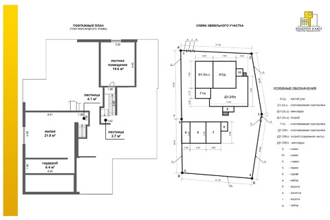
Продается двухуровневый коттедж в городе Минске площадью 223.4 м² и участком 6.27 соток

ул. Фучика, Минск
223.4 м2
Общая площадь
135.6 м2
Жилая
12.7 м2
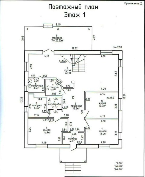
Кухня
1995
Год постройки
Описание

Уникальный дом с просторной территорией

❤️Этот дом – отличное решение для тех, кто ценит просторы, уединённость и возможности для реализации своих идей.

-Просторный двухэтажный кирпичный дом 1995 года постройки с оригинальным дизайном – фасад с элементами замковой архитектуры делает его особенным и выделяет среди других построек.

-Общая площадь – 223,4 м2, жилая – 135,6 м2 – достаточно места для комфортного проживания. Крыша из шифера – проверенное временем покрытие, которое прослужит долгие годы.

-В дом проведены все необходимые коммуникации.

-Два уровня, 5 жилых комнат – идеальная планировка, которая позволяет создать уютное пространство для каждого члена семьи.

-Кухня – просторная и функциональная, оборудована гарнитуром с удобной системой хранения, варочной панелью и вытяжкой. Большое окно обеспечивает хорошее естественное освещение.

-Гостиная – просторная зона, где можно создать уютное место для отдыха или приёма гостей. Высокие потолки и декоративная отделка добавляют помещению индивидуальности.

-Санузел – выполнен в классическом стиле с керамической плиткой, оборудован ванной и удобной системой хранения. Пространство позволяет разместить стиральную машину и другие необходимые элементы комфорта.

-Дом предлагает множество зон для хранения, организации кабинета или детской комнаты.

-Огороженный участок 6,27 сотки – здесь можно организовать зону отдыха, сад, детскую площадку или парковку.

-У дому ведут удобные подъездные пути.

- Район хорошо обеспечен общественным транспортом, включая автобусные и троллейбусные маршруты, что позволяет легко добраться до различных частей города.

- В непосредственной близости находятся школы и детские сады, поликлиники, аптеки, различные магазины, супермаркеты, кафе и рестораны.

- Поблизости находятся парковые зоны и скверы, предоставляющие отличные возможности для прогулок и активного отдыха на свежем воздухе.

❤️ Этот дом – отличное решение для тех, кто ценит просторы, уединённость и возможности для реализации своих идей. Удачное расположение, большая площадь, функциональная планировка и удобства, которые обеспечат комфортное проживание.

❤️ Мы с радостью покажем Вам данный объект и сделаем Вас его счастливыми хозяевами!А также хотите:- выгодно продать- срочно выкупить- найти лучшую квартиру- заработать на инвестициях в недвижимость- сделать дизайнерский ремонтТогда «Моя 7Я» решит это, как для своей семьи: с любовью, заботой и желаемым результатом!

Агентство недвижимости ООО «Центр международной недвижимости Моя 7Я»УНП 193750826Лицензия: № 02240/484 выдана МЮ РБ 18.05.2024 г.Страховое свидетельство БР 0004860

Характеристики
Общая площадь
223.4 м2
Жилая
135.6 м2
Кухня
12.7 м2
Участок (сотки)
6.27
Этажей
2
Год постройки
1995
Готовность
100%
Материал стен
Кирпичный
Водоснабжение
Центральное
Отопление
Центральное
Расположение
ул. Фучика, Минск
Инфраструктура

Похожие объекты рядом

653 321 Br
2 102 Br/м2
310.8 м2
3 этажа
ул. Иркутская, Минск
447 480 Br
3 151 Br/м2
5+ комн.
142 м2
2 этажа
ул. Охотская, Минск
Могилёвская ~1085 метров
739 834 Br
1 651 Br/м2
448.2 м2
1 этаж
ул. Южная, Минск
298 320 Br
4 087 Br/м2
3 комн.
73 м2
2 этажа
ул. Васнецова, 105, Минск
745 502 Br
3 897 Br/м2
5+ комн.
191.3 м2
2 этажа
ул. Кутузова, 13, Минск
Московская ~719 метров
745 797 Br
4 387 Br/м2
170 м2
1 этаж
пер. Замковый, 11, аг. Колодищи
417 648 Br
2 994 Br/м2
139.5 м2
2 этажа
пер. 2-й Крыловича, 5, Минск
417 350 Br
3 693 Br/м2
113 м2
ул. Верхняя, 84, Минск
417 350 Br
3 693 Br/м2
113 м2
ул. Собинова, Минск
533 993 Br
1 318 Br/м2
405.1 м2
3 этажа
ул. Подгорная, д. Копище
443 900 Br
2 388 Br/м2
185.9 м2
3 этажа
ул. Могилёвская, д. Ельница
474 329 Br
10 425 Br/м2
45.5 м2
1 этаж
д. Ельница