Продается двухуровневый коттедж в городе Ошмянах площадью 147.9 м² и участком 11.5 соток

ул. Максима Богдановича, Ошмяны
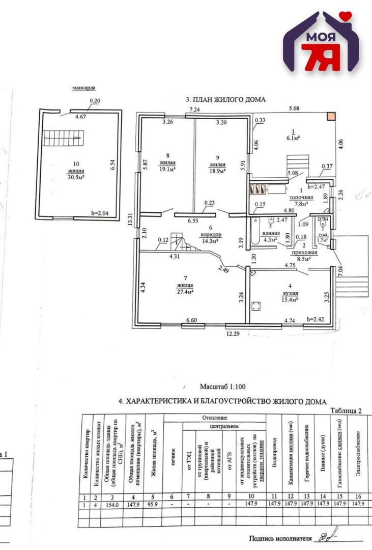
147.9 м2
Общая площадь
95.9 м2
Жилая
15.4 м2
Кухня
2010
Год постройки
Описание

Дом с баней, гаражом и всеми коммуникациями

❤️Уютный и просторный дом, расположенный всего в 120 км от Минска и в 60 км от Вильнюса.

-Дом из бревна с обшивкой под брус выглядит стильно и надёжно, а застеклённая терраса станет любимым местом для вечерних посиделок и семейных завтраков на свежем воздухе. Материал крыши - ондулин.

-Общая площадь составляет 147,9 м2, из которых 95,9 м2 - жилая.

-Есть все необходимые коммуникации: водоснабжение и канализация центральные, установлен газовый котёл, что делает проживание здесь таким же комфортным, как и в городской квартире.

-Внутри вас ждут четыре уютные комнаты и просторная кухня площадью 15,4 м2, оборудованная функциональным кухонным гарнитуром. Есть удобная обеденная зона с диваном и столом, создающая атмосферу настоящей семейной кухни, где приятно собираться всей семьей или принимать гостей.

-В доме сделан аккуратный и практичный ремонт с упором на комфорт и долговечность.

-Санузел полностью облицован современной плиткой в спокойных тонах с декоративными вставками, установлена ванна, умывальник с тумбой и удобным зеркальным шкафчиком, что создаёт удобное пространство для хранения. Туалет выполнен в том же стиле: плитка на полу и стенах, сантехника в отличном состоянии.

-Участок площадью 11,5 соток ровный, огорожен и благоустроен: высажены сортовые туи, цветы и плодовые деревья, создающие атмосферу уюта и уединения. Также есть уличный туалет.

-На территории есть всё необходимое для полноценной загородной жизни. Летняя кухня с настоящей русской печкой подарит особую атмосферу - здесь можно готовить блюда с особым вкусом и наслаждаться традиционным уютом.

-Просторный гараж, подвал и хозяйственные постройки позволяют хранить инвентарь и технику.

-Особая гордость участка - баня с террасой, где можно расслабиться после трудового дня, укрепить здоровье и приятно провести время с семьёй и друзьями.

-Дом удобно расположен: к нему ведут хорошие подъездные пути, а в шаговой доступности находятся магазины, детский сад, школа и районная больница.

❤️Здесь вы сможете наслаждаться загородным уютом, не жертвуя привычным комфортом и доступом к инфраструктуре.❤️ Мы с радостью покажем Вам данный объект и сделаем Вас его счастливыми хозяевами!А также хотите:- выгодно продать- срочно выкупить- найти лучшую квартиру- заработать на инвестициях в недвижимость- сделать дизайнерский ремонтТогда «Моя 7Я» решит это, как для своей семьи: с любовью, заботой и желаемым результатом!

Агентство недвижимости ООО «Центр международной недвижимости Моя 7Я»

УНП 193750826

Лицензия: № 02240/484 выдана МЮ РБ 18.05.2024 г.

Страховое свидетельство БР 0004913

Характеристики
Общая площадь
147.9 м2
Жилая
95.9 м2
Кухня
15.4 м2
Участок (сотки)
11.5
Этажей
2
Год постройки
2010
Готовность
100%
Материал стен
Деревянный
Водоснабжение
Центральное
Отопление
Газовое
Расположение
ул. Максима Богдановича, Ошмяны
Инфраструктура

Похожие объекты рядом

307 042 Br
2 203 Br/м2
139.4 м2
2 этажа
ул. Стреленко, Ошмяны
307 335 Br
1 706 Br/м2
180.1 м2
2 этажа
ул. Советская, Сморгонь
143 130 Br
916 Br/м2
156.2 м2
2 этажа
пер. Новый, д. Шутовичи
278 065 Br
1 442 Br/м2
192.8 м2
3 этажа
Солнечный проезд, 8, Сморгонь
131 715 Br
1 019 Br/м2
129.2 м2
1 этаж
ул. Садовая, аг. Геранёны
114 153 Br
977 Br/м2
116.9 м2
1 этаж
ул. Гагарина, г.п. Юратишки
155 131 Br
1 522 Br/м2
101.9 м2
пер. Школьный, аг. Засковичи
117 080 Br
1 047 Br/м2
111.83 м2
1 этаж
ул. Набережная, 5, д. Ольховка
152 204 Br
1 314 Br/м2
115.8 м2
2 этажа
ул. Дружная, аг. Лылойти
321 970 Br
1 625 Br/м2
198.1 м2
2 этажа
ул. Юбилейная, г.п. Вороново
116 495 Br
1 294 Br/м2
90 м2
1 этаж
ул. Литовчика, 41, г.п. Вороново
109 763 Br
1 225 Br/м2
89.6 м2
1 этаж
ул. Зелёная, аг. Яхимовщина