Продается дом в агрогородке Ратомка площадью 53.3 м² и участком 4.5 соток

ул. Зелёная, 2В, аг. Ратомка
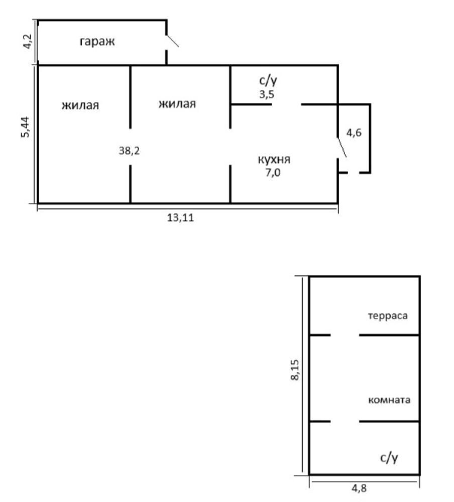
53.3 м2
Общая площадь
38.1 м2
Жилая
7 м2
Кухня
1990
Год постройки
Описание

Уютный домик: тёплая спальня, гостиная. Комнаты проходные. Дом блочный, утеплен, оштукатурен. Окна стеклопакеты. Потолки натяжные.На полу в комнате ковровое покрытие, на кухне и в санузле- плитка. Территория огорожена, автоматически открывающийеся ворота. Ухоженный участок. Отдельностоящая закрытая беседка - в беседке комната отдыха, санузел, терраса. Удобное месторасположение - в шаговой доступности магазины, станция Ратомка, ozon, WB, школа, почта

Характеристики
Общая площадь
53.3 м2
Жилая
38.1 м2
Кухня
7 м2
Участок (сотки)
4.5
Этажей
1
Год постройки
1990
Готовность
100%
Материал стен
Другой
Водоснабжение
Скважина
Отопление
Газовое
Расположение
ул. Зелёная, 2В, аг. Ратомка
Инфраструктура

Похожие объекты рядом

374 815 Br
3 536 Br/м2
106 м2
2 этажа
ул. Солнечная, 32, аг. Хатежино
309 887 Br
2 896 Br/м2
107 м2
1 этаж
ул. 2-я Светлая, 20, аг. Сёмково
220 462 Br
2 502 Br/м2
88.1 м2
2 этажа
д. Гаище
191 835 Br
872 Br/м2
4 комн.
220 м2
2 этажа
12, с.т. Птичь
324 348 Br
2 067 Br/м2
156.95 м2
1 этаж
ул. Пионерская, 15, д. Городище
262 666 Br
8 756 Br/м2
2 комн.
30 м2
1 этаж
4, д. Малиновка
Малиновка ~1025 метров
339 400 Br
2 011 Br/м2
168.8 м2
1 этаж
пер. Софьи Ковалевской, 23, Минск
138 711 Br
1 566 Br/м2
88.6 м2
2 этажа
27, д. Горошки
345 302 Br
1 335 Br/м2
258.7 м2
2 этажа
23, д. Динаровичи
235 809 Br
6 046 Br/м2
1 комн.
39 м2
1 этаж
ул. Полевая, 1А, Минск
Ковальская Слобода ~967 метров
174 127 Br
5 804 Br/м2
30 м2
1 этаж
ул. Либаво-Роменская, 15, Минск
Ковальская Слобода ~1006 метров
206 591 Br
4 099 Br/м2
50.4 м2
1 этаж
ул. Высокая, аг. Сеница