Продается дом в агрогородке Мотоль площадью 69.5 м² и участком 16 соток

ул. Дзержинского, аг. Мотоль, Ивановский район
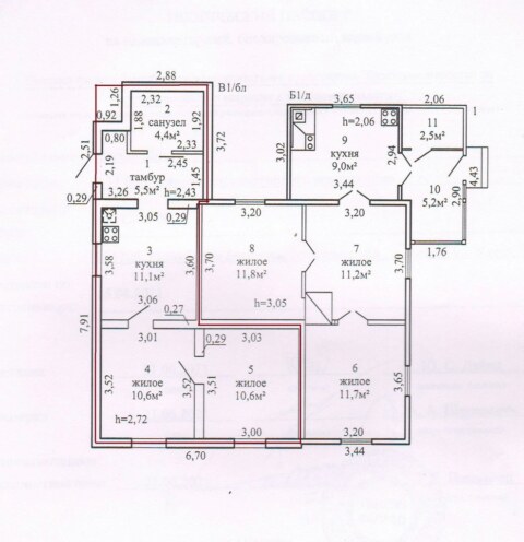
69.5 м2
Общая площадь
28.4 м2
Жилая
10 м2
Кухня
3
Комнат
1950
Год постройки
Описание

Продаётся жилой дом из бруса 1947 года постройки в аг. Мотоль, ул. Дзержинского. Отопление газовое, вода центральная, канализация местная. Произведён капитальный ремонт прихожей и санузла. Заменена проводка, тёплый пол. Установлена новая сантехника - унитаз, биде, ванная. Установлена новая входная металлическая дверь, две межкомнатные двери. Установлен новый кухонный гарнитур. Остальные комнаты жилые, аккуратные, но без свежего ремонта. Участок 0,1600 га, огорожен по периметру деревянным забором. Участок ухожен. Есть большой сарай из бруса, колодец, плодово-ягодные насаждения. Отличное месторасположение, асфальтированный подъезд.

Договор от 30.07.2024г. № 146/8, ОДО «Юриэлт», УНП 101214439, лицензия № 02240/8 от 17.02.2005 на право осуществления деятельности по оказанию юридических услуг (риэлтерские услуги).

Характеристики
Комнат
3
Общая площадь
69.5 м2
Жилая
28.4 м2
Кухня
10 м2
Участок (сотки)
16
Этажей
1
Год постройки
1950
Материал стен
Деревянный
Расположение
ул. Дзержинского, аг. Мотоль, Ивановский район
Инфраструктура
Обновлено22.10.2025, 00:30
Номер договора№146/8 от 30.07.2024
Всего просмотров132

Похожие объекты рядом

48 413 Br
722 Br/м2
3 комн.
67.1 м2
ул. Томилова, 53, г.п. Логишин, Пинский район
73 353 Br
1 245 Br/м2
3 комн.
58.9 м2
1 этаж
ул. Советская, д. Чернеевичи, Пинский район
70 418 Br
902 Br/м2
3 комн.
78.1 м2
1 этаж
ул. Хвойная, Пинск
41 077 Br
893 Br/м2
3 комн.
46 м2
1 этаж
пер. Оховский, Пинск
99 759 Br
1 583 Br/м2
3 комн.
63 м2
1 этаж
ул. Звёздная, Пинск
73 353 Br
1 738 Br/м2
2 комн.
42.2 м2
1 этаж
ул. Узкая, 3, Пинск
82 155 Br
1 519 Br/м2
3 комн.
54.1 м2
1 этаж
ул. Ленинградская, Пинск
49 880 Br
967 Br/м2
3 комн.
51.6 м2
1 этаж
ул. Горького, 61, Пинск
73 353 Br
1 453 Br/м2
3 комн.
50.5 м2
1 этаж
ул. Иркутско-Пинской Дивизии, 14, Пинск
45 479 Br
310 Br/м2
3 комн.
146.5 м2
1 этаж
ул. Луговая, 13, д. Высокое, Пинский район
79 221 Br
1 182 Br/м2
3 комн.
67 м2
1 этаж
ул. Партизанская, д. Высокое, Пинский район
52 814 Br
723 Br/м2
3 комн.
73 м2
1 этаж
ул. Центральная, д. Красово, Пинский район