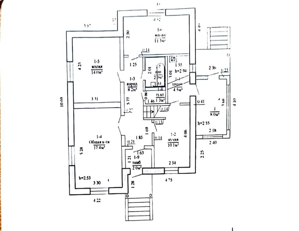
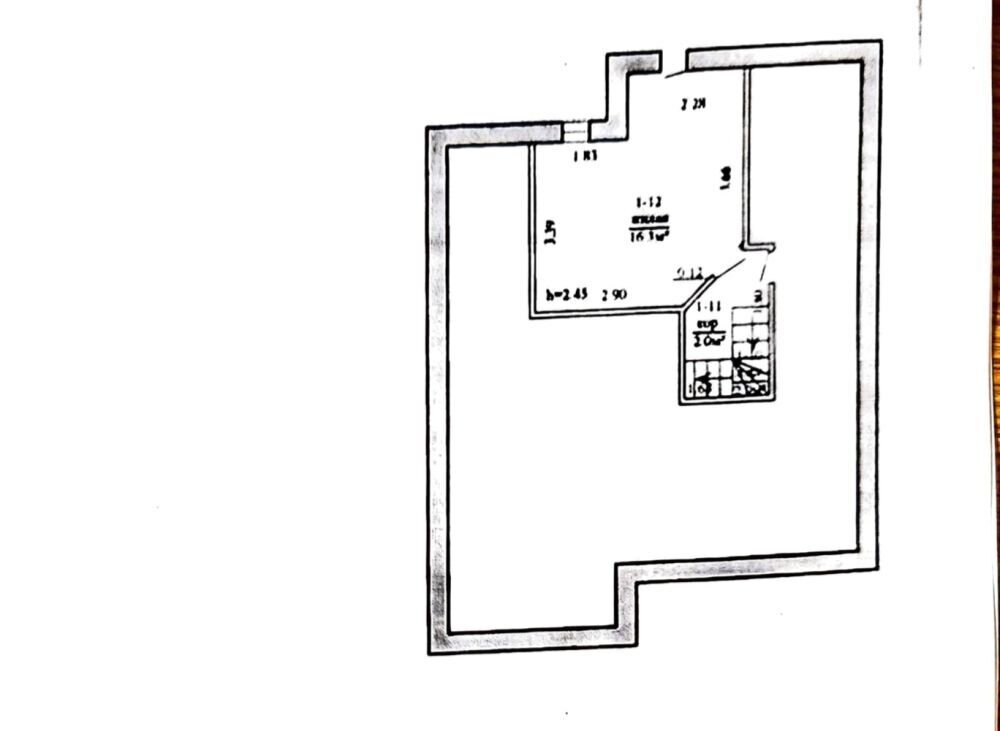
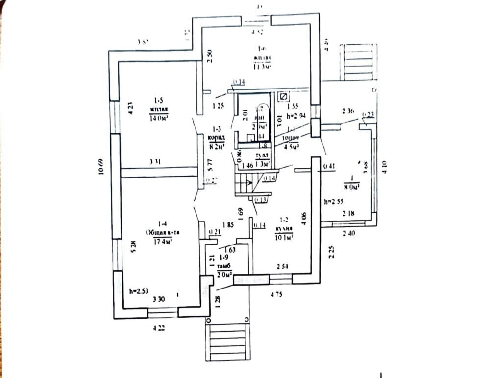
Продается двухуровневый коттедж в городе Сморгони площадью 92 м² и участком 11.93 сотки

проезд Мицкевича, 13, Сморгонь
92 м2
Общая площадь
59 м2
Жилая
10.1 м2
Кухня
2010
Год постройки
Описание

Продаётся доля 24/50 (48%) в одноквартирном жилом доме, расположенном по адресу: г. Сморгонь, пр-д Мицкевича. Дом 2010 года постройки. -Стены - блочные, утеплены и оштукатурены; -Кровля - металло-черепица с утеплением; -Качественные энергосберегающие стеклопакеты; -Современный газовый котёл , водяной тёплый пол в кухне; -Все центральные коммуникации: свет, газ, центральный водопровод, центральная канализация, оптоволокно по улице (телефон-интернет). -Дом общей площадью 92,0 м2, -Жилая площадь 59,0 м2; -Кухня 10,1 м2; -Земельный участок 11,9 соток, газонная трава, плодовые деревья и кустарники, декоративные растения. -Жилая современная коттеджная застройка, респектабельные соседи; -Развитая инфраструктура на доступном расстоянии: супермаркеты, магазины, школы и детский сад, почта, банк, медучреждения и аптеки. Одно из лучших мест в городе Сморгонь для жизни. Дом возводился для себя, приглашаем на просмотр.

Характеристики
Общая площадь
92 м2
Жилая
59 м2
Кухня
10.1 м2
Участок (сотки)
11.93
Этажей
2
Год постройки
2010
Готовность
100%
Материал стен
Другой
Водоснабжение
Центральное
Отопление
Газовое
Расположение
проезд Мицкевича, 13, Сморгонь
Инфраструктура

Похожие объекты рядом

81 847 Br
1 940 Br/м2
42.2 м2
1 этаж
ул. Кутузова, Сморгонь
58 379 Br
1 345 Br/м2
43.4 м2
1 этаж
ул. Гагарина, Сморгонь
58 379 Br
850 Br/м2
68.7 м2
1 этаж
д. Пильцы, Сморгонский район
52 805 Br
668 Br/м2
2 комн.
79 м2
1 этаж
ул. Белорусская, д. Мечаи, Вилейский район
93 582 Br
1 293 Br/м2
72.4 м2
1 этаж
ул. Молодёжная, аг. Жодишки, Сморгонский район
49 871 Br
1 149 Br/м2
43.4 м2
1 этаж
ул. Заречная, 23, аг. Марково, Молодечненский район
49 578 Br
532 Br/м2
93.2 м2
1 этаж
д. Талуи, Молодечненский район
49 871 Br
778 Br/м2
64.1 м2
1 этаж
ул. Октябрьская, 23, аг. Нарочь, Вилейский район
61 606 Br
1 348 Br/м2
45.7 м2
1 этаж
ул. Центральная, д. Малиновщина, Молодечненский район
38 137 Br
490 Br/м2
77.8 м2
1 этаж
ул. Центральная, д. Лоск, Воложинский район
64 539 Br
1 359 Br/м2
47.5 м2
1 этаж
ул. Центральная, д. Мороськи, Молодечненский район
49 871 Br
1 018 Br/м2
49 м2
1 этаж
ул. Центральная, д. Мороськи, Молодечненский район