Продается дом в агрогородке Ленино площадью 86 м² и участком 12 соток

ул. Жодинская, аг. Ленино
86 м2
Общая площадь
14 м2
Кухня
4
Комнат
1988
Год постройки
Описание

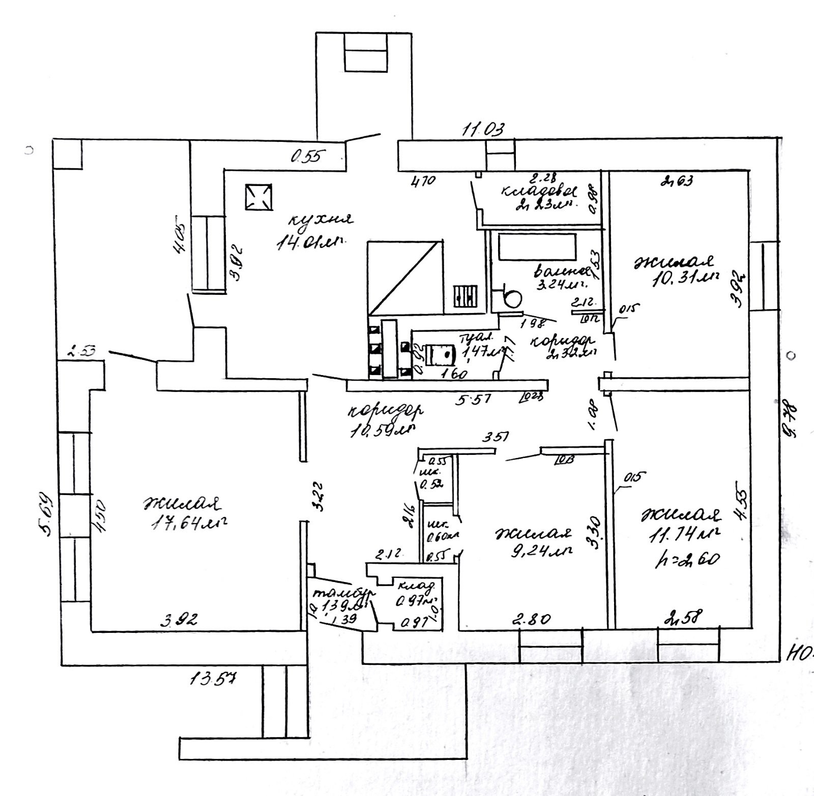
В аг. Ленино (Добрушский район) продаётся добротный кирпичный дом (1988 г.п.).

Общая его площадь - 86 м.кв.

Четыре жилые комнаты. Санузел в доме! Просторная кухня (14 м.кв.). Большая лоджия.

Состояние дома: "приходи и живи"! Все окошки - ПВХ. Натяжные и выровненные потолки.

Ухоженный земельный участок - 12 соток. Есть кирпичные погреб и сарай.

В агрогородке и рядом с ним работают производства (сельскохозяйственное производство "Завидовское", филиал «Гомельский горно-обогатительный комбинат»

ОАО «Гомельстекло»), где можно легко трудоустроиться.

Есть также Ленинский детский ясли-сад и базовая школа, дом культуры, церковь (Никольская), белпочта, сельсовет, магазины.

Отличная ровная дорога от Гомеля до самого агрогородка (65 км).

Характеристики
Комнат
4
Общая площадь
86 м2
Кухня
14 м2
Участок (сотки)
12
Этажей
1
Год постройки
1988
Материал стен
Кирпичный
Водоснабжение
Центральное
Отопление
Газовое
Расположение
ул. Жодинская, аг. Ленино
Инфраструктура
Обновлено22.10.2025, 00:30
Номер договора№91/7 от 14.03.2024
Всего просмотров130

Похожие объекты рядом

17 708 Br
454 Br/м2
1 комн.
39 м2
1 этаж
аг. Перерост
44 270 Br
563 Br/м2
4 комн.
78.7 м2
1 этаж
д. Маковье
17 265 Br
385 Br/м2
44.9 м2
1 этаж
17, с.т. Березина
50 172 Br
809 Br/м2
4 комн.
62 м2
1 этаж
78, с.т. Спутник
22 135 Br
1 223 Br/м2
2 комн.
18.1 м2
1 этаж
72, с.т. Бытрадиотехника
26 562 Br
436 Br/м2
4 комн.
60.9 м2
1 этаж
7, с.т. Сож-2 Пускачи
38 367 Br
680 Br/м2
2 комн.
56.4 м2
2 этажа
40, СТ Речная Волна
39 843 Br
675 Br/м2
2 комн.
59 м2
1 этаж
90, СТ Скиток-4
50 172 Br
982 Br/м2
4 комн.
51.1 м2
2 этажа
СТ Скиток-3
50 172 Br
627 Br/м2
4 комн.
80 м2
2 этажа
с.т. Дорожник ДСТ-2
20 659 Br
589 Br/м2
2 комн.
35.1 м2
1 этаж
55, СТ Зелёный Берег
32 464 Br
347 Br/м2
93.5 м2
д. Костюковка