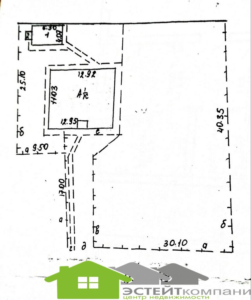
Продается дом в городе Слониме площадью 111.1 м² и участком 15 соток

ул. Загородняя, Слоним
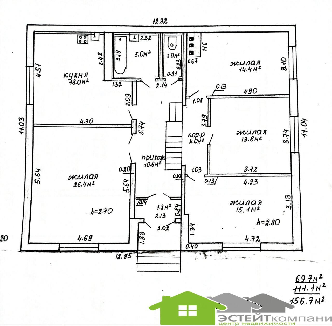
111.1 м2
Общая площадь
69.7 м2
Жилая
18 м2
Кухня
1996
Год постройки
Описание

Продается кирпичный, двухуровневый дом площадью 157 м.кв., по ул. Загородняя. В доме хороший ремонт, полностью готов для проживания. Дом теплый с уютной и комфортной планировкой. На первом уровне: прихожая, большая кухня, зал, раздельный санузел, выход в гараж и кладовую через топочную, а также с дополнительным выходом на участок с обратной стороны дома. На втором уровне 3 спальни, к которым можно поднятся по удобной, оригинальной, деревянной лестнице.В доме уставлены окна ПВХ, добротные межкомнатные двери из массива, стены и потолки ровные. Входная дверь двойная, металлическая. Участк в 15 соток спланирован на несколько зон: с обратной стороны дома построен блочный сарай с навесом под зону отдыха; туями и декаративным забором отделена зона для огорода с теплицей; посажены плодовые деревья.Дом расположен близко от центра города в тихом и зеленом районе. До ближайшей остановки около 5 минут хотьбы, а так же в доступности магазин, школа, жд и автовокзал.В стоимость включена вся мебель.Если продажа без мебели, то окончательная цена обсуждается.Реальному покупателю разумный торг!ООО "Эстейт Компани" - единственное агентство в г. Слоним на основании: лицензии Министерства юстиции Республики Беларусь № 02240/394 от 26.02.2020г. УНП 693141368 Наш адрес: г. Слоним, пер. Дружбы, 1. Договор на оказание риэлтерских услуг №15/3 от 20.02.2023 г.

Характеристики
Общая площадь
111.1 м2
Жилая
69.7 м2
Кухня
18 м2
Участок (сотки)
15
Год постройки
1996
Готовность
100%
Материал стен
Кирпичный
Отопление
Газовое
Расположение
ул. Загородняя, Слоним
Инфраструктура
Обновлено07.08.2025, 00:30
Номер договора15/3 от 20.02.2023
Всего просмотров401

Похожие объекты рядом

139 631 Br
1 051 Br/м2
132.9 м2
2 этажа
ул. Максима Горького, Слоним
186 075 Br
1 053 Br/м2
176.7 м2
3 этажа
ул. Гагарина, Слоним
223 290 Br
906 Br/м2
246.4 м2
2 этажа
ул. Комсомольская, Слоним
175 655 Br
1 774 Br/м2
99 м2
пер. Мелиораторов, Слоним
192 029 Br
1 412 Br/м2
136 м2
2 этажа
пер. Вольный, 42А, Слоним
126 531 Br
1 110 Br/м2
114 м2
пер. Леошени, Слоним
291 766 Br
1 446 Br/м2
201.8 м2
ул. Подлесная, 65А, Слоним
130 699 Br
1 079 Br/м2
121.1 м2
1 этаж
ул. Заречная, 49, Слоним
145 883 Br
1 400 Br/м2
104.2 м2
ул. 1-я Западная, Слоним
108 668 Br
771 Br/м2
141 м2
ул. Замковая, д. Чемеры
119 088 Br
1 563 Br/м2
76.2 м2
ул. Парковая, аг. Жировичи
125 042 Br
1 026 Br/м2
121.9 м2
2 этажа
д. Поречье