Продается дом в городе Минске площадью 80 м² и участком 7 соток

ул. Максима Богдановича, 118, Минск
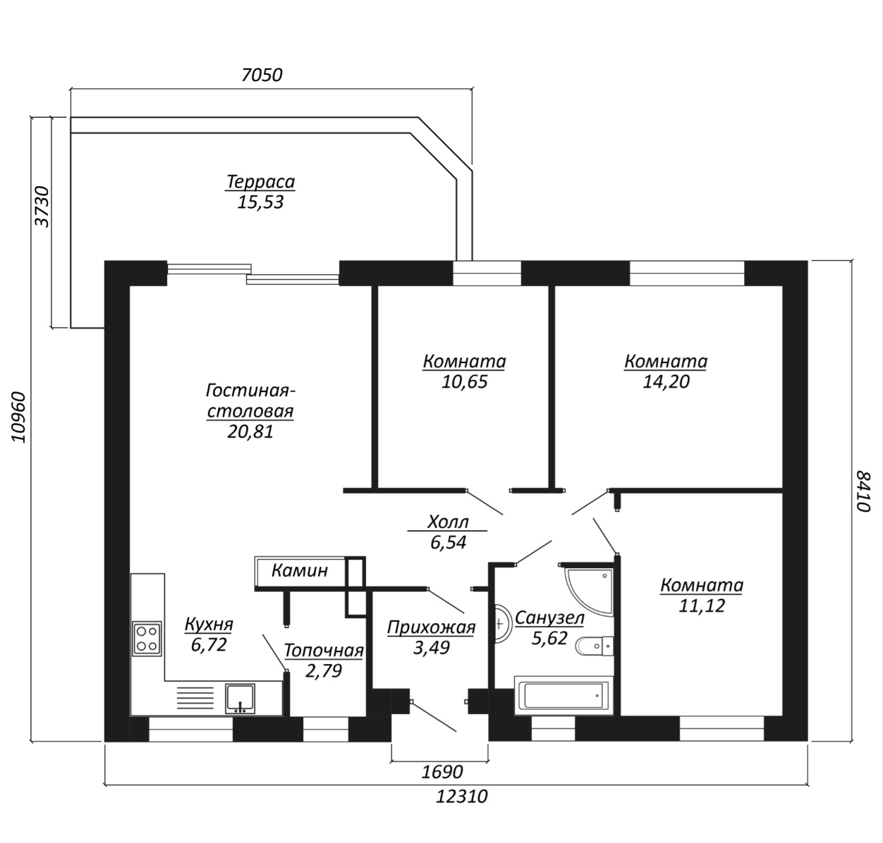
80 м2
Общая площадь
45 м2
Жилая
10 м2
Кухня
3
Комнат
3 м
Высота потолков
2025
Год постройки
Описание

Монолитный дом утепленный экструдированным пенополистиролом по цене каркасника.
Стоимость строительства под ключ с ремонтом и наружной отделкой составляет от 1600 б.р. метр квадратный.
В стоимось входит:
Фундамент:
- свайно-ростверковый с обратной засыпкой, отмостка вокруг дома, крыльцо.
Коробка дома:
- монолитный железобетон утепленный  
   экструдированным пенополистиролом
- внутренние стены отделаны плитами ОСБ и наверх 
   обшиты гипсокартоном с замазкой швов под 
    отделку. Чистовая отделка: обои, плитка, сантехническое оборудование.
Полы:
- чистовая стяжка с проложенными трубами 
   теплого пола, ламинат 32 класс.

Потолок:

- натяжной потолок

Коммуникации:
- канализация и водопровод разведены пол черновой стяжкой пола
- электропроводка, щиток, электрический котел.
Окна, двери:
- окна ПВХ 70 мм
- дверь металлическая
Крыша:
- двускатная покрыта металлочерепицей
- утепление по балкам перекрытия 200 мм
Светильники, система рекуперации.

Строим в Минской области и РБ.
Стоимость включает строительство дома под ключ (без участка). Все коммуникации проложены в доме на этапе строительства. 
Коммуникации к дому проводит Заказчик.

Разработаем планировку под Ваши нужды. Откорректируем размеры дома.

Инстаграмм: rinnova.by

Характеристики
Комнат
3
Общая площадь
80 м2
Жилая
45 м2
Кухня
10 м2
Участок (сотки)
7
Этажей
1
Высота потолков
3 м
Год постройки
2025
Готовность
80%
Материал стен
Монолитный
Санузел
Совмещенный
Расположение
ул. Максима Богдановича, 118, Минск
Инфраструктура
Дом для всех
Дом для всех
ДОМ ДЛЯ ВСЕХ-БЕЛ
УНП: 193754237
Обновлено14.07.2025, 15:04
Всего просмотров1105

Похожие объекты рядом

117 071 Br
3 173 Br/м2
36.9 м2
1 этаж
ул. Зои Космодемьянской, Минск
183 381 Br
2 082 Br/м2
1 комн.
88.1 м2
2 этажа
ул. Ясная, 7А, Минск
173 112 Br
5 732 Br/м2
30.2 м2
1 этаж
ул. Либаво-Роменская, 9, Минск
Ковальская Слобода ~968 метров
146 705 Br
3 436 Br/м2
42.7 м2
1 этаж
ул. Нефтяная, 8, Минск
Ковальская Слобода ~485 метров
112 963 Br
2 172 Br/м2
3 комн.
52 м2
1 этаж
ул. 8 Марта, 11, п. Городище
173 112 Br
2 659 Br/м2
2 комн.
65.1 м2
1 этаж
д. Прилучки, Минский район
146 705 Br
1 871 Br/м2
3 комн.
78.4 м2
1 этаж
д. Ляховщина, Минский район
70 125 Br
1 455 Br/м2
48.2 м2
2 этажа
СТ Искра-плюс, Минский район
161 376 Br
1 129 Br/м2
4 комн.
142.9 м2
2 этажа
ул. 3-я Садовая, c.т. Меридиан-2002
132 035 Br
1 726 Br/м2
76.5 м2
2 этажа
ул. Садовая, д. Белица, Минский район
110 029 Br
4 585 Br/м2
3 комн.
24 м2
1 этаж
с.т. Веснянка
99 759 Br
2 565 Br/м2
38.9 м2
ул. Центральная, 31, аг. Луговая Слобода, Минский район