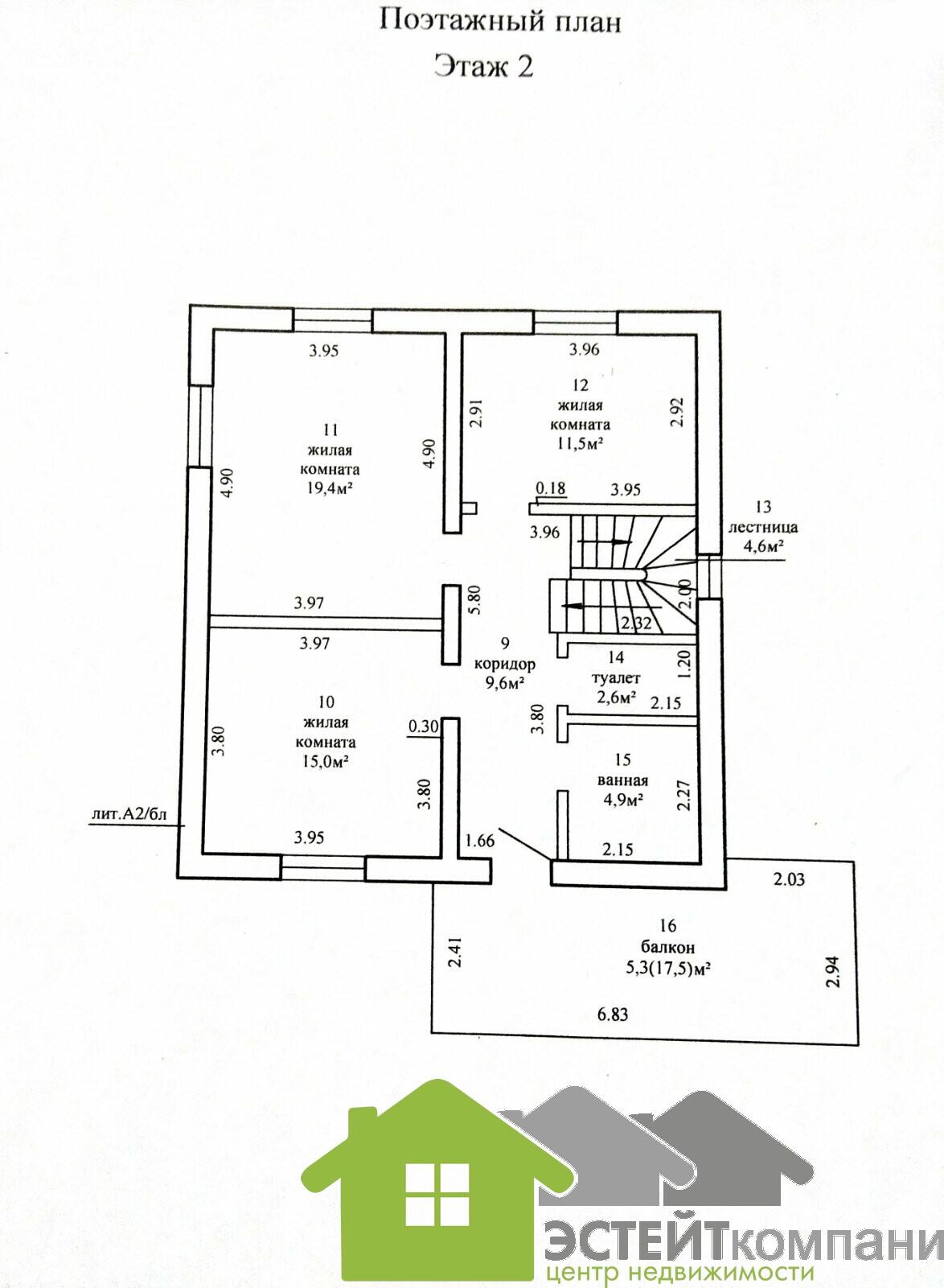
Продается дом в городе Лиде площадью 148.5 м² и участком 10 соток

ул. Боровая, Лида
148.5 м2
Общая площадь
78.2 м2
Жилая
13.2 м2
Кухня
2023
Год постройки
Описание

Продаётся дом в микрорайоне Молодёжный. Готовность 90 %. В доме сделан- тройной пояс армирования, бетон марки С-2535, утепление 5 см пеноплекс, также по периметру фундамента уложен пеноплекс для предотвращения морозного вспучивания грунтов.Для дополнительной прочности сверху фундамент объединён монолитной армированной плитой. Утепление между плитой и тёплым полом 10 см.Газобетон д500, толщина 300ми, утепление 10см (ппт20)Под железобетонными плитами перекрытия устроен армопояс.Под мурлатами так же армопояс.Для шумоизоляции под стяжкой второго этажа пенопласт 5смКрыша Викинг, утепление чердака 25 см с возможностью увеличения толщины утепленияКонструкция крыши сечением 50×200. Тройной стеклопакет.Разведена проводка под розетки и освещение, возможна установка системы "умный дом"Отопление двухконтурное коллекторное, радиаторы и тёплый пол.Канализация местная, планируется проведение центральной канализации. Участок подсыпан. Рядом лессной массив

Приобретение квартиры, дома или коммерческой недвижимости – это важный шаг, и мы знаем, насколько важно, чтобы сделка была безопасной, а процесс – понятным и удобным.

ООО “Эстейт Компани” – ваш надежный партнер в мире недвижимости. Мы предлагаем объекты в Слониме, Новогрудке, Лиде и других городах Беларуси.

- Гарантируем безопасность сделки-Полное юридическое сопровождение- Работаем по лицензии Министерства юстиции РБ №02240/394

Наша цель – не просто продать вам недвижимость, а помочь вам найти идеальный объект без рисков и скрытых нюансов.

Офисы: г. Лида, ул. Чапаева 18; г. Слоним, пер. Дружбы 1; г. Новогрудок, ул. Волчецкого27БСвяжитесь с нами сегодня и получите консультацию эксперта!

Характеристики
Общая площадь
148.5 м2
Жилая
78.2 м2
Кухня
13.2 м2
Участок (сотки)
10
Год постройки
2023
Готовность
80%
Материал стен
Блочный
Водоснабжение
Сезонная
Отопление
Газовое
Расположение
ул. Боровая, Лида
Инфраструктура
Обновлено23.10.2025, 10:30
Номер договора85/2 от 04.06.2024
Всего просмотров172

Похожие объекты рядом

363 828 Br
1 610 Br/м2
226 м2
3 этажа
ул. 2-я Круповская, Лида
378 499 Br
2 455 Br/м2
154.2 м2
2 этажа
ул. Ситникова, Лида
190 423 Br
2 693 Br/м2
70.7 м2
1 этаж
ул. Болдышева, аг. Крупово, Лидский район
199 519 Br
2 285 Br/м2
87.3 м2
1 этаж
ул. 2-я Куйбышева, 3А, Лида
293 410 Br
2 015 Br/м2
145.6 м2
1 этаж
ул. Мясникова, 2, Лида
234 728 Br
2 568 Br/м2
91.4 м2
ул. Говорова, 21, Лида
278 740 Br
5+ комн.
Солигорский район
269 937 Br
2 399 Br/м2
112.5 м2
3 этажа
ул. Новосёлов, д. Островля, Лидский район
269 937 Br
1 542 Br/м2
175 м2
3 этажа
пер. Новосёлов, д. Островля, Лидский район
138 783 Br
470 Br/м2
5+ комн.
295.5 м2
4 этажа
площадь Ленина, Лида
163 429 Br
1 939 Br/м2
84.3 м2
1 этаж
ул. Дзержинского, 7, Лида
190 717 Br
2 605 Br/м2
3 комн.
73.2 м2
1 этаж
пер. 2-й Дзержинского, Лида