Продается дом в агрогородке Жировичи площадью 109.1 м² и участком 24.74 сотки

ул. Молодёжная, 10, аг. Жировичи, Слонимский район
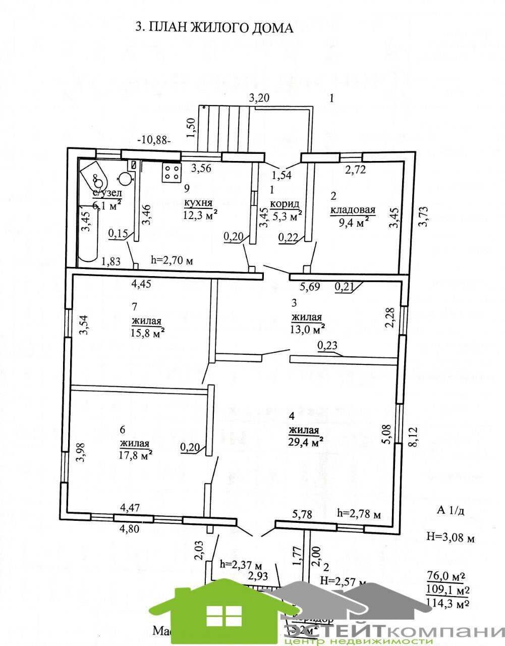
109.1 м2
Общая площадь
76 м2
Жилая
12.3 м2
Кухня
1992
Год постройки
Описание

Продается деревянный дом 1992г. постройки в агрогородке Жировичи по улице Молодежная. Дом с высокими потолками и хорошей планировкой. Общая площадь-109 кв.м. К дому подведен газ, свет, вода, центральная канализация. Установлены окна ПВХ. В доме имеется сухой просторный подвал.

На большом участке 25 соток есть родник, стоит гараж, сарай, хлев с чердаком, курятник. Имеются плодовые деревья с вкусными яблоками, виноград, кусты смородины, малина желтая, сливы, вишня, груши.

В шаговой доступности центр, православный храм, детский сад, больница, продуктовые и хозяйственные магазины, стадион, столовая, колледж, средняя и музыкальная школа, бар, где можно вкусно поесть и поиграть в бильярд. Рядом баня. Несколько раз в день ходят маршрутки до Гродно и до Минска. До Слонима можно доехать на городском транспорте. Реальному покупателю разумный торг.

Поможем продать вашу недвижимость для приобретения данного объекта.Сопровождаем покупку по кредиту.

ООО "Эстейт Компани" - единственное агентство в г. Слоним на основании: лицензии Министерства юстиции Республики Беларусь № 02240/394 от 26.02.2020г. УНП 693141368 Наш адрес: г. Слоним, пер. Дружбы, 1. Договор на оказание риэлтерских услуг №37/3 от 24.05.2022 г.

Характеристики
Общая площадь
109.1 м2
Жилая
76 м2
Кухня
12.3 м2
Участок (сотки)
24.74
Этажей
1
Год постройки
1992
Материал стен
Деревянный
Водоснабжение
Центральное
Отопление
Газовое
Расположение
Инфраструктура
Обновлено19.08.2025, 13:01
ID объявления1859
Номер договора37/3 от 24.05.2022
Всего просмотров267

Похожие объекты рядом

28 593 Br
474 Br/м2
60.3 м2
пер. Пионерский, 8, аг. Жировичи, Слонимский район
55 756 Br
742 Br/м2
75.1 м2
ул. Декабристов, 29, Слоним
25 734 Br
545 Br/м2
47.2 м2
ул. Альбертинская, д. Чепелево, Слонимский район
30 023 Br
455 Br/м2
66 м2
ул. Юрия Ковалевского, Слоним
68 051 Br
1 237 Br/м2
55 м2
ул. Котовского, 3А, Слоним
48 608 Br
1 090 Br/м2
44.6 м2
ул. Нижняя, Слоним
68 337 Br
1 047 Br/м2
65.3 м2
ул. Космонавтов, 45, Слоним
54 600 Br
1 300 Br/м2
42 м2
ул. Советская, 38, Слоним
56 614 Br
383 Br/м2
148 м2
ул. Речная, 19, Слоним
35 741 Br
388 Br/м2
92 м2
ул. Луговая, аг. Суринка, Слонимский район
34 312 Br
558 Br/м2
61.5 м2
пер. 1-й Виленский, Слоним
26 000 Br
350 Br/м2
74.2 м2
пер. 3-й Виленский, 12, Слоним