Продается двухуровневый коттедж в городе Мяделе площадью 178.2 м² и участком 12.7 соток

ул. Дружная, 2, Мядель
178.2 м2
Общая площадь
64.6 м2
Жилая
18.1 м2
Кухня
2010
Год постройки
Описание

Продажа загородной усадьбы в Нарочанском крае

Прекрасное место для жизни, дом расположен в г. Мядель

Большое количество лесов и озер в ближайшей доступности, это и оз. Нарочь

оз. Мястро, оз. Рудакова, оз. Баторина , где в свободное время можно отдохнуть от городской суеты и подышать свежим воздухом. А также порыбачить, съездить за грибами, ягодами.

Дом расположен на угловом участке в 12,7 соток, огороженном по периметру добротным забором из металлопрофиля. Под домом обустроен просторный гараж с подвалом. Также на участке размещены навес и хоз. постройка размером 6x8м, которую при желании можно переоборудовать под баню.

Дом представляет из себя деревянный сруб с пристройкой из блоков, утепленный мин. ватой и обшитый сайдингом. Кровля - металлочерепица. Второй этаж выполнен в виде мансарды, которую можно оборудовать под жилой этаж.

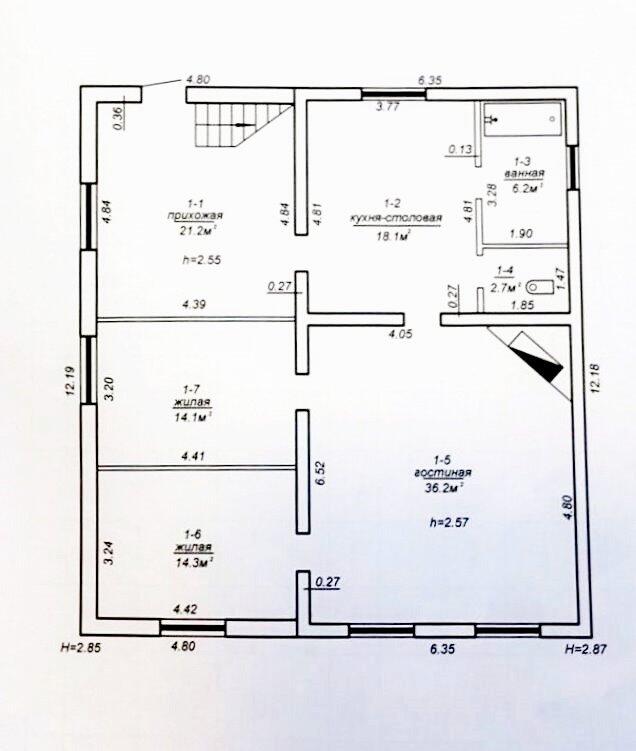
Внутри дома пространство разделено на прихожую, вместительную гостиную с камином, проходную кухню, 2 спальни и раздельный сан. узел.

Выполнена хорошая отделка, на полу ламинат, плитка. Потолки- натяжные, в гостиной выполнен из дерева. Продаётся со всей мебелью (кухня встроенная, мебель в спальнях и гостиной) и техникой (встроенные духовой шкаф, варочная панель, вытяжка, посудомойка).

Отопление и подогрев воды обеспечивается за счёт двухконтурного газового котла, водоснабжение центральное, канализация местная.

Школа, детский сад расположены в пару остановок от дома, ходит городской автобус.

Отличный вариант для жизни в прекрасном месте.

Частное унитарное предприятие «Дианэст», УНП 190124316, лицензия №02240/54 от 06.06.2005. Договор № 53/4 от 20.02.2025

Характеристики
Общая площадь
178.2 м2
Жилая
64.6 м2
Кухня
18.1 м2
Участок (сотки)
12.7
Этажей
2
Год постройки
2010
Готовность
100%
Материал стен
Деревянный
Водоснабжение
Центральное
Отопление
Газовое
Расположение
ул. Дружная, 2, Мядель
Инфраструктура
Обновлено27.10.2025, 16:30
Номер договора53/4 от 20.02.2025
Всего просмотров391

Похожие объекты рядом

114 984 Br
1 280 Br/м2
89.8 м2
ул. Молодёжная, 33, д. Лотва, Мядельский район
229 967 Br
2 120 Br/м2
108.5 м2
д. Черняты, Мядельский район
235 835 Br
1 261 Br/м2
187 м2
2 этажа
ул. Молодёжная, 45, аг. Нарочь, Мядельский район
111 741 Br
1 329 Br/м2
84.1 м2
1 этаж
д. Абрамы, Мядельский район
220 828 Br
2 117 Br/м2
104.3 м2
2 этажа
ул. Школьная, 7, аг. Лыцевичи, Вилейский район
153 312 Br
1 324 Br/м2
115.8 м2
2 этажа
ул. Дружная, аг. Лылойти, Сморгонский район
132 379 Br
1 319 Br/м2
100.4 м2
1 этаж
ул. 1 Мая, Вилейка
114 984 Br
1 472 Br/м2
78.1 м2
1 этаж
ул. Чайковского, Вилейка
117 932 Br
1 055 Br/м2
111.83 м2
1 этаж
ул. Набережная, 5, д. Ольховка, Островецкий район
170 707 Br
1 724 Br/м2
99 м2
1 этаж
ул. 17 Сентября, аг. Вязынь, Вилейский район
280 089 Br
1 453 Br/м2
192.8 м2
3 этажа
Солнечный проезд, 8, Сморгонь
114 689 Br
1 915 Br/м2
59.9 м2
1 этаж
ул. Дворецкая, аг. Илья, Вилейский район