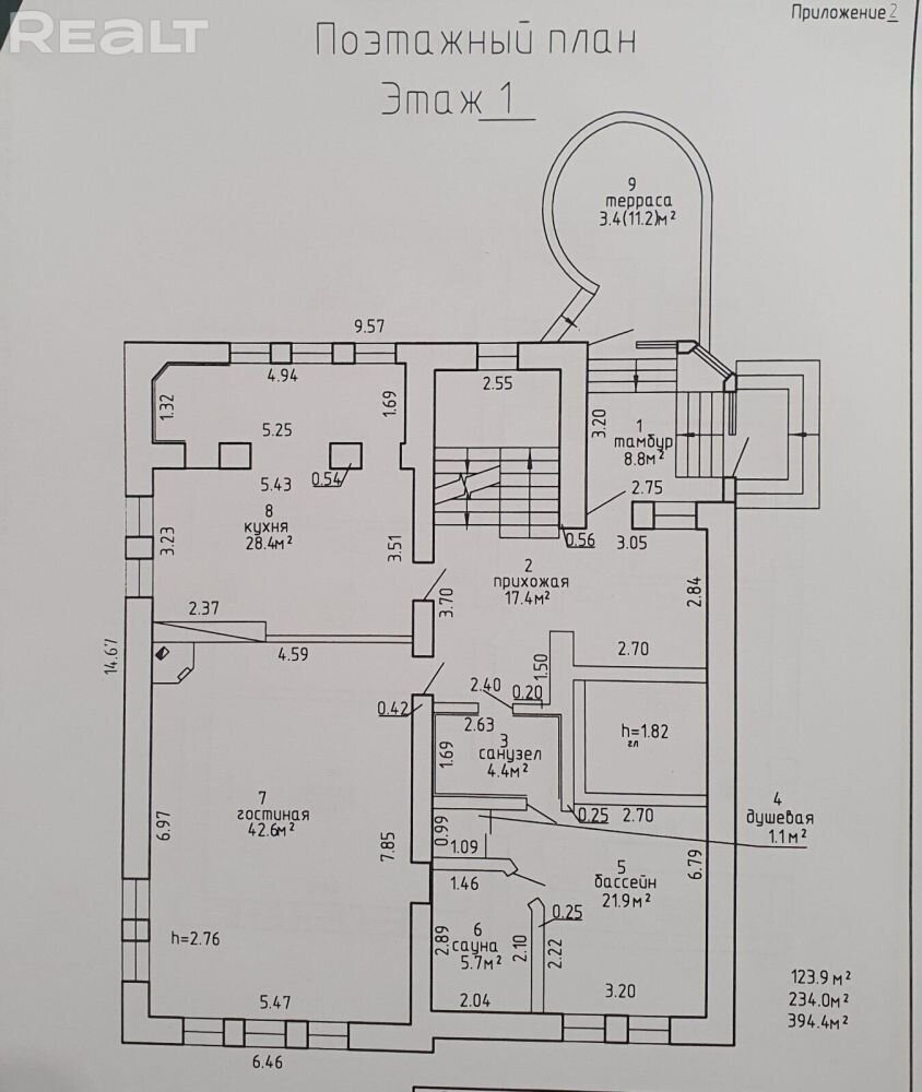
Продается трехуровневый коттедж в деревне Валерьяново площадью 394.4 м² и участком 11.57 соток

394.4 м2
Общая площадь
123.9 м2
Жилая
28.4 м2
Кухня
1999
Год постройки
Описание

добротный коттедж построен из качественного красного кирпича, утеплен и оштукатурен декоративной штукатуркой.

Характеристики
Общая площадь
394.4 м2
Жилая
123.9 м2
Кухня
28.4 м2
Участок (сотки)
11.57
Этажей
3
Год постройки
1999
Материал стен
Другой
Водоснабжение
Центральное
Отопление
Газовое
Расположение
Инфраструктура
Обновлено28.01.2026, 08:11
ID объявления440
Номер договора583/2 от 08.09.2022
Всего просмотров285

Похожие объекты рядом

740 559 Br
2 275 Br/м2
325.5 м2
2 этажа
ул. Пирогова, 12, д. Валерьяново, Минский район
1 286 685 Br
2 390 Br/м2
538.4 м2
4 этажа
пер. 2-й Кривичский, Минск
714 539 Br
3 735 Br/м2
5+ комн.
191.3 м2
2 этажа
ул. Кутузова, 13, Минск
Московская ~719 метров
843 494 Br
3 330 Br/м2
253.3 м2
пер. Центральный, д. Боровляны, Минский район
854 931 Br
2 508 Br/м2
340.9 м2
4 этажа
ул. Литературная, Минск
1 543 118 Br
4 822 Br/м2
3 комн.
320 м2
3 этажа
ул. Игната Домейко, Минск
1 249 228 Br
4 899 Br/м2
255 м2
3 этажа
ул. Колядная, д. Лесковка, Минский район
1 371 034 Br
4 779 Br/м2
286.9 м2
1 этаж
ул. Карповича, аг. Колодищи, Минский район
771 725 Br
3 492 Br/м2
221 м2
2 этажа
ул. Восточная, д. Чертяж, Минский район
900 680 Br
3 954 Br/м2
4 комн.
227.8 м2
2 этажа
ул. Механизаторов, д. Курганы, Минский район
786 308 Br
2 936 Br/м2
267.8 м2
2 этажа
ул. Ушестинская, 8, аг. Колодищи, Минский район
797 745 Br
4 693 Br/м2
170 м2
1 этаж
пер. Замковый, 11, аг. Колодищи, Минский район