Продается просторная дача в СТ Автомобилист-2 площадью 69 м² и участком 10 соток

СТ Автомобилист-2
68.5 м2
Общая площадь
1995
Год постройки
Описание

Самое время купить дачу

❤️ Продаётся дачный дом с участком в садовом товариществе «Автомобилист-2»!

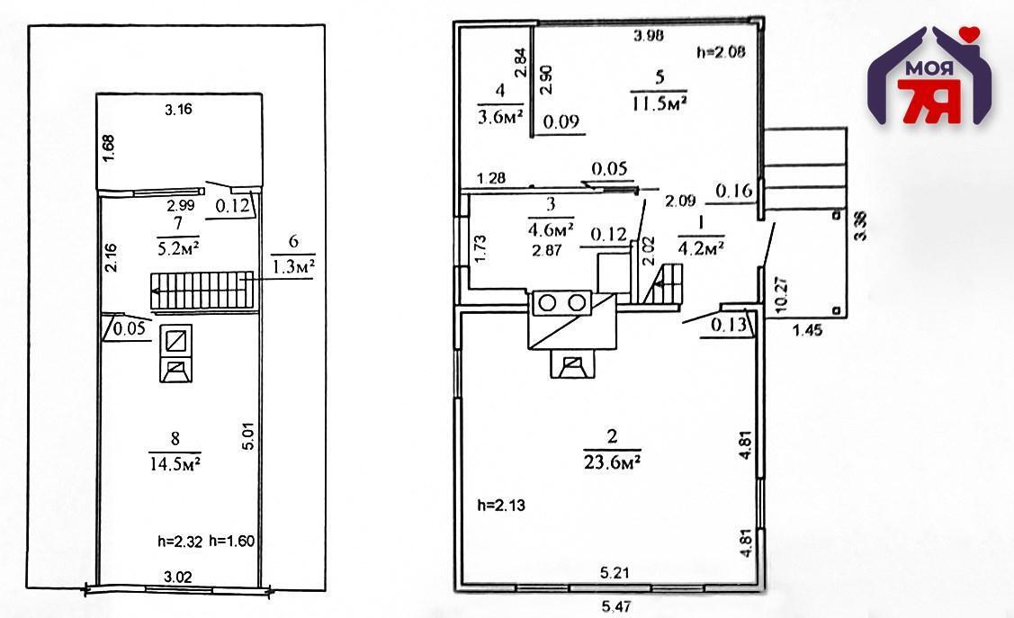
- Общая площадь составляет 68,5 кв.м.

- Двухуровневый, деревянный дом, построенный в 1995 году.

- Печное отопление создает уют и тепло в холодные дни.

- Водоснабжение центральное, сезонное, вода проведена в дом.

- Кровля из шифера обеспечивает надежную защиту от непогоды.

- Участок площадью 10 соток предлагает достаточно места для садоводства.

- Дача расположена всего в 11 км от Сморгони в Минском направлении.

- Рядом лес, что создает идеальные условия для любителей природы и активного отдыха.

❤️ Узнать больше об объекте - звоните!

❤️ Мы с радостью покажем Вам данный объект и сделаем Вас его счастливыми хозяевами!

А также хотите:

- выгодно продать

- срочно выкупить

- найти лучшую квартиру

- заработать на инвестициях в недвижимость

- сделать дизайнерский ремонт

Тогда «Моя 7Я» решит это, как для своей семьи: с любовью, заботой и желаемым результатом!

Агентство недвижимости ООО «Центр международной недвижимости Моя 7Я»

УНП 193750826

Лицензия: № 02240/484 выдана МЮ РБ 18.05.2024 г.

Страховое свидетельство БР 0004860

Характеристики
Общая площадь
68.5 м2
Участок (сотки)
10
Этажей
2
Год постройки
1995
Готовность
100%
Материал стен
Деревянный
Отопление
Печное
Расположение
СТ Автомобилист-2
Инфраструктура

Похожие объекты рядом

17 433 Br
368 Br/м2
47.4 м2
2 этажа
79, СТ Солнечный Берег
20 388 Br
578 Br/м2
35.3 м2
2 этажа
с.т. Зенит-Кордон
36 344 Br
2 542 Br/м2
14.3 м2
1 этаж
c.т. Рубин-2001
36 935 Br
559 Br/м2
66.1 м2
2 этажа
ул. 2-я Луговая, с.т. Зелёный Луг-2009
26 002 Br
867 Br/м2
30 м2
1 этаж
с.т. Дачные Плесы
35 162 Br
588 Br/м2
59.8 м2
3 этажа
c.т. Кристалл-2001
36 935 Br
542 Br/м2
68.2 м2
2 этажа
c.т. Политехник БНТУ
22 161 Br
369 Br/м2
60 м2
2 этажа
Молодечненский район
35 458 Br
374 Br/м2
94.8 м2
2 этажа
c.т. Веснянка 2000
22 752 Br
399 Br/м2
57 м2
2 этажа
СТ Татарщина
23 638 Br
763 Br/м2
31 м2
2 этажа
с.т. Ясная Поляна-1
29 253 Br
555 Br/м2
52.8 м2
2 этажа
с.т. Журавлик-2008