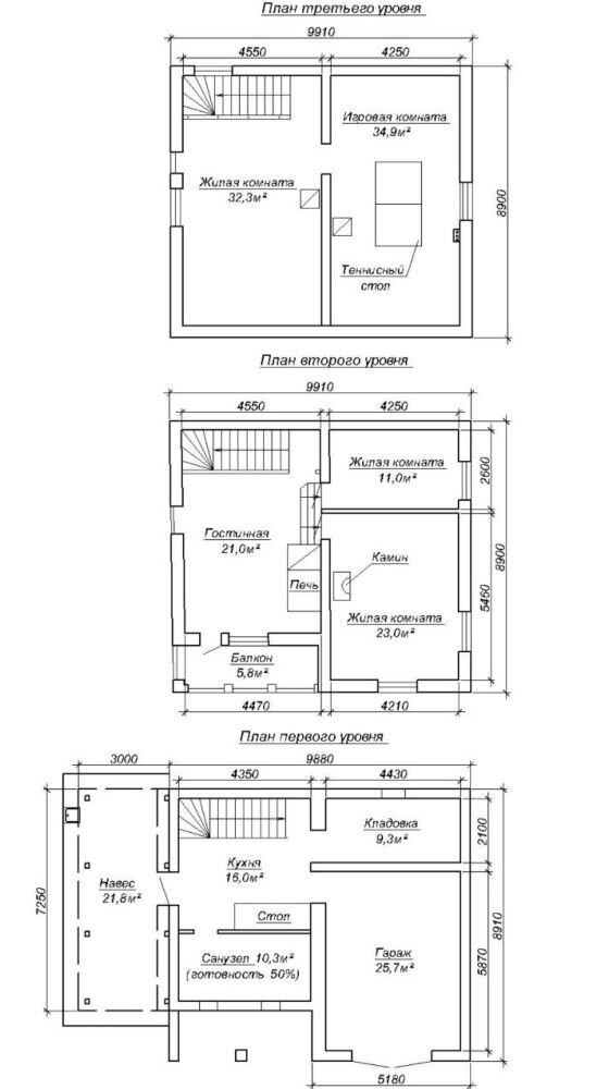
Продается просторная дача в СТ Лесное-90 площадью 179 м² и участком 8.94 сотки
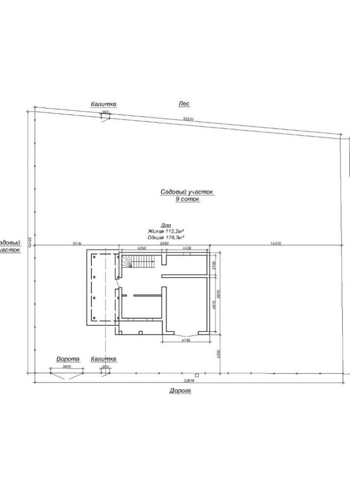
Продается добротный трехуровневый дом, с участком прямо возле леса в СТ Лесное-90. 22 км от Минска, в Мядельском направлении. Товарищество расположено в живописном месте, окружено лесом, недалеко протекает река Вяча, экологически чистое место. По дороге расположен родник с чистейшей водой, бобровая запруда, озеро, на въезде в СТ вековой дуб. В товариществе расположен сезонный магазин. Асфальтированные подъезды к дому. Построен в 2012 г., очень теплый - блоки обложенные кирпичом, фасад утеплен и оштукатурен. Бетонные межэтажные перекрытия между цоколем и первым этажом. Кровля: шифер. Во всем доме установлены двухкамерные стеклопакеты. На втором этаже установлены роллеты на лестницах для сохранения тепла в зимний период. Первый уровень - кухня, кладовка, помещение под планируемый санузел, печь буржуйка, гараж и навес Второй уровень - просторная гостиная с выходом на балкон, печкой лежанкой и шикарным видом на лес, две жилые комнаты, одна из них с камином. Мансардный уровень - две большие жилые комнаты, в одной и комнат установлен теннисный стол Коммуникации: - Центральный газ в начале улицы - Электричество - разведено по дому - Сезонная вода - Санузел на улице - Отопление - печное, печь с лежанкой, камин и печь буржуйка Ровный участок 8.94 сотки со своим выходом в лес в частной собственности. На участке вокруг дома выполнены дренажные работы, есть два дренажных колода, что исключает подтопление в межсезонье. Участок огражден сеткой рабицей, есть ворота для въезда машины. Высажен молодой плодовый сад, декоративные и хвойные кустарники. Дорожки вымощены бетонной плиткой. Отличное транспортное сообщение с Минском - остановка возле товарищества, ходит прямой автобус. Чистая продажа. Рассмотрим варианты обмена на квартиру. Просмотр в любое удобное для Вас время! Дополнительную информацию вышлем по запросу. Окажем помощь в продаже Вашей недвижимости для покупки данного дома. Звоните, будем рады ответить на все интересующие вопросы.
 
                                         
                 
                 
                 
                 
                 
                 
                 
                 
                 
                 
                 
                 
                 
                 
                 
                 
                 
                 
                 
                 
                 
                 
                 
                 
                 
                 
                 
                 
     
                                             
                                             
                                             
                                             
                                             
                                             
                                             
                                             
                                             
                                             
                                             
                                             
                                             
                                             
                                             
                                             
                                             
                                             
                                             
                                             
                                             
                                             
                                             
                                             
                                             
                                             
                                             
                                             
                                             
                                             
                                             
                                             
                                             
                                             
                                             
                                             
                                             
                                             
                                             
                                             
                                             
                                             
                                             
                                             
                                             
                                             
                                             
                                             
                                             
                                             
                                             
                                             
                                             
                                             
                                             
                                             
                                             
                                             
                                             
                                             
                                             
                                             
                                             
                                             
                                             
                                             
                                             
                                             
                                             
                                             
                                             
                                             
                                             
                                             
                                             
                                             
                                             
                                             
                                             
                                             
                                             
                                             
                                             
                                             
                                             
                                             
                                             
                                             
                                             
                                             
                                             
                                             
                                             
                                             
                                             
                                             
                                             
                                             
                                             
                                             
                                             
                                             
                                             
                                             
                                             
                                             
                                             
                                             
                                             
                                             
                                             
                                             
                                             
                                             
                                             
                                             
                                             
                                            