Продается уютная дача в СТ Ясная Поляна БГГЭ площадью 42 м² и участком 4.25 соток

СТ Ясная Поляна БГГЭ
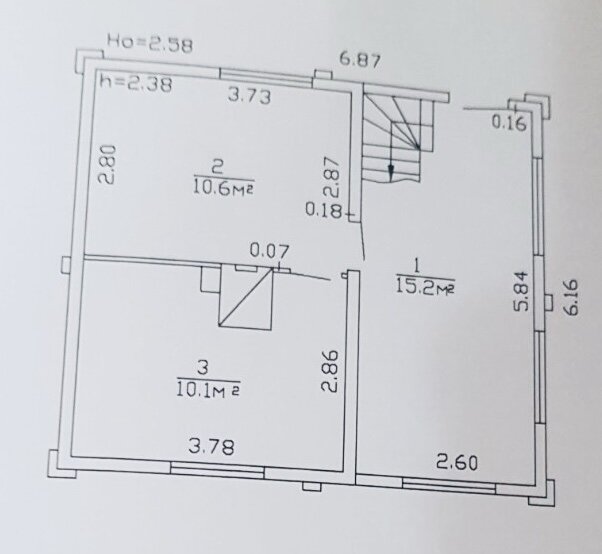
42 м2
Общая площадь
20.7 м2
Жилая
10 м2
Кухня
1997
Год постройки
Описание

Продается дом (садовый домик) рядом с аг. Ратомка:

Минский район, Ждановичский с/с, СТ «Ясная поляна»

Молодечненское направление, 7 км от МКАД.

Участок ровный, хорошие подъездные пути, есть погреб, хозпостройки.

Электричество, газ - баллон, печное отопление, вода сезонная - на участке.

Звоните – показываем в любое удобное для Вас время!

Частное унитарное предприятие «Дианэст», УНП 190124316, лицензия №02240/54 от 06.06.2005. Договор №161/3 от 21.11.2023

Характеристики
Общая площадь
42 м2
Жилая
20.7 м2
Кухня
10 м2
Участок (сотки)
4.25
Этажей
1
Год постройки
1997
Готовность
100%
Материал стен
Кирпичный
Водоснабжение
Сезонная
Отопление
Печное
Расположение
СТ Ясная Поляна БГГЭ
Инфраструктура
Обновлено17.10.2025, 17:00
Номер договора161/3 от 21.11.2023
Всего просмотров380

Похожие объекты рядом

47 277 Br
1 302 Br/м2
36.3 м2
1 этаж
СТ Локомотив
33 980 Br
923 Br/м2
36.8 м2
2 этажа
СТ Подгорье
43 436 Br
1 003 Br/м2
43.3 м2
2 этажа
ул. Луговая, СТ Экран
33 980 Br
944 Br/м2
36 м2
1 этаж
СТ Взгорье-1
42 845 Br
1 693 Br/м2
25.3 м2
1 этаж
ул. Садовая, СТ Атлант-1
58 210 Br
1 239 Br/м2
47 м2
2 этажа
с.т. Родник-5
68 000 Br
1 360 Br/м2
2 комн.
50 м2
1 этаж
д. Перхурово
44 027 Br
528 Br/м2
83.4 м2
3 этажа
ул. Сиреневая, 104, с.т. Энергетик-1
35 162 Br
858 Br/м2
41 м2
2 этажа
с.т. Инженер
64 710 Br
682 Br/м2
94.9 м2
2 этажа
41, СТ Химик-81
33 980 Br
395 Br/м2
86 м2
ул. Подольная, СТ Родник-Мелиоратор
28 071 Br
840 Br/м2
33.4 м2
СТ Лесное Векшицы