Продается коммерческое помещение в Минске на улице Утульная площадью 515.1 м²

ул. Утульная, Минск
Кунцевщина ~1176 метров
515.1 м2
Общая площадь
4 из 5
Этаж
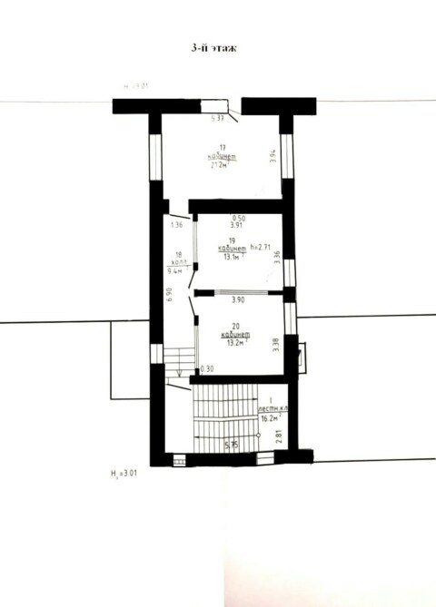
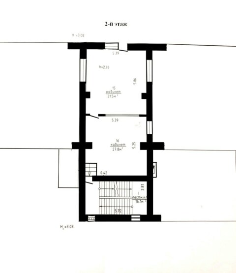
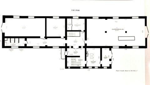
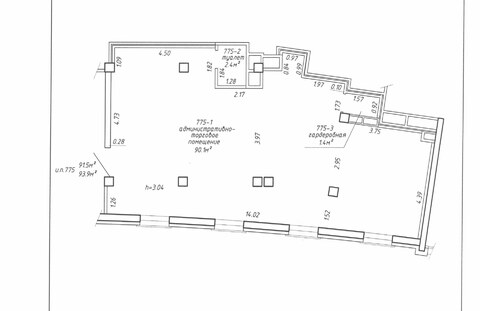
Описание

Продается просторное административное помещение, расположенное на четвертом этаже пятиэтажного отдельностоящего административного здания.

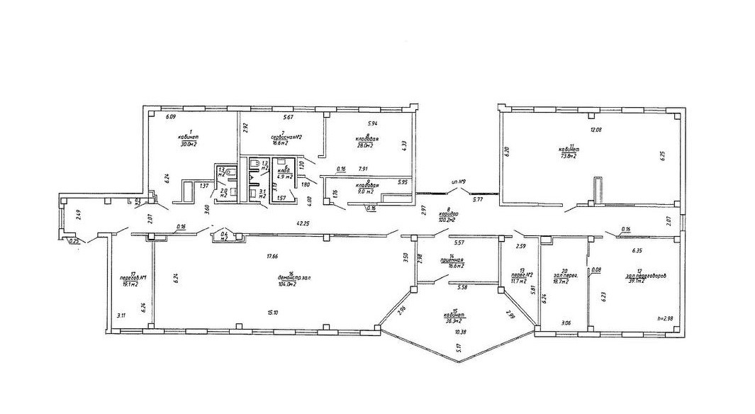
Общая площадь – 516 кв.м.

Просторный коридор, кабинеты, приемная, залы переговоров, кладовые, демонстративный зал, сервисная, два сан узла.

Доступ возможен 24/7, круглосуточная охрана, пропускная система, по всему периметру здания установлено видеонаблюдение.

Плоскостная парковка находится перед зданием, без закрепления машиномест.

Естественное освещение, отопление, пожарно-охранная сигнализация, оптоволокно.

Отличное транспортное сообщение. Две минуты ходьбы до остановки общественного транспорта, 15 минут ходьбы до станции метро «Кунцевщина». Удобный выезд на основные магистрали города.

Идеальный вариант для ведения бизнеса!

Покажем в удобное для Вас время.

Не упустите шанс стать владельцем данного объекта!

Ещё больше объектов недвижимости в нашем Telegram-канале @urielt_minsk

Характеристики
Категория объекта
Производственные помещения
Метро
Кунцевщина
Общая площадь
515.1 м2
Этаж
4 из 5
Расположение
ул. Утульная, Минск
Инфраструктура
Обновлено24.10.2025, 17:30
Номер договора№174/1 от 23.09.2024
Всего просмотров8

Похожие объекты рядом

835 296 Br
3 883 Br/м2
215.1 м2
1 /1  этаж
Минск
832 313 Br
6 193 Br/м2
134.4 м2
ул. Нёманская, 2, Минск
Каменная Горка ~719 метров
1 344 000 Br
4 200 Br/м2
320 м2
ул. Пулихова, 45, Минск
Пролетарская ~489 метров
628 381 Br
2 387 Br/м2
263.3 м2
пер. Козлова, 7, Минск
760 716 Br
4 815 Br/м2
158 м2
1 /9  этаж
ул. Волочаевская, 26, Минск
616 269 Br
6 563 Br/м2
93.9 м2
2 /15  этаж
пр. Независимости, 88, Минск
Московская ~386 метров
1 446 852 Br
3 012 Br/м2
480.4 м2
ул. Центральная, 18Б, аг. Хатежино
744 308 Br
995 Br/м2
747.8 м2
ул. Школьная, 10, аг. Прилуки
1 342 440 Br
2 319 Br/м2
579 м2
3 /3  этаж
Н-9068, 4-й километр, 11, аг. Колодищи
593 657 Br
1 725 Br/м2
344.1 м2
ул. Громадовская, 6А, Молодечно
1 372 272 Br
1 450 Br/м2
946.1 м2
ул. Притыцкого, 1, Молодечно
1 521 432 Br
1 125 Br/м2
1352 м2
ул. Великий Гостинец, 67В, Молодечно