Продается коммерческое помещение в Минске на улице Мележа 5к1, площадью 34.6 м²

ул. Мележа, 5к1, Минск
34.6 м2
Общая площадь
Описание

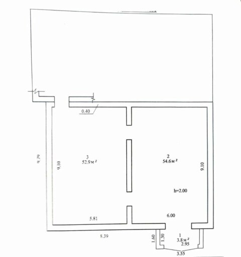
В продаже офис 34.6 кв.м по адресу: ул. Мележа 5к1.Этаж 3 / 6.

Административное помещение 31.1 кв.м. и подсобное помещение 3.5 кв.м. На полу ламинат, окна-стеклопакеты. Санузел на этаже -общего пользования.

Расположен в Бизнес-центре. В самом здании есть кафе.

Остановка общественного транспорта в 5 минутах ходьбы.

Частное унитарное предприятие «Дианэст», УНП 190124316, лицензия №02240/54 от 06.06.2005. Договор №157/4 от 11.09.2025

Характеристики
Категория объекта
Офисы
Общая площадь
34.6 м2
Расположение
ул. Мележа, 5к1, Минск
Инфраструктура
Обновлено24.11.2025, 10:00
Номер договора157/4 от 11.09.2025
Всего просмотров257

Похожие объекты рядом

104 544 Br
187 Br/м2
559 м2
ул. Кирилла Туровского, 24, Минск
Восток ~433 метра
128 150 Br
4 986 Br/м2
25.7 м2
1 /3  этаж
ул. Харьковская, 15, Минск
Молодежная ~440 метров
78 779 Br
3 151 Br/м2
25 м2
3 /3  этаж
ул. Михася Лынькова, 63, Минск
56 596 Br
583 Br/м2
97 м2
ул. Центральная, д. Мощёное, Дзержинский район
71 100 Br
408 Br/м2
174.1 м2
ул. Замковая, 15, Молодечно
99 540 Br
1 392 Br/м2
71.5 м2
ул. Мельничная, 12Б, Слуцк
95 274 Br
184 Br/м2
518 м2
д. Осташино, Новогрудский район
93 852 Br
180 Br/м2
520 м2
д. Осташино, Новогрудский район
71 938 Br
719 Br/м2
100 - 500 м2
1 /1  этаж
ул. Лесная, 26, г.п. Уречье, Любанский район
133 668 Br
868 Br/м2
154 м2
ул. Замковая, 7, Новогрудок
58 302 Br
1 845 Br/м2
31.6 м2
площадь Ленина, 2, Новогрудок
127 980 Br
903 Br/м2
141.7 м2
1 /5  этаж
ул. Промышленная, 11А, Барановичи