Продается коммерческое помещение в Молодечно на улице Волынца 3, площадью 404.3 м²

ул. Волынца, 3, Молодечно
404.3 м2
Общая площадь
Описание

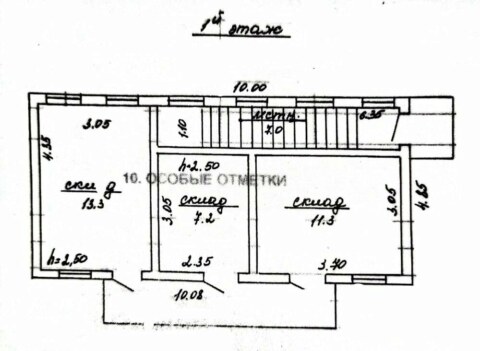
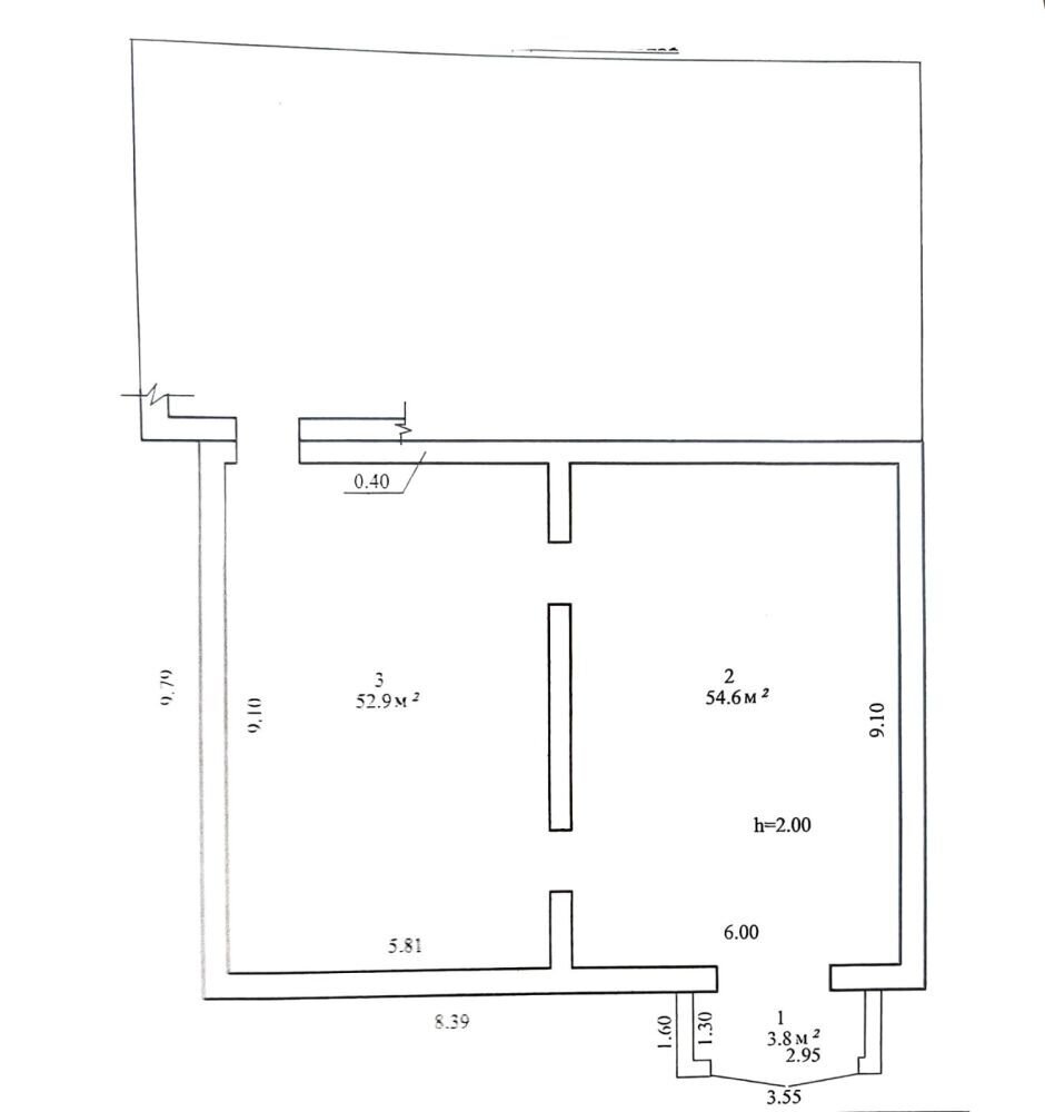
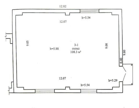
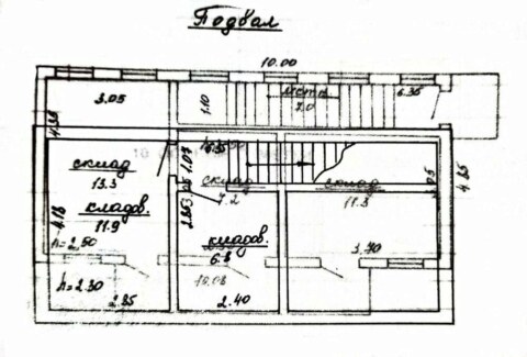
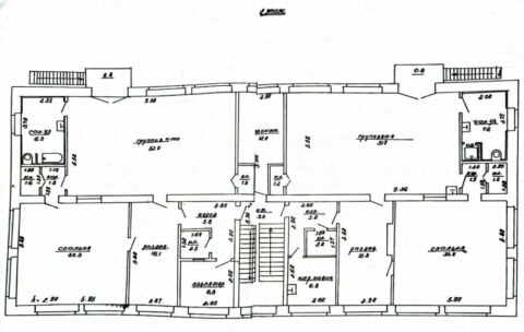
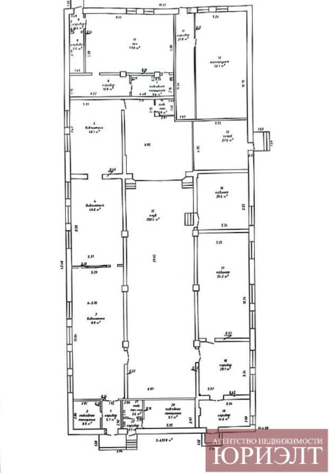
ЗДАНИЕ НЕУСТАНОВЛЕННОГО НАЗНАЧЕНИЯ В ЦЕНТРЕ ГОРОДА, 404,3 М.КВ, УЧАСТОК 0,20 ГА Незавершенное законсервированное капитальное строение неустановленого типа в центре города Молодечно. Год постройки 2009. Адрес: ул. Волынца, 3А Здание двухуровневое: общей площадью 404,3 м2, 63% готовности, высокие потолки. Здание кирпичное, кровля профнастил, между этажами и пол из плит перекрытия. Проведено общее обследование технического состояния строительных конструкций (есть заключение). Здание можно вводить в эксплуатацию под любое назначение в соответствии с вашими потребностями, очень грамотно оборудовано несколькими автономными входами с разных сторон здания. Всё необходимые коммуникации проходят по участку. Просторный участок площадью 20,6 сотки позволит разместить необходимые хозяйственные строения и парковочные места. Правовой режим земельного участка, аренда. Растояние от МКАД 90 км. Возможна продажа в кредит либо оплата в несколько этапов. Бесплатные консультации, помощь в продаже Вашей недвижимости.

Характеристики
Категория объекта
Склады
Общая площадь
404.3 м2
Объявление закрыто
Дата закрытия объявления11.12.2025
Обновлено11.12.2025, 07:30
Номер договора296/2 от 07.05.2025
Всего просмотров430

Похожие объекты рядом

73 353 Br
421 Br/м2
174.1 м2
ул. Замковая, 15, Молодечно
81 275 Br
3 238 Br/м2
25.1 м2
3 /3  этаж
ул. Михася Лынькова, 65, Минск
30 808 Br
331 Br/м2
93 м2
д. Никольцы, Мядельский район
58 389 Br
602 Br/м2
97 м2
ул. Центральная, 21, д. Мощёное, Дзержинский район
88 023 Br
169 Br/м2
520 м2
д. Осташино, Новогрудский район
34 329 Br
339 Br/м2
101.4 м2
д. Селец, Лидский район
60 149 Br
1 903 Br/м2
31.6 м2
площадь Ленина, 2, Новогрудок
73 353 Br
115 Br/м2
639.9 м2
1 /1  этаж
ул. Брестская, 279Г/1, Барановичи
82 155 Br
485 Br/м2
169.3 м2
ул. Звёздная, Слоним
46 946 Br
293 Br/м2
160 м2
ул. Центральная, д. Рассвет, Солигорский район
73 353 Br
82 Br/м2
890.5 м2
Минский тракт, 10, Слоним
71 938 Br
719 Br/м2
100 - 500 м2
1 /1  этаж
ул. Лесная, 26, г.п. Уречье, Любанский район