Продается коммерческое помещение в Молодечно на улице Притыцкого 1, площадью 946.1 м²

ул. Притыцкого, 1, Молодечно
946.1 м2
Общая площадь
Описание

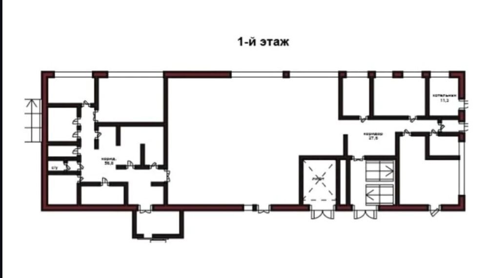
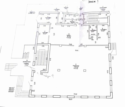
Современное здание площадью 964,1 м2 в центре города Молодечно. Целевое назначение "Здание специализированное иного назначения", год постройки 1982, в 2020 году была завершена полная реконструкция в соответствии с проектной документацией. Здание универсальное в своём роде, его можно использовать под производственное, складское, торговое, частично офисное. Здание расположено в непосредственной близости к железнодорожному и авто вокзалам, а в самом городе проживают более 90 000 человек, что поможет вам с лёгкостью найти сотрудников в свою команду. Адрес: Молодечно, ул. Притыцкрго, 1А Здание двухуровневое, очень грамотно оборудовано несколькими автономными входами с разных сторон здания, что позволит в дальнейшем сдавать его частями и обеспечить арендаторов беспрепятственным доступом. На каждом этаже оборудованы санитарные узлы, есть лифт, соблюдены всё требования пожарной безопасности (пожарные лесницы, система пожарной сигнализации), центральное водоснабжение и канализация, газовое отопление, электричество 380 вольт, выделенная мощность энергообеспечения 50-70 кВат, приточно вытяжная вентиляция, телефон, интернет. Созданы оптимальные условия для использования здания. Материал стен - панели железобетонные, перегородки - кирпич, блоки газосиликатные, стены оштукатурены, пол бетонный, частично уложена керамическая плитка, кровля - металлопрофиль с полимерным покрытием и рулонные кровельные материалы, двери металлические и ПВХ, ворота - роллет защитный из алюминиевого профиля, окна ПВХ, современный дизайн здания. Высота потолков: первый этаж 4,26 м, второй этаж 3,44 м. Вокруг здания положена тротуарная плитка. На парковке площадью 900 м2 можно вместить 100-120 автомобилей. В настоящее время почти вся площадь здания сдана в аренду. Расстояние от МКАД 70 км. Возможна продажа в кредит либо оплата в несколько этапов. Покупатель услуги агентства не оплачивает. Бесплатные консультации, помощь в продаже Вашей недвижимости.

Характеристики
Категория объекта
Производственные помещения
Общая площадь
946.1 м2
Расположение
ул. Притыцкого, 1, Молодечно
Инфраструктура

Похожие объекты рядом

685 423 Br
1 576 Br/м2
435 м2
2 /4  этаж
ул. Великий Гостинец, 67В, Молодечно
1 519 851 Br
1 124 Br/м2
1352 м2
ул. Великий Гостинец, 67В, Молодечно
849 329 Br
841 Br/м2
1010.5 м2
ул. 1 Мая, 13, Вилейка
1 370 846 Br
27 Br/м2
5005 м2
ул. Шубина, 109, Вилейка
1 132 438 Br
388 Br/м2
2922 м2
ул. Шубина, 109, Вилейка
1 445 349 Br
3 009 Br/м2
480.4 м2
ул. Центральная, 18Б, аг. Хатежино
831 448 Br
6 186 Br/м2
134.4 м2
ул. Нёманская, 2, Минск
Каменная Горка ~719 метров
1 153 299 Br
2 239 Br/м2
515.1 м2
4 /5  этаж
ул. Утульная, Минск
Кунцевщина ~1176 метров
1 308 264 Br
1 309 Br/м2
1000 м2
ул. Гурского, 3/1, Минск
834 428 Br
3 879 Br/м2
215.1 м2
1 /1  этаж
Минск
759 926 Br
4 810 Br/м2
158 м2
1 /9  этаж
ул. Волочаевская, 26, Минск
1 344 000 Br
4 200 Br/м2
320 м2
ул. Пулихова, 45, Минск
Пролетарская ~489 метров