Продается коммерческое помещение в Слониме на улице Звёздная площадью 169.3 м²

ул. Звёздная, Слоним
169.3 м2
Общая площадь
Описание

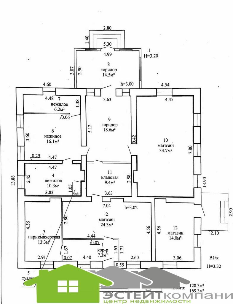
Продается коммерческое здание с готовым бизненсем по улице Звездная 8, общая площадь 169,3м2. В здании имеется 6 помещений из них 5 с хорошим ремонтом. Помещения сдаются в аренду под: парикмахерскую и маникюрный салон, интернет-магазин "Wildberries", почтовое отделение "Белпочта". У каждого арендасъемщика свой отдельный вход.

В здании установлены окна ПВХ, заменена электропроводка, установлены индивидуальные счетчики на отопление. Имеется санузел. Земельный участок площадью 0,0502 га ( право аренды.)У вас появится уникальная возможность реализовать свою бизнес-идею или развивать существующую деятельность. Расположение достаточно удобное как для местных жителей и для граждан посещающих живописные места усадебно-парковый комплекс «Альбертин».Все, что нужно для полноценной работы есть - отопление, электричество, вода, телефоны, компьютерная сеть, скоростной интернет.Приезжайте, смотрите, вдохновляйтесь для новых проектов!Реальному покупателю разумный торг. Цена указана без НДС.ООО "Эстейт Компани" - единственное агентство в г. Слоним на основании: лицензии Министерства юстиции Республики Беларусь 02240/394 от 26.02.2020г. УНП 693141368 Наш адрес: г. Слоним, пер. Дружбы 1. Договор на оказание риэлтерских услуг 56/4 от 09.07.2024 г.

Характеристики
Категория объекта
Магазины, торговые помещения
Общая площадь
169.3 м2
Расположение
ул. Звёздная, Слоним
Инфраструктура
Обновлено11.12.2025, 11:30
ID объявления1825
Номер договора56/4 от 09.07.2024
Всего просмотров176

Похожие объекты рядом

88 338 Br
99 Br/м2
890.5 м2
Минский тракт, 10, Слоним
91 187 Br
1 861 Br/м2
49 м2
пер. Аптечный, 1А, Слоним
91 187 Br
107 Br/м2
855.6 м2
1 /1  этаж
Слонимское шоссе, 20А, Барановичи
71 240 Br
111 Br/м2
639.9 м2
1 /1  этаж
ул. Брестская, 279Г/1, Барановичи
113 984 Br
55 Br/м2
2062.5 м2
2 /2  этаж
ул. Брестская, 279Гк3, Барановичи
58 417 Br
1 849 Br/м2
31.6 м2
площадь Ленина, 2, Новогрудок
55 567 Br
201 Br/м2
276.2 м2
1 /1  этаж
ул. Матросова, 65В, Ганцевичи
94 037 Br
181 Br/м2
520 м2
д. Осташино, Новогрудский район
95 462 Br
184 Br/м2
518 м2
д. Осташино, Новогрудский район
59 842 Br
124 Br/м2
485.2 м2
1 /1  этаж
ул. Ленина, 3, аг. Хомск, Дрогичинский район
112 559 Br
2 251 Br/м2
50 м2
ул. Шубина, 11, Лида
99 736 Br
52 Br/м2
1900 м2
площадь Ленина, Лида