Прадаецца 3-пакаёвая кватэра ў Мінску на праспекце Газеты Звязда, 69

пр. Газеты Звязда, 69, Мінск
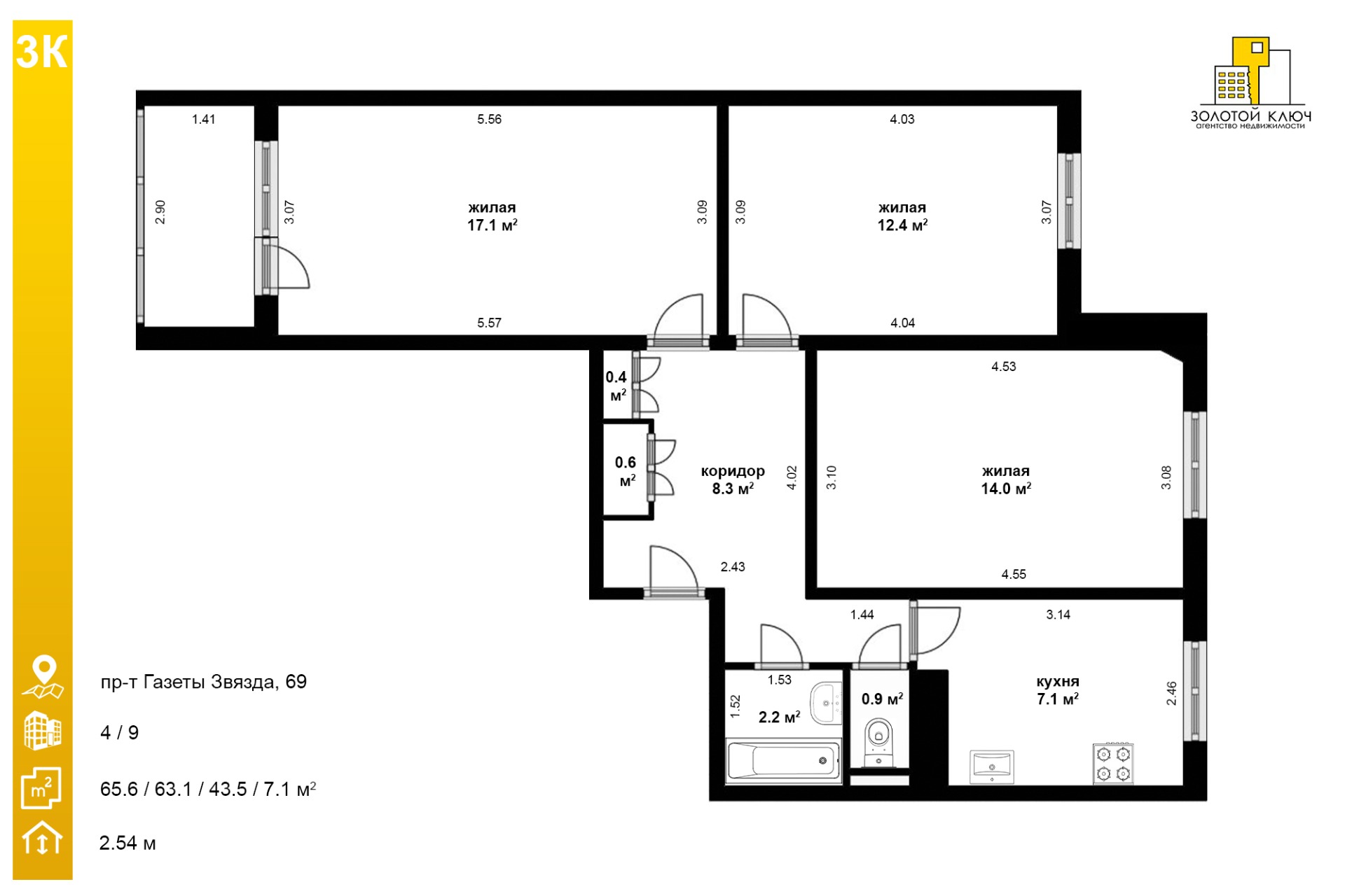
65.6 м2
Агульная плошча
43.5 м2
Жылая
7.1 м2
Кухня
3
Пакояў
2.54 м
Вышыня столі
4 з 9
Паверх
1988
Год пабудовы
Апісанне

Светлая, тёплая и ухоженная квартира с приятной атмосферой уюта. Здесь всё уже готово для жизни: не нужно делать ремонт, тратить время и нервы — можно заезжать и сразу обустраивать семейный быт.

Общая площадь — 65,6 м², продуманная планировка позволяет каждому члену семьи чувствовать себя комфортно. Уютные жилые комнаты, аккуратная кухня, современный совмещённый санузел. Качественный ремонт выполнен в спокойных, универсальных тонах — идеально для семьи с детьми. Встроенная кухня по индивидуальному проекту, современная техника, вместительный шкаф-купе — всё функционально и удобно для повседневной жизни.

Локация — одно из главных преимуществ этой квартиры.
Прямо через дорогу расположен красивый парк с рекой — идеальное место для ежедневных прогулок с коляской, активных игр с детьми, утренних пробежек и семейного отдыха на свежем воздухе. До метро «Малиновка» можно дойти пешком именно через этот парк — приятная и безопасная дорога без суеты.

Район отлично подходит для жизни с детьми:
в шаговой доступности детские сады, школы, гимназии, поликлиники, магазины, аптеки и кафе. Рядом — спортивный комплекс Max Mirnyi Center, где дети и взрослые смогут заниматься спортом и вести активный образ жизни. Удобный выезд на МКАД позволит быстро добираться в любую часть города.

Дом и двор также создают ощущение уюта и безопасности:
ухоженная придомовая территория, современная детская площадка, парковка, чистый подъезд. Спокойные, интеллигентные соседи — важный фактор для семей с детьми. Из окон открывается красивый, приятный вид, который добавляет ощущение простора и света.

Это квартира, в которой дети растут в комфортной среде, а взрослые по-настоящему отдыхают.
Идеальный вариант для семьи, которая ценит качество жизни, природу рядом с домом и готовое жильё без дополнительных вложений.

Чистая продажа.
Квартира ждёт своих новых хозяев.

Уласцівасці
Пакояў
3
Агульная плошча
65.6 м2
Жылая
43.5 м2
Кухня
7.1 м2
Паверх
4 з 9
Вышыня столі
2.54 м
Год пабудовы
1988
Матэрыял сцен
Панэльны
Санвузел
Сумешчаны
Балкон/лоджыя
1
Адрас на мапе
пр. Газеты Звязда, 69, Мінск
Інфраструктура
Планіроўка аб`екта
Паглядзець
Абноўлена25.01.2026, 16:39
ID объявления15169
Нумар дамовы 118/1 от 29.10.2025
Усяго праглядаў220

Падобныя аб'екты побач

341 667 Br
4 122 Br/м2
4 пак.
82.88 м2
5 /9  паверх
пр. Любімава, 34к1, Мінск
441 688 Br
6 632 Br/м2
3 пак.
66.6 м2
5 /9  паверх
вул. Касманаўтаў, 3к3, Мінск
Малінаўка ~325 метраў
284 248 Br
5 825 Br/м2
2 пак.
48.8 м2
4 /9  паверх
вул. Рафіева, 94, Мінск
256 464 Br
5 150 Br/м2
2 пак.
49.8 м2
10 /12  паверх
пр. Газеты Праўда, Мінск
Пятроўшчына ~340 метраў
455 936 Br
5 960 Br/м2
3 пак.
76.5 м2
5 /9  паверх
вул. Напалеона Орды, 15, Мінск
Малінаўка ~641 метр
206 596 Br
6 251 Br/м2
1 пак.
33.05 м2
5 /9  паверх
пр. Газеты Праўда, 14, Мінск
Пятроўшчына ~531 метр
370 163 Br
6 221 Br/м2
2 пак.
59.5 м2
7 /10  паверх
вул. Маршала Лосіка, 27, Мінск
356 200 Br
5 472 Br/м2
2 пак.
65.1 м2
5 /15  паверх
вул. Юрыя Семяняка, 30, Мінск
483 007 Br
6 880 Br/м2
2 пак.
70.2 м2
4 /6  паверх
вул. Алібегава, 8к2, Мінск
Міхалова ~1030 метраў
398 944 Br
5 012 Br/м2
3 пак.
79.6 м2
4 /10  паверх
вул. Мачульскага, 24, Мінск
398 659 Br
5 446 Br/м2
1 пак.
73.2 м2
2 /9  паверх
пр. Газеты Праўда, 1, Мінск
Пятроўшчына ~718 метраў
250 195 Br
5 487 Br/м2
2 пак.
45.6 м2
2 /22  паверх
вул. Маршала Лосіка, 57, Мінск