Прадаецца 3-пакаёвая кватэра ў Цырыне на вуліцы Школьная

вул. Школьная, аг. Цырын, Карэліцкі раён
65.5 м2
Агульная плошча
40.4 м2
Жылая
10.2 м2
Кухня
3
Пакояў
2.5 м
Вышыня столі
1 з 2
Паверх
1993
Год пабудовы
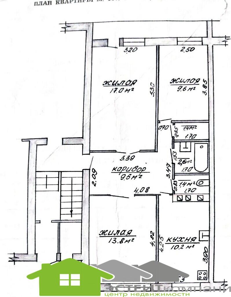
Апісанне

3 комн квартира расположена на 1 этаже двухэтажного дома. Общая площадь 65,5 м2 , жилая- 40,4, большая кухня -10,2 м2 . Полы ДВП, окна деревянные, потолки оштукатурены и побелены. В квартире подведены все коммуникации. Санузел раздельный. Так же имется большая лоджия, два подвала. Рядом находится автобусная остановка, школа, поликлиника.

ООО “Эстейт Компани” – ваш надежный партнер в мире недвижимости. Мы предлагаем объекты в Слониме, Новогрудке, Лиде и других городах Беларуси.- Гарантируем безопасность сделки-Полное юридическое сопровождение- Работаем по лицензии Министерства юстиции РБ 02240/394Наша цель – не просто продать вам недвижимость, а помочь вам найти идеальный объект без рисков и скрытых нюансов.Офисы: г. Лида, ул. Чапаева 18; г. Слоним, пер. Дружбы 1; г. Новогрудок, ул. Волчецкого27БСвяжитесь с нами сегодня и получите консультацию эксперта!

Уласцівасці
Пакояў
3
Агульная плошча
65.5 м2
Жылая
40.4 м2
Кухня
10.2 м2
Паверх
1 з 2
Вышыня столі
2.5 м
Год пабудовы
1993
Санвузел
Раздзельны
Балкон/лоджыя
1
Адрас на мапе
Інфраструктура
Абноўлена29.10.2025, 22:30
Нумар дамовы43/5 от 24.09.2025
Усяго праглядаў108

Падобныя аб'екты побач

39 610 Br
896 Br/м2
2 пак.
44.2 м2
2 /2  паверх
вул. Сонечная, 1, в. Дарава-Чыж, Ляхавіцкі раён
19 072 Br
449 Br/м2
2 пак.
42.5 м2
1 /2  паверх
вул. Цэнтральная, 4, п. Светлы
27 874 Br
860 Br/м2
2 пак.
32.4 м2
1 /2  паверх
в. Уцёс, Баранавіцкі раён
40 784 Br
957 Br/м2
2 пак.
42.6 м2
1 /5  паверх
в. Гезгалы, Дзятлаўскі раён
41 077 Br
644 Br/м2
3 пак.
63.8 м2
5 /5  паверх
аг. Гезгалы, Дзятлаўскі раён
17 605 Br
384 Br/м2
2 пак.
45.8 м2
2 /2  паверх
вул. Школьная, аг. Ганчары, Лідскі раён
42 544 Br
1 418 Br/м2
1 пак.
30 м2
4 /5  паверх
вул. Хлюпіна, 4, Слонім
44 012 Br
1 487 Br/м2
1 пак.
29.6 м2
2 /5  паверх
вул. Чырвонаармейская, 22, Слонім
23 179 Br
403 Br/м2
2 пак.
57.5 м2
1 /1  паверх
вул. Камсамольская, 81, Слонім
16 138 Br
384 Br/м2
2 пак.
42 м2
1 /2  паверх
вул. Танкістаў, аг. Вялікія Шылавічы, Слонімскі раён
20 539 Br
380 Br/м2
4 пак.
54 м2
1 /1  паверх
вул. Агінскага, аг. Заастравечча, Клецкі раён
34 916 Br
525 Br/м2
3 пак.
66.5 м2
2 /2  паверх
вул. Міру, 56, аг. Заастравечча, Клецкі раён